Dalston Lane, Dalston, E8
By Drivers & Norris
£ 475,000
Reviews
3 out of 5 stars
Drivers & Norris says ..
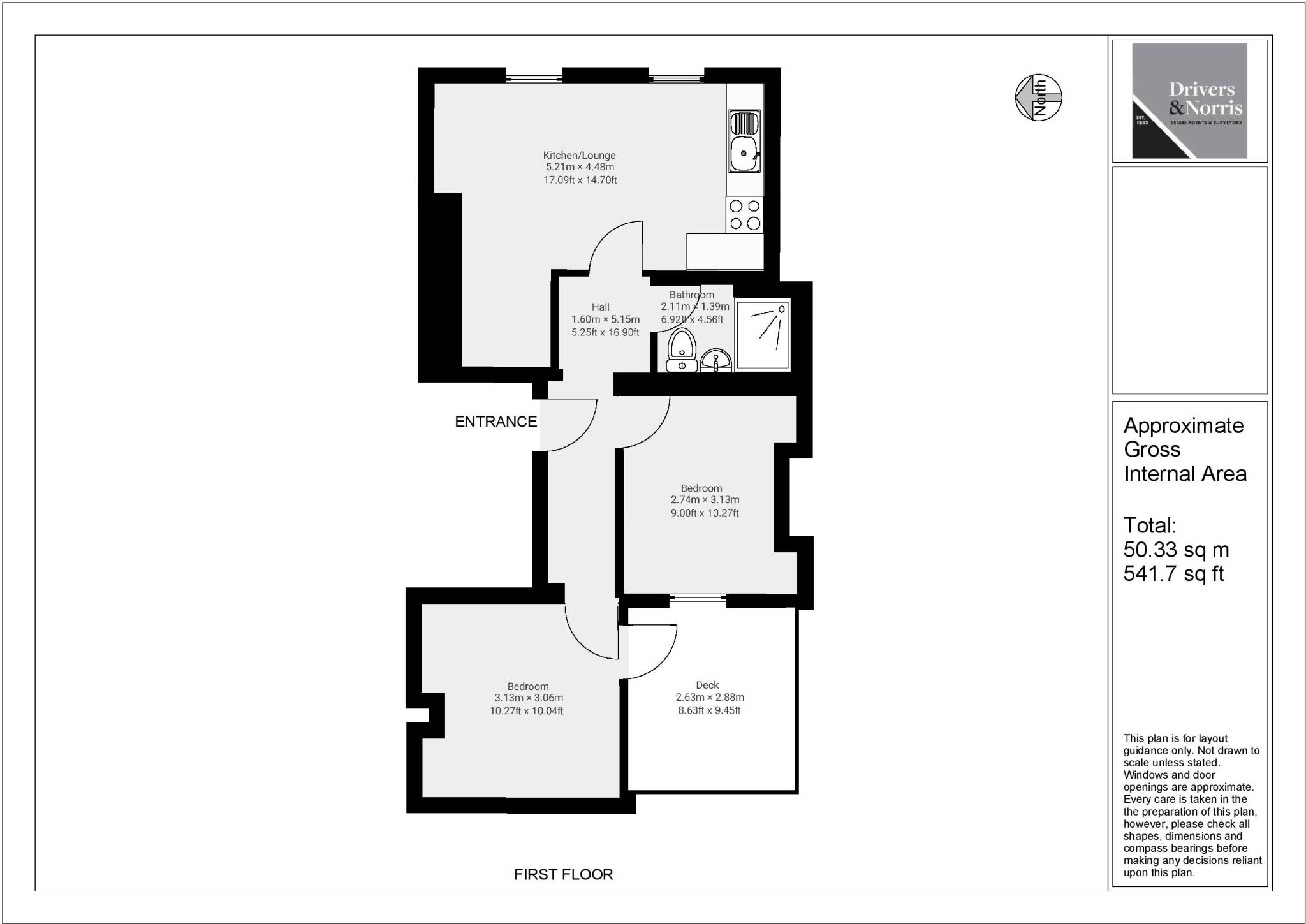
Two bedroom 1st floor flat with a terrace situated in a popular area within approximately 10 minutes’ walk to Hackney Downs station Offered for sale with no upper chain the accommodation comprises open plan lounge/kitchen, two bedrooms bathroom, WC and roof terrace.
Property Oracle says ..
The property is a 2-bedroom apartment located on Dalston Lane in Dalston, Hackney, East London. The apartment is modern and well presented, with a newly fitted kitchen and bathroom. It benefits from a small, private decked patio area. The location is convenient, with several Overground stations within a reasonable walking distance, providing good transport links. There are also a number of well-regarded schools nearby. However, the property itself is small (541.75 sqft) and lacks a significant garden. The list price of £475,000 is slightly above the average price per square foot for the area (£921), but comparable to other similar properties on Dalston Lane. Considering the modern condition and convenient location, the price may be justified, although buyers should carefully consider the limited space.
Therefore, we give this property 6 / 10. *Disclaimer: This is our option and does constitute a recommendation or financial advice. Do your own research. *
- Price
- 7
- Condition
- 9
- Location
- 8
- Land
- 2
- Bedrooms
- 2
- Bathrooms
- 1
- Sqft (est)
- 541.75
The heatmap indicates the level of crime in the area. The color of the heatmap indicates the crime severity and recency.
Metrics Year-on-Year
- Average area value
- 690,000.00 £Decreased by 4.46 %
- Est sale value
- 615,428.00 £Increased by 33.65 %
- Average area rental value
- 2,884.00 £/moIncreased by 29.68 %
- Est letting value
- 2,167.00 £/moIncreased by 100.00 %
- Est rental Yield
- 5.02 %Increased by 35.68 %
- Crime Rate
- 4.00 %Unchanged by 0.00 %
Agent Activity
Drivers & Norris created the listing.
Nearby Schools
| Name | Type | Ofsted | Distance |
|---|---|---|---|
| Inspired Directions School | Other Independent Special School | Good | 0.56 KM |
| The Petchey Academy | Academy Sponsor Led | Good | 0.56 KM |
| Brook Satellite Children'S Centre | Children's Centre Linked Site | 0.60 KM | |
| Mossbourne Parkside Academy | Academy Converter | Good | 0.60 KM |
| Halley House School | Free Schools | Good | 0.63 KM |
Images
Nearby Streets
| Name | Average Price | Average Sqft | Distance |
|---|---|---|---|
| Bridge Mews | £ 625,000 | 0 | 0.00 KM |
| Ritson Road | £ 1,516,667 | 0 | 0.00 KM |
| Blakeney Close | £ 0 | 0 | 0.00 KM |
| Foxley Close | £ 0 | 0 | 0.00 KM |
| Electric Avenue | £ 0 | 0 | 0.00 KM |
Nearby Transport
| Name | NLC | TLC | Distance |
|---|---|---|---|
| Hackney Downs | 6867 | HAC | 0.79 KM |
| Dalston Junction | 1443 | DLJ | 0.84 KM |
| Dalston Kingsland | 1429 | DLK | 0.86 KM |
| Rectory Road | 6967 | REC | 1.13 KM |
| Hackney Central | 6977 | HKC | 1.32 KM |
Nearby Listings
| Address | Price | Type | Score | Distance |
|---|---|---|---|---|
| Dalston Lane, Dalston, E8 | £ 475,000 | BUY | 6 / 10 | 0.00 KM |
| Cecilia Road, London | £ 450,000 | BUY | 6 / 10 | 0.01 KM |
| Cecilia Road, London, E8 | £ 550,000 | BUY | 6 / 10 | 0.05 KM |
| 158 Dalston Lane, London, E8 | £ 450,000 | BUY | 7 / 10 | 0.05 KM |
| Cecilia Road, London E8 | £ 550,000 | BUY | 6 / 10 | 0.05 KM |
Nearby Properties
| Address | Price | Distance |
|---|---|---|
| 120a Dalston Lane | £ 278,000 | 0.04 KM |
| 172 Dalston Lane | £ 225,000 | 0.04 KM |
| 100a Dalston Lane | £ 59,995 | 0.04 KM |
| 170b Dalston Lane | £ 471,250 | 0.04 KM |
| 166 Dalston Lane | £ 650,000 | 0.04 KM |