Morris and Bott says ..
Situated in a convenient location just a level walk from the town centre, this generously sized three-bedroom semi-detached home offers fantastic potential. Featuring a well-planned, traditional layout, the property includes a rear garden, a garage, and off-road parking. While some general modern...
Property Oracle says ..
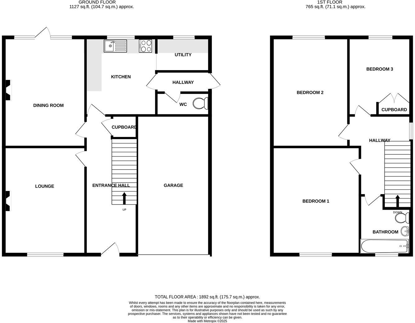
This three-bedroom semi-detached house in Bideford, Devon is listed at £260,000. The property is situated on North View Avenue, within a mile of several schools including Kingsley School, St Mary’s Church of England Primary School, Bideford College, and West Croft School. While the average house price in the area is £265,283, with an average price per sqft of £251, this property is slightly below average in price per sqft given its size of 1,127 sqft. However, nearby comparable properties range from £175,000 to £330,000 for semi-detached homes, suggesting the listing price is within the reasonable range for the area. The property shows its age and requires some modernisation, particularly in the kitchen and bathrooms. The interior shows dated decor and flooring, suggesting a need for renovation. The exterior shows a small garden and patio area. Overall, the property offers potential but requires some investment to bring it up to modern standards.
Therefore, we give this property 5 / 10. *Disclaimer: This is our option and does constitute a recommendation or financial advice. Do your own research. *
- Price
- 6
- Condition
- 5
- Location
- 7
- Land
- 4
- Bedrooms
- 3
- Bathrooms
- 1
- Sqft (est)
- 1,127.00
The heatmap indicates the level of crime in the area. The color of the heatmap indicates the crime severity and recency.
Metrics Year-on-Year
- Average area value
- 236,000.00 £Decreased by 21.21 %
- Est sale value
- 274,988.00 £Decreased by 6.51 %
- Average area rental value
- 913.00 £/moIncreased by 21.90 %
- Est letting value
- 0.00 £/mo
- Est rental Yield
- 4.64 %Increased by 54.67 %
- Crime Rate
- 2.00 %Unchanged by 0.00 %
Agent Activity
Morris and Bott created the listing.
Nearby Schools
| Name | Type | Ofsted | Distance |
|---|---|---|---|
| Kingsley School | Other Independent School | 0.54 KM | |
| St Mary'S Church Of England Primary School | Voluntary Controlled School | Good | 0.92 KM |
| Bideford College | Academy Sponsor Led | Requires improvement | 0.93 KM |
| West Croft School | Community School | Requires improvement | 1.04 KM |
| Bideford Bay Children'S Centre | Children's Centre | 1.23 KM |
Images
Nearby Streets
| Name | Average Price | Average Sqft | Distance |
|---|---|---|---|
| North Down Road | £ 424,495 | 0 | 0.00 KM |
| Middleton Road | £ 382,750 | 0 | 0.00 KM |
| Lime Grove | £ 229,097 | 0 | 0.00 KM |
| Northam Road | £ 795,000 | 0 | 0.00 KM |
| Elm Grove | £ 252,000 | 0 | 0.00 KM |
Nearby Listings
| Address | Price | Type | Score | Distance |
|---|---|---|---|---|
| North View Avenue, Bideford | £ 260,000 | BUY | 5 / 10 | 0.00 KM |
| Northdown Drive, Bideford, EX39 | £ 290,000 | BUY | 6 / 10 | 0.06 KM |
| Northdown Drive, Bideford, EX39 | £ 320,000 | BUY | 7 / 10 | 0.07 KM |
| Northdown Road, Bideford | £ 385,000 | BUY | 6 / 10 | 0.08 KM |
| Northdown Road, Bideford, Devon | £ 367,500 | BUY | Unknown | 0.09 KM |
Nearby Properties
| Address | Price | Distance |
|---|---|---|
| 2 North View Hill | £ 258,000 | 0.02 KM |
| 1 North View Hill | £ 214,000 | 0.02 KM |
| 3 North View Hill | £ 290,000 | 0.04 KM |
| 43 North View Avenue | £ 190,000 | 0.06 KM |
| 39 North View Avenue | £ 300,000 | 0.06 KM |