Sandringham Drive, New Brighton
By Harper & Woods
£ 270,000
Reviews
3 out of 5 stars
Harper & Woods says ..
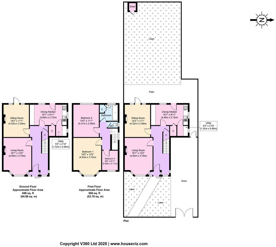
What a wonderful three bedroom semi detached home with the bonus of being sold with no chain. Waiting for a family to fill it, this home benefits from sea views, off road parking and a spacious rear garden. Located in New Brighton only a short distance to the promenade and the surrounding amen...
Property Oracle says ..
This is a three-bedroom semi-detached property located on Sandringham Drive in New Brighton, Wirral. The property offers 1,266 sqft of living space. While the property requires modernisation, it benefits from a good location near schools and transport, and a decent sized garden. The property is listed with Harper & Woods.
Therefore, we give this property 6 / 10. *Disclaimer: This is our option and does constitute a recommendation or financial advice. Do your own research. *
- Price
- 7
- Condition
- 5
- Location
- 7
- Land
- 7
- Bedrooms
- 3
- Bathrooms
- 1
- Sqft (est)
- 1,266.00
The heatmap indicates the level of crime in the area. The color of the heatmap indicates the crime severity and recency.
Metrics Year-on-Year
- Average area value
- 305,000.00 £Increased by 20.80 %
- Est sale value
- 344,352.00 £Increased by 15.74 %
- Average area rental value
- 693.00 £/moDecreased by 32.39 %
- Est letting value
- 0.00 £/mo
- Est rental Yield
- 2.73 %Decreased by 43.94 %
- Crime Rate
- 1.00 %Unchanged by 0.00 %
Agent Activity
Harper & Woods created the listing.
Nearby Schools
| Name | Type | Ofsted | Distance |
|---|---|---|---|
| Ss Peter And Paul Catholic Primary School | Voluntary Aided School | Good | 0.12 KM |
| Life Wirral (Independent) Sport School | Other Independent School | 0.49 KM | |
| Elleray Park School | Community Special School | Outstanding | 0.59 KM |
| New Brighton Children'S Centre | Children's Centre | 0.72 KM | |
| Mount Primary School | Community School | Good | 0.72 KM |
Images
Nearby Streets
| Name | Average Price | Average Sqft | Distance |
|---|---|---|---|
| Sandringham Drive | £ 0 | 0 | 0.00 KM |
| Salisbury Road | £ 0 | 0 | 0.00 KM |
| Auburn Road | £ 319,950 | 0 | 0.00 KM |
| The Orchard | £ 325,000 | 0 | 0.00 KM |
| King's Parade | £ 0 | 0 | 0.00 KM |
Nearby Transport
| Name | NLC | TLC | Distance |
|---|---|---|---|
| New Brighton | 2152 | NBN | 0.26 KM |
| Wallasey Grove Road | 2154 | WLG | 2.49 KM |
| Wallasey Village | 2265 | WLV | 2.67 KM |
| Birkenhead North | 2145 | BKN | 3.56 KM |
| Birkenhead Park | 2220 | BKP | 4.32 KM |
Nearby Listings
| Address | Price | Type | Score | Distance |
|---|---|---|---|---|
| Sandringham Drive, New Brighton | £ 270,000 | BUY | 6 / 10 | 0.00 KM |
| Sandringham Drive, Wallasey, Wirral | £ 220,000 | BUY | 5 / 10 | 0.05 KM |
| Hamilton Road, Wallasey | £ 295,000 | BUY | Unknown | 0.09 KM |
| Hamilton Road, Wallasey, CH45 | £ 185,000 | BUY | 7 / 10 | 0.12 KM |
| Hamilton Road, Wallasey, CH45 9JE | £ 120,000 | BUY | 7 / 10 | 0.12 KM |
Nearby Properties
| Address | Price | Distance |
|---|---|---|
| 2 Sandringham Drive | £ 150,000 | 0.00 KM |
| 12 Sandringham Drive | £ 75,000 | 0.00 KM |
| 14a Sandringham Drive | £ 120,000 | 0.00 KM |
| 5 Sandringham Drive | £ 94,000 | 0.06 KM |
| 22 Sandringham Drive | £ 115,000 | 0.06 KM |