Meadows Estate Agents says ..
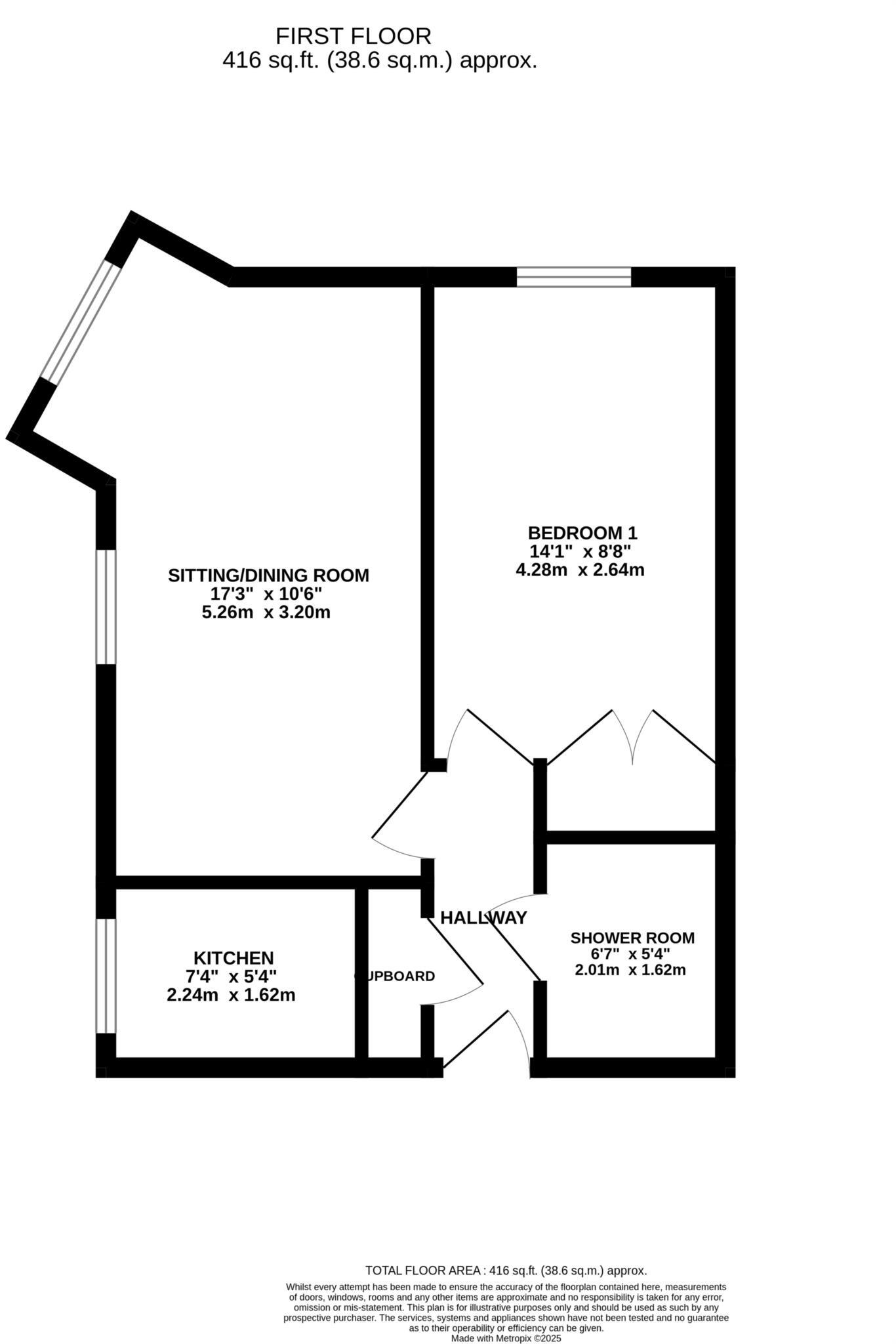
Bright one bedroom apartment situated on the first floor of this popular retirement development within level walking distance to Exmouth town centre. Accommodation briefly comprises Bright Double Aspect Sitting Room, Bedroom with Fitted Wardrobe, Recently Fitted Kitchen, Recently Fitted Shower Room.
Property Oracle says ..
This property is a one bedroom retirement apartment located in Exmouth, Devon. The apartment is situated in a convenient location, close to local amenities and transportation links. While the apartment appears well-maintained and clean from the provided images, it is relatively small and may not suit all buyers. The list price is lower than the average price for properties in the area, but this is likely due to the size and type of property. The lack of information regarding square footage and plot size makes a comprehensive analysis difficult.
Therefore, we give this property 6 / 10. *Disclaimer: This is our option and does constitute a recommendation or financial advice. Do your own research. *
- Price
- 6
- Condition
- 7
- Location
- 8
- Land
- 3
- Bedrooms
- 1
- Bathrooms
- 1
The heatmap indicates the level of crime in the area. The color of the heatmap indicates the crime severity and recency.
Metrics Year-on-Year
- Average area value
- 353,125.00 £Increased by 13.69 %
- Average area rental value
- 1,100.00 £/moDecreased by 4.18 %
- Est rental Yield
- 3.74 %Decreased by 15.77 %
- Crime Rate
- 12.00 %Unchanged by 0.00 %
Agent Activity
Meadows Estate Agents created the listing.
Nearby Schools
| Name | Type | Ofsted | Distance |
|---|---|---|---|
| Exeter Road Community Primary School | Foundation School | Good | 0.43 KM |
| Exmouth Community College | Academy Converter | Requires improvement | 0.57 KM |
| The Beacon Church Of England (Va) Primary School | Voluntary Aided School | Good | 0.95 KM |
| St Joseph'S Catholic Primary School, Exmouth | Academy Converter | Good | 1.03 KM |
| Exeter Royal Academy For Deaf Education | Non-maintained Special School | Requires improvement | 1.33 KM |
Images
Nearby Streets
| Name | Average Price | Average Sqft | Distance |
|---|---|---|---|
| Lyndhurst Road | £ 0 | 0 | 0.00 KM |
| Southern Road | £ 425,000 | 0 | 0.00 KM |
| Park Lane | £ 0 | 0 | 0.00 KM |
| Albion Terrace | £ 200,000 | 0 | 0.00 KM |
| Highbury Park | £ 700,000 | 0 | 0.00 KM |
Nearby Transport
| Name | NLC | TLC | Distance |
|---|---|---|---|
| Exmouth | 5756 | EXM | 0.65 KM |
| Lympstone Village | 5761 | LYM | 3.28 KM |
| Starcross | 3413 | SCS | 4.03 KM |
| Dawlish Warren | 3409 | DWW | 4.70 KM |
| Lympstone Commando | 5762 | LYC | 5.16 KM |
Nearby Listings
| Address | Price | Type | Score | Distance |
|---|---|---|---|---|
| Hometor House, Exmouth | £ 88,000 | BUY | 6 / 10 | 0.00 KM |
| Woodville Road, Exmouth, Devon, EX8 | £ 350,000 | BUY | Unknown | 0.09 KM |
| Exeter Road, Exmouth, Devon | £ 210,000 | BUY | Unknown | 0.11 KM |
| Lyndhurst Road, Exmouth | £ 425,000 | BUY | 7 / 10 | 0.11 KM |
| Belle Vue Road, Exmouth | £ 750,000 | BUY | 6 / 10 | 0.12 KM |
Nearby Properties
| Address | Price | Distance |
|---|---|---|
| 142a Exeter Road | £ 290,000 | 0.05 KM |
| 2 Woodville Road | £ 240,000 | 0.08 KM |
| 18 Woodville Road | £ 250,000 | 0.08 KM |
| 11 Woodville Road | £ 172,000 | 0.08 KM |
| 10 Woodville Road | £ 200,000 | 0.10 KM |