South Pool, Kingsbridge
ST

South Pool, Kingsbridge

By Stags

£ 1,000,000

Reviews

2 out of 5 stars

Stags says ..

An extraordinary opportunity - available for the first time in nearly a century. This rare project offers immense potential, in one of the most breathtaking waterside locations. A once-in-a-lifetime chance to shape something truly special in a setting of unmatched natural beauty. Additional...

Property Oracle says ..

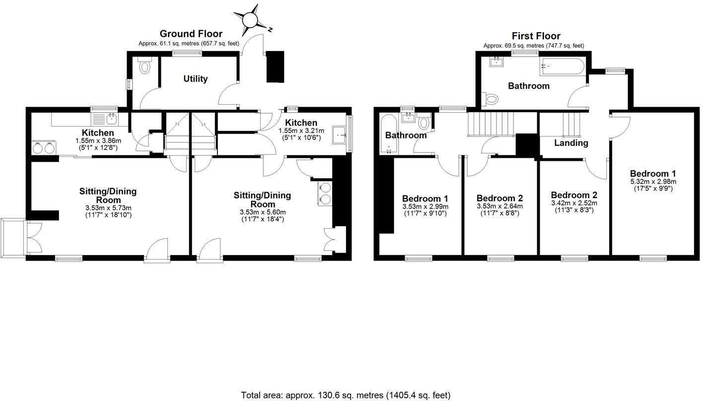
This property is a four bedroom detached house located in South Pool, Kingsbridge, Devon. It is situated on a plot of 1,405.40 sqft and has a total area of 750 sqft. The property is in need of significant renovation, as evidenced by the images provided. The location is desirable, offering views of the water and proximity to several good schools. However, there is no nearby transportation information available. The list price of £1,000,000 seems high compared to the average price of £275,043 for the area, and significantly higher than comparable properties in the vicinity. The average price per sqft in the area is £208, while this property is listed at approximately £1333 per sqft. This suggests that the price may not represent good value for money, given the condition of the property.

Therefore, we give this property 5 / 10. *Disclaimer: This is our option and does constitute a recommendation or financial advice. Do your own research. *

Price
3
Condition
3
Location
8
Land
7
Bedrooms
4
Bathrooms
2
Sqft (est)
750.00
Lot (est)
1,405.40

The heatmap indicates the level of crime in the area. The color of the heatmap indicates the crime severity and recency.

Metrics Year-on-Year

Average area value
216,225.00 £
Decreased by 4.32 %
from 225,977.00 £
Est sale value
196,500.00 £
Increased by 37.89 %
from 142,500.00 £
Average area rental value
863.00 £/mo
Decreased by 37.87 %
from 1,389.00 £/mo
Est letting value
750.00 £/mo
Unchanged by 0.00 %
from 750.00 £/mo
Est rental Yield
4.79 %
Decreased by 35.09 %
from 7.38 %
Crime Rate
0.00 %
from 0.00 %

Agent Activity

  • Stags created the listing.

Nearby Schools

NameTypeOfstedDistance
Charleton Church Of England AcademyAcademy ConverterGood3.38 KM
Salcombe Church Of England Primary SchoolAcademy ConverterGood5.67 KM
Stokenham Area Primary SchoolCommunity SchoolOutstanding5.78 KM
Kingsbridge & DistrictChildren's Centre6.31 KM
Kingsbridge Community Primary SchoolCommunity SchoolRequires improvement6.39 KM

Images

External External Internal Internal External Internal Internal External External External External External External External External External External View Internal Internal Internal Internal Internal Internal Internal Internal Internal View View View External External External View View View View View Garden View Promap-3244950-3342039-750-0.jpg

Nearby Streets

NameAverage PriceAverage SqftDistance
Riverside Cottages £ 000.00 KM
Higher North Pool Cottages £ 000.00 KM
Lower Barn Cottages £ 000.00 KM

Nearby Listings

AddressPriceTypeScoreDistance
South Pool, Kingsbridge £ 1,000,000BUY5 / 100.00 KM
Creek End, South Pool, Kingsbridge, Devon £ 400,000BUY6 / 100.53 KM
South Pool, Kingsbridge, TQ7 £ 2,000,000BUY5 / 100.65 KM
South Pool, Kingsbridge £ 1,000,000BUYUnknown0.88 KM
The Coach House, South Pool £ 495,000BUY5 / 101.29 KM

Nearby Properties

AddressPriceDistance
2 Cliff End Cottages £ 546,0000.02 KM
1 Cliff End Cottages £ 464,0000.02 KM