MC
Ty Gwyn Drive, Brackla, Bridgend
By McHattons
£ 225,000
Reviews
3 out of 5 stars
McHattons says ..
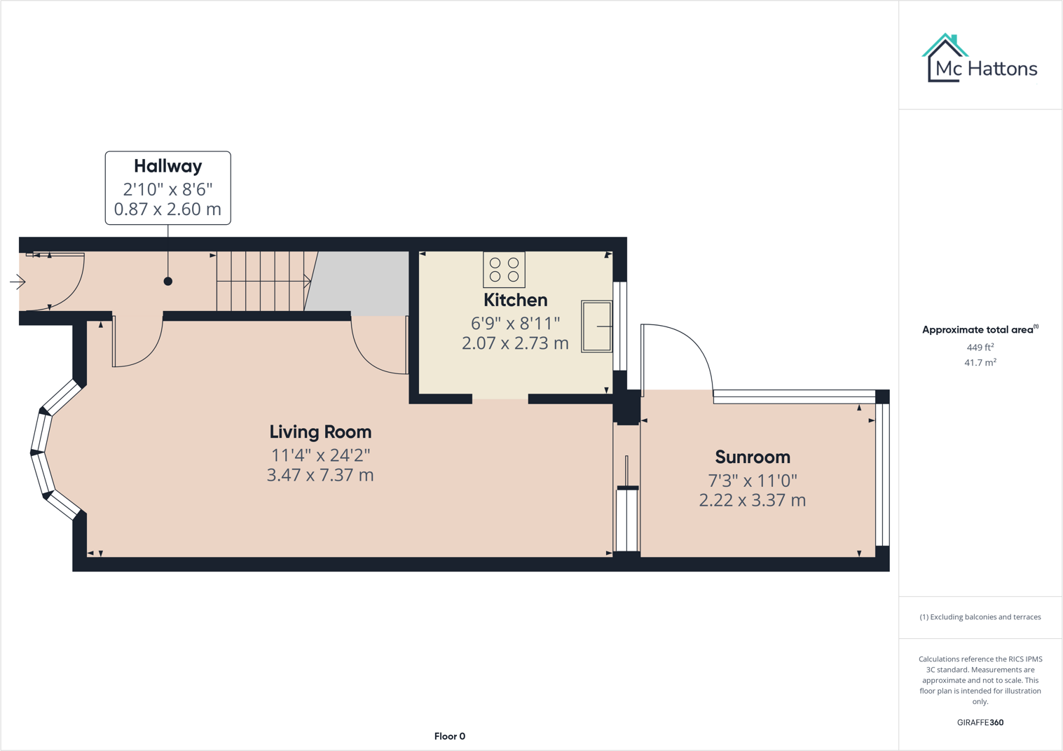
Situated within the desirable area of Ty Gwyn Drive, Brackla, Bridgend, this beautifully presented three-bedroom semi-detached house offers a perfect blend of comfort and style. Upon entering, you are welcomed into a hallway and door leading into spacious open-plan lounge and dining area, ideal ...
Property Oracle says ..
Therefore, we give this property 6 / 10. *Disclaimer: This is our option and does constitute a recommendation or financial advice. Do your own research. *
- Price
- 5
- Condition
- 8
- Location
- 7
- Land
- 6
- Bedrooms
- 3
- Bathrooms
- 1
- Sqft (est)
- 448.86
The heatmap indicates the level of crime in the area. The color of the heatmap indicates the crime severity and recency.
Metrics Year-on-Year
- Average area value
- 320,185.00 £Increased by 42.63 %
- Est sale value
- 133,760.28 £Increased by 12.03 %
- Average area rental value
- 1,013.00 £/moDecreased by 2.60 %
- Est letting value
- 0.00 £/moDecreased by 100.00 %
- Est rental Yield
- 3.80 %Decreased by 31.65 %
- Crime Rate
- 12.00 %Unchanged by 0.00 %
from 224,493.00 £
from 119,396.76 £
from 1,040.00 £/mo
from 448.86 £/mo
from 5.56 %
from 12.00 %
Agent Activity
McHattons created the listing.
Nearby Schools
| Name | Type | Ofsted | Distance |
|---|---|---|---|
| Archdeacon John Lewis | Welsh Establishment | 1.26 KM | |
| Archbishop Mcgrath Catholic High School | Welsh Establishment | 1.65 KM | |
| Coychurch (Llangrallo) Primary School | Welsh Establishment | 1.88 KM | |
| Coity Primary School | Welsh Establishment | 1.97 KM | |
| Ysgol Gymraeg Bro Ogwr | Welsh Establishment | 2.73 KM |
Images
Nearby Streets
| Name | Average Price | Average Sqft | Distance |
|---|---|---|---|
| Long Acre | £ 0 | 0 | 0.00 KM |
| Mandela Avenue | £ 250,000 | 0 | 0.00 KM |
| Laurel Court | £ 0 | 0 | 0.00 KM |
| Linnet Way | £ 0 | 0 | 0.00 KM |
| Nant Bryn-glas Circular Walk | £ 0 | 0 | 0.00 KM |
Nearby Transport
| Name | NLC | TLC | Distance |
|---|---|---|---|
| Bridgend | 3809 | BGN | 3.47 KM |
| Wildmill | 3965 | WMI | 4.29 KM |
| Pencoed | 3851 | PCD | 5.23 KM |
| Sarn | 4270 | SRR | 6.26 KM |
| Tondu | 4271 | TDU | 7.34 KM |
Nearby Listings
| Address | Price | Type | Score | Distance |
|---|---|---|---|---|
| Ty Gwyn Drive, Brackla, Bridgend | £ 225,000 | BUY | 6 / 10 | 0.00 KM |
| 127 Ty Gwyn Drive, Bridgend, CF31 2QH | £ 220,000 | BUY | 7 / 10 | 0.02 KM |
| Ty Gwyn Drive, Brackla, Bridgend, Bridgend County. CF31 2QH | £ 220,000 | BUY | 6 / 10 | 0.03 KM |
| Ty Gwyn Drive, Brackla, Bridgend, Bridgend County. CF31 2QH | £ 220,000 | BUY | 7 / 10 | 0.03 KM |
| Ty Gwyn Drive, Bridgend, CF31 | £ 220,000 | BUY | 7 / 10 | 0.04 KM |
Nearby Properties
| Address | Price | Distance |
|---|---|---|
| 148 Ty Gwyn Drive | £ 122,000 | 0.03 KM |
| 113 Ty Gwyn Drive | £ 123,000 | 0.03 KM |
| 112 Ty Gwyn Drive | £ 195,000 | 0.03 KM |
| 142 Ty Gwyn Drive | £ 175,000 | 0.03 KM |
| 134 Ty Gwyn Drive | £ 137,000 | 0.03 KM |