Arlington Grove, Cramlington, Northumberland, NE23 3GZ
By Pattinson Estate Agents
£ 259,950
Reviews
3 out of 5 stars
Pattinson Estate Agents says ..
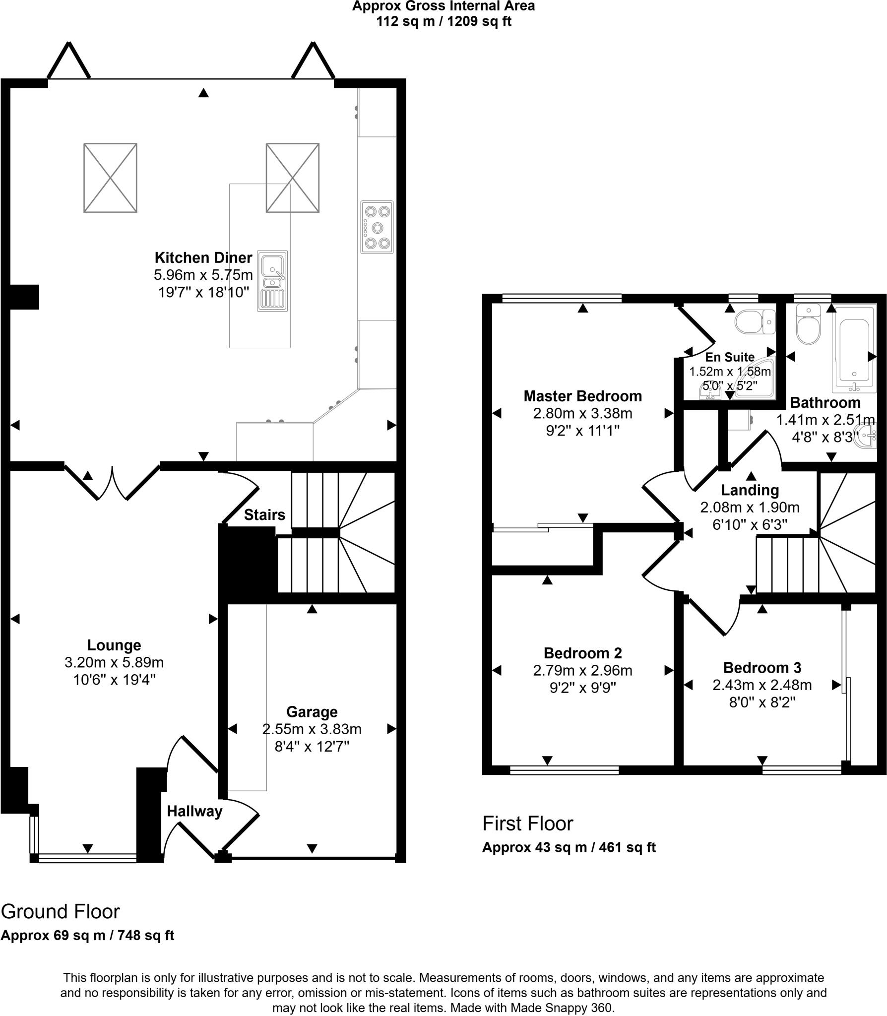
Welcome to this immaculate and beautifully presented home! Ideally situated within the highly desirable Northburn estate in Cramlington. Superb extension providing an impressive open plan expansive open plan kitchen, dining, and family room. The heart of the home—featuring an high end bespoke...
Property Oracle says ..
This is a well-presented semi-detached property in a popular residential area. The house benefits from a modern kitchen, well-maintained garden, and off-street parking. The property is located close to local schools and amenities, making it an ideal family home. The property is in good condition and appears to be ready to move into.
Therefore, we give this property 7 / 10. *Disclaimer: This is our option and does constitute a recommendation or financial advice. Do your own research. *
- Price
- 8
- Condition
- 9
- Location
- 7
- Land
- 7
- Bedrooms
- 3
- Bathrooms
- 2
The heatmap indicates the level of crime in the area. The color of the heatmap indicates the crime severity and recency.
Metrics Year-on-Year
- Average area value
- 625,000.00 £Increased by 9.15 %
- Average area rental value
- 1,525.00 £/moIncreased by 1.26 %
- Est rental Yield
- 2.93 %Decreased by 7.28 %
- Crime Rate
- 5.00 %Unchanged by 0.00 %
Agent Activity
Pattinson Estate Agents created the listing.
Nearby Schools
| Name | Type | Ofsted | Distance |
|---|---|---|---|
| Eastlea Primary School | Community School | Good | 0.51 KM |
| Burnside Primary School | Community School | Good | 0.67 KM |
| Cramlington Northburn Primary School | Community School | Good | 0.97 KM |
| Cramlington Shanklea Primary School | Community School | Good | 1.33 KM |
| Cramlington Village Primary School | Free Schools | Good | 1.33 KM |
Images
Nearby Streets
| Name | Average Price | Average Sqft | Distance |
|---|---|---|---|
| Sandford Avenue | £ 329,950 | 0 | 0.00 KM |
| Sheldon Grove | £ 0 | 0 | 0.00 KM |
| Eton Close | £ 0 | 0 | 0.00 KM |
| Durham Road | £ 0 | 0 | 0.00 KM |
| Pinewood Avenue | £ 300,000 | 0 | 0.00 KM |
Nearby Transport
| Name | NLC | TLC | Distance |
|---|---|---|---|
| Cramlington | 7579 | CRM | 2.54 KM |
Nearby Listings
| Address | Price | Type | Score | Distance |
|---|---|---|---|---|
| Arlington Grove, Cramlington, Northumberland, NE23 3GZ | £ 259,950 | BUY | 7 / 10 | 0.00 KM |
| Oxford Avenue, Eastfield Green, Cramlington | £ 154,950 | BUY | 6 / 10 | 0.02 KM |
| Arlington Grove, Cramlington | £ 295,000 | BUY | 8 / 10 | 0.04 KM |
| Arlington Grove, Cramlington | £ 350,000 | BUY | 6 / 10 | 0.04 KM |
| Arlington Grove, Hartford Glade, Cramlington | £ 349,950 | BUY | 7 / 10 | 0.08 KM |
Nearby Properties
| Address | Price | Distance |
|---|---|---|
| 21 Arlington Grove | £ 175,000 | 0.02 KM |
| 6 Arlington Grove | £ 232,500 | 0.02 KM |
| 8 Arlington Grove | £ 225,000 | 0.02 KM |
| 15 Arlington Grove | £ 190,000 | 0.02 KM |
| 16 Arlington Grove | £ 170,000 | 0.02 KM |