Eastwood Crescent, Bristol
By Parks Estate Agents
£ 324,950
Reviews
2 out of 5 stars
Parks Estate Agents says ..
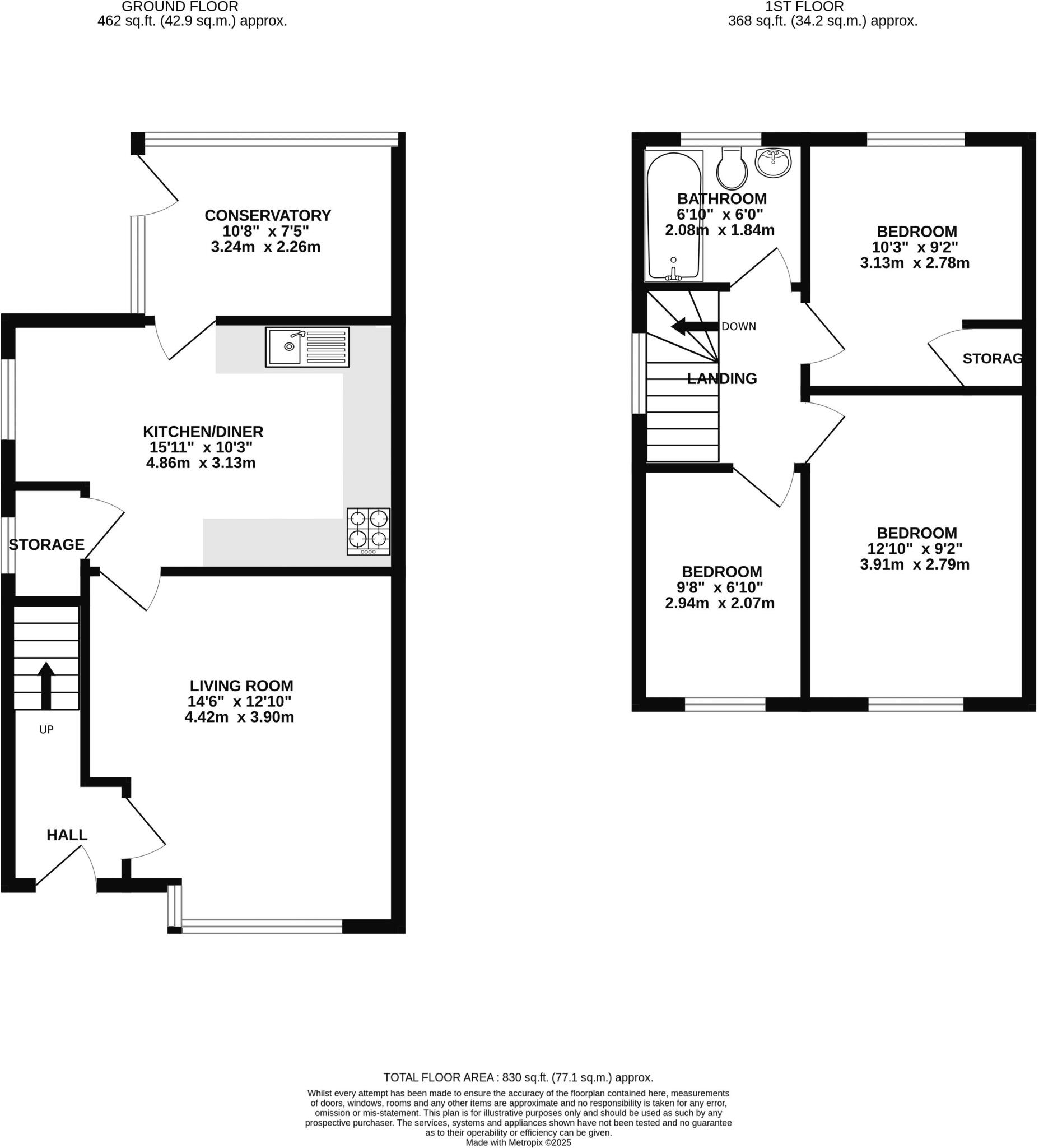
Parks Estate Agents are delighted to welcome to the market this three-bedroom end-terrace home with no onward chain. As you step inside, you're welcomed by a bright and spacious reception room, featuring a large bay window that allows the space a lovely natural light. Moving through the receptio...
Property Oracle says ..
This three-bedroom semi-detached house in Brislington East, Bristol, presents a mixed bag. The property’s location is a definite advantage; with access to local schools and transportation links, albeit slightly distant from the city center. The proximity to several train stations, via bus or car, offers commuters options. The availability of a small rear garden adds to its family-friendly appeal. However, the images reveal that certain aspects of the property require modernisation or updating. The kitchen in particular shows its age, and a renovation would likely enhance its value. The overall condition, while livable, is not premium and could be a deterrent to some buyers. The pricing is a significant consideration. Given comparable properties in the area sold for lower amounts, a price adjustment may be necessary to reflect the property’s condition and the absence of luxury features. Buyers should budget for potential renovations or updates in the kitchen and throughout the house to maximize value.
Therefore, we give this property 5 / 10. *Disclaimer: This is our option and does constitute a recommendation or financial advice. Do your own research. *
- Price
- 7
- Condition
- 5
- Location
- 6
- Land
- 4
- Bedrooms
- 3
- Bathrooms
- 1
- Sqft (est)
- 829.90
The heatmap indicates the level of crime in the area. The color of the heatmap indicates the crime severity and recency.
Metrics Year-on-Year
- Average area value
- 328,846.00 £Decreased by 2.79 %
- Est sale value
- 307,892.90 £Increased by 16.67 %
- Average area rental value
- 1,543.00 £/moIncreased by 3.84 %
- Est letting value
- 829.90 £/moUnchanged by 0.00 %
- Est rental Yield
- 5.63 %Increased by 6.83 %
- Crime Rate
- 21.00 %Unchanged by 0.00 %
Agent Activity
Parks Estate Agents created the listing.
Nearby Schools
| Name | Type | Ofsted | Distance |
|---|---|---|---|
| Broomhill & St Anne'S Park Children'S Centre | Children's Centre | 0.39 KM | |
| Broomhill Infant & Nursery School | Foundation School | Requires improvement | 0.39 KM |
| Broomhill Junior School | Community School | Good | 0.48 KM |
| St Brendan'S Sixth Form College | Further Education | Good | 1.11 KM |
| Carmel Christian School | Other Independent School | Inadequate | 1.29 KM |
Images
Nearby Streets
| Name | Average Price | Average Sqft | Distance |
|---|---|---|---|
| Wyndham Crescent | £ 237,500 | 0 | 0.00 KM |
| Eastwood Road | £ 405,556 | 0 | 0.00 KM |
| Fox House | £ 198,333 | 0 | 0.00 KM |
| Dean Close | £ 695,000 | 0 | 0.00 KM |
| Conham Hill | £ 0 | 0 | 0.00 KM |
Nearby Transport
| Name | NLC | TLC | Distance |
|---|---|---|---|
| Lawrence Hill | 3225 | LWH | 3.92 KM |
| Stapleton Road | 3250 | SRD | 4.70 KM |
| Keynsham | 3237 | KYN | 4.90 KM |
| Bristol Temple Meads | 3231 | BRI | 5.33 KM |
| Bedminster | 3245 | BMT | 6.65 KM |
Nearby Listings
| Address | Price | Type | Score | Distance |
|---|---|---|---|---|
| Eastwood Crescent, Bristol | £ 324,950 | BUY | 5 / 10 | 0.00 KM |
| Eastwood Crescent, Brislington, Bristol | £ 325,000 | BUY | 6 / 10 | 0.03 KM |
| Eastwood Crescent, Brislington, Bristol, BS4 4SR | £ 350,000 | BUY | 7 / 10 | 0.04 KM |
| Eastwood Crescent, Brislington, Bristol, BS4 | £ 375,000 | BUY | Unknown | 0.04 KM |
| Eastwood Crescent, Bristol, BS4 | £ 320,000 | BUY | 6 / 10 | 0.05 KM |
Nearby Properties
| Address | Price | Distance |
|---|---|---|
| 36 Eastwood Crescent | £ 157,000 | 0.03 KM |
| 14 Eastwood Crescent | £ 265,000 | 0.03 KM |
| 4 Eastwood Crescent | £ 129,995 | 0.03 KM |
| 16 Eastwood Crescent | £ 170,000 | 0.03 KM |
| 46 Eastwood Crescent | £ 169,500 | 0.03 KM |