80 Coleshill Terrace, Llanelli, Dyfed, SA15 3DA
By The Property Auction House
£ 175,000
Reviews
3 out of 5 stars
The Property Auction House says ..
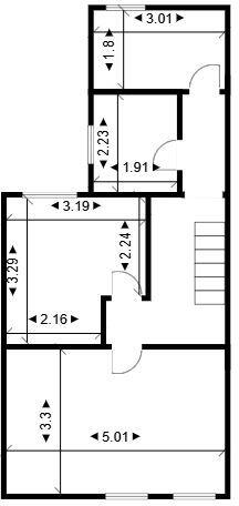
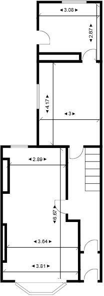
Guide Price: £175,000 For sale online from 12/08/2025 12:00, We have for sale by Online Sale a substantial three-bed terraced house located close to Llanelli town centre. The property consists of a through lounge-dining room, kitchen, and utility room on the ground floor with three bedrooms...
Property Oracle says ..
Therefore, we give this property 6 / 10. *Disclaimer: This is our option and does constitute a recommendation or financial advice. Do your own research. *
- Price
- 8
- Condition
- 6
- Location
- 7
- Land
- 5
- Bedrooms
- 3
- Bathrooms
- 1
The heatmap indicates the level of crime in the area. The color of the heatmap indicates the crime severity and recency.
Metrics Year-on-Year
- Average area value
- 310,998.00 £Decreased by 1.08 %
- Average area rental value
- 1,363.00 £/moIncreased by 13.58 %
- Est rental Yield
- 5.26 %Increased by 14.85 %
- Crime Rate
- 6.00 %Unchanged by 0.00 %
from 314,389.00 £
from 1,200.00 £/mo
from 4.58 %
from 6.00 %
Agent Activity
The Property Auction House created the listing.
Nearby Schools
| Name | Type | Ofsted | Distance |
|---|---|---|---|
| Pentip V.A. C.I.W. Primary School | Welsh Establishment | 0.08 KM | |
| Old Road C.P. Primary School | Welsh Establishment | 0.61 KM | |
| Ysgol Gymraeg Ffwrnes | Welsh Establishment | 0.80 KM | |
| Bigyn County Primary | Welsh Establishment | 1.44 KM | |
| Ysgol Gyfun Y Strade | Welsh Establishment | 1.72 KM |
Images
Nearby Streets
| Name | Average Price | Average Sqft | Distance |
|---|---|---|---|
| West End | £ 0 | 0 | 0.00 KM |
| Derwent Street | £ 0 | 0 | 0.00 KM |
| Park Crescent | £ 190,000 | 0 | 0.00 KM |
| John Street | £ 0 | 0 | 0.00 KM |
| Queen Victoria Road | £ 0 | 0 | 0.00 KM |
Nearby Transport
| Name | NLC | TLC | Distance |
|---|---|---|---|
| Llanelli | 4133 | LLE | 1.27 KM |
| Bynea | 4124 | BYE | 7.63 KM |
| Pembrey And Burry Port | 4140 | PBY | 8.96 KM |
| Llangennech | 4138 | LLH | 9.75 KM |
Nearby Listings
| Address | Price | Type | Score | Distance |
|---|---|---|---|---|
| 80 Coleshill Terrace, Llanelli, Dyfed, SA15 3DA | £ 175,000 | BUY | 6 / 10 | 0.00 KM |
| 60 Coleshill Terrace, Llanelli, Dyfed, SA15 3DA | £ 110,000 | BUY | 6 / 10 | 0.07 KM |
| Pembrey Road, Llanelli, Carmarthenshire, SA15 | £ 200,000 | BUY | 7 / 10 | 0.11 KM |
| New Road, Llanelli, Carmarthenshire, SA15 | £ 110,000 | BUY | 6 / 10 | 0.16 KM |
| Greenway Street, Llanelli, SA15 3BS | £ 165,000 | BUY | 7 / 10 | 0.19 KM |
Nearby Properties
| Address | Price | Distance |
|---|---|---|
| 1 Coleshill Terrace | £ 285,000 | 0.05 KM |
| 31 Coleshill Terrace | £ 182,500 | 0.05 KM |
| 3 Coleshill Terrace | £ 268,000 | 0.05 KM |
| 9 Coleshill Terrace | £ 185,000 | 0.05 KM |
| 35 New Road | £ 39,000 | 0.15 KM |