Plot 60 Priory Fields, St. Clears, Carmarthen, Carmarthenshire, SA33
By FBM
£ 345,000
Reviews
3 out of 5 stars
FBM says ..
Priory Fields is an exceptional new housing development in the town of St Clears. Expertly designed to complement the town's charming feel, Priory Fields features a blend of cream-rendered or brick exteriors, enhanced with stone accents and topped with elegant slate grey roof tiles. This th...
Property Oracle says ..
This property is a modern detached house located in St. Clears, Carmarthenshire. The list price of £345,000 seems slightly higher than the average price of £294,545 for the area, but considering the property appears to be in excellent condition and includes features such as a garage, the price may be justified. The lack of plot size information makes it difficult to assess the land value accurately. More information on the property’s specific features and condition would be needed for a complete analysis. The proximity to several schools, although their Ofsted ratings are not provided, is a positive aspect for families. However, the absence of nearby transportation details limits the assessment of the location score.
Therefore, we give this property 6 / 10. *Disclaimer: This is our option and does constitute a recommendation or financial advice. Do your own research. *
- Price
- 8
- Condition
- 10
- Location
- 7
- Land
- 1
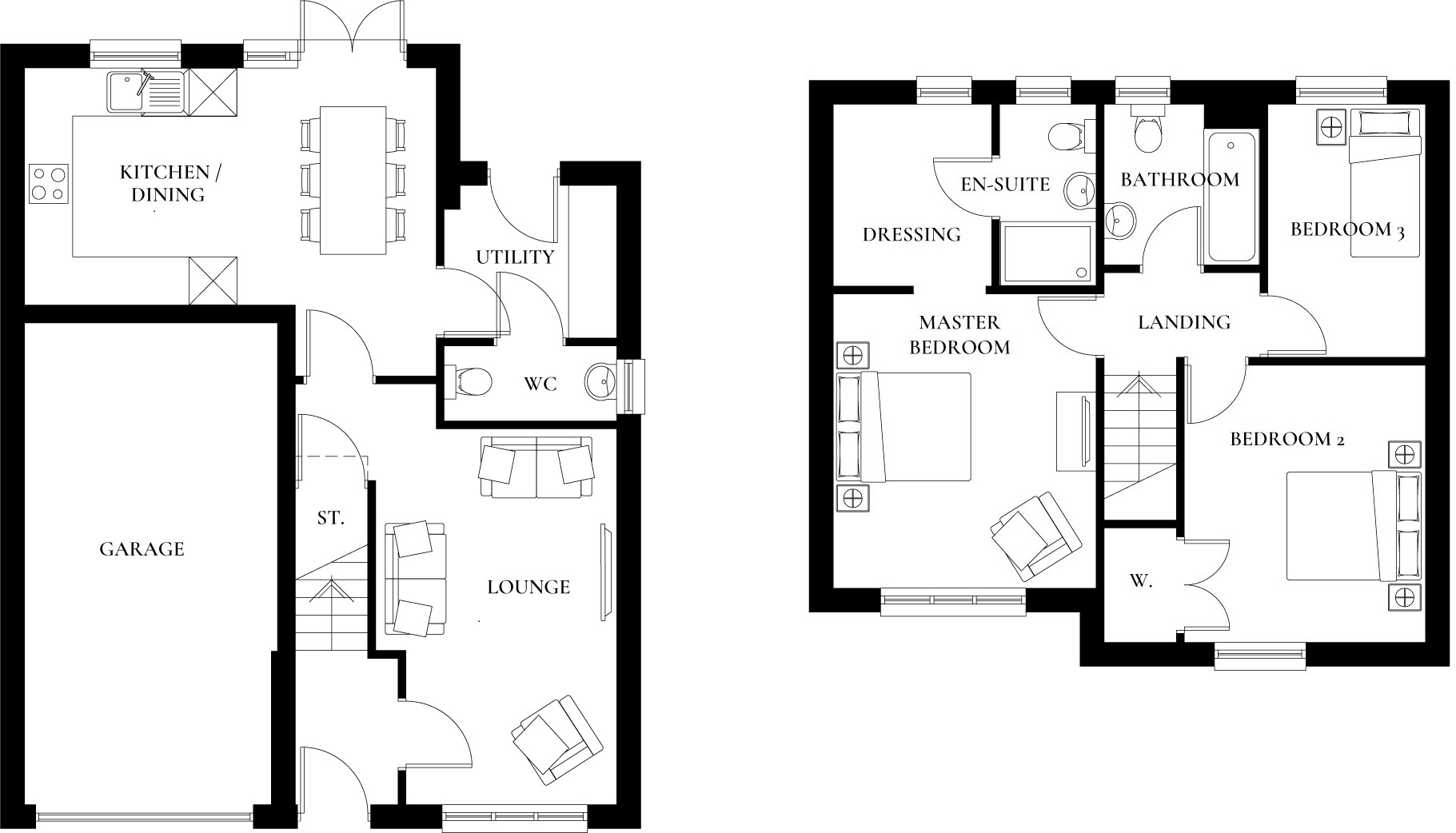
- Bedrooms
- 3
- Bathrooms
- 0
- Sqft (est)
- 1,225.00
The heatmap indicates the level of crime in the area. The color of the heatmap indicates the crime severity and recency.
Metrics Year-on-Year
- Average area value
- 310,998.00 £Decreased by 1.08 %
- Est sale value
- 409,150.00 £Increased by 16.78 %
- Average area rental value
- 1,363.00 £/moIncreased by 13.58 %
- Est letting value
- 1,225.00 £/moUnchanged by 0.00 %
- Est rental Yield
- 5.26 %Increased by 14.85 %
- Crime Rate
- 10.00 %Unchanged by 0.00 %
Agent Activity
FBM created the listing.
Nearby Schools
| Name | Type | Ofsted | Distance |
|---|---|---|---|
| Westward House School | Welsh Establishment | 0.41 KM | |
| Ysgol Griffith Jones | Welsh Establishment | 1.24 KM | |
| Meidrim C.P. School | Welsh Establishment | 5.30 KM | |
| Laugharne V.C.P. School | Welsh Establishment | 6.31 KM | |
| Bancyfelin C.P. School | Welsh Establishment | 7.59 KM |
Images
Nearby Streets
| Name | Average Price | Average Sqft | Distance |
|---|---|---|---|
| Gardde Fields | £ 250,000 | 0 | 0.00 KM |
| Old Blue Boar Garage | £ 150,000 | 0 | 0.00 KM |
| Ostrey Bank | £ 0 | 0 | 0.00 KM |
| Chestnut Villa | £ 270,000 | 0 | 0.00 KM |
| Foxhole Terrace | £ 0 | 0 | 0.00 KM |
Nearby Listings
| Address | Price | Type | Score | Distance |
|---|---|---|---|---|
| Plot 53, Priory Fields, St Clears, Carmarthen, SA33 | £ 430,000 | BUY | 6 / 10 | 0.00 KM |
| Cwrt Y Priordy, St. Clears, Carmarthen, Carmarthenshire, SA33 | £ 327,750 | BUY | Unknown | 0.00 KM |
| Plot 60 Priory Fields, St. Clears, Carmarthen, Carmarthenshire, SA33 | £ 345,000 | BUY | 6 / 10 | 0.00 KM |
| Cwrt Y Priordy, St. Clears, Carmarthen, Carmarthenshire, SA33 | £ 420,000 | BUY | 7 / 10 | 0.00 KM |
| Plot 4, Priory Fields, St. Clears, Carmarthen, Carmarthenshire, SA33 | £ 345,000 | BUY | Unknown | 0.00 KM |
Nearby Properties
| Address | Price | Distance |
|---|---|---|
| 1 Lon Fair | £ 179,500 | 0.09 KM |
| Brynteg | £ 35,000 | 0.11 KM |
| Green Villa | £ 160,000 | 0.11 KM |
| Danygraig | £ 145,000 | 0.11 KM |
| Green Meadow | £ 156,000 | 0.11 KM |