Hartslands Road, Sevenoaks, TN13
By John Kingston Estate Agents
£ 730,000
Reviews
3 out of 5 stars
John Kingston Estate Agents says ..
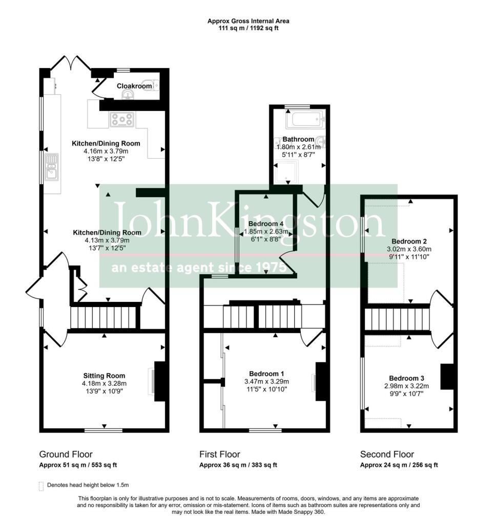
A tastefully updated Victorian semi-detached home offering light-filled, contemporary living behind a classic character façade. Arranged over three floors, the property features a fantastic open plan kitchen/dining room with underfloor heating, four bedrooms, a sitting room with origina...
Property Oracle says ..
This semi-detached property on Hartslands Road, Sevenoaks, offers four bedrooms and one bathroom within 275.45 sqft of living space. The house is listed for £730,000 by John Kingston Estate Agents. The property benefits from a modern interior, including a well-equipped kitchen and updated bathroom. The presence of a garden adds to its appeal. While the square footage is below the area average, the price reflects this. The property is located within proximity to local schools and transportation links, making it a convenient location for families and commuters.
Therefore, we give this property 7 / 10. *Disclaimer: This is our option and does constitute a recommendation or financial advice. Do your own research. *
- Price
- 7
- Condition
- 8
- Location
- 7
- Land
- 7
- Bedrooms
- 4
- Bathrooms
- 1
- Sqft (est)
- 275.45
The heatmap indicates the level of crime in the area. The color of the heatmap indicates the crime severity and recency.
Metrics Year-on-Year
- Average area value
- 1,145,000.00 £Increased by 51.85 %
- Est sale value
- 219,809.10 £Increased by 52.58 %
- Average area rental value
- 1,717.00 £/moDecreased by 6.07 %
- Est letting value
- 275.45 £/moUnchanged by 0.00 %
- Est rental Yield
- 1.80 %Decreased by 38.14 %
- Crime Rate
- 3.00 %Unchanged by 0.00 %
Agent Activity
John Kingston Estate Agents created the listing.
Nearby Schools
| Name | Type | Ofsted | Distance |
|---|---|---|---|
| St John'S Church Of England Primary School, Sevenoaks | Voluntary Controlled School | Good | 0.22 KM |
| Walthamstow Hall | Other Independent School | 0.30 KM | |
| Spring House Children'S Centre | Children's Centre | 0.65 KM | |
| Lady Boswell'S Church Of England Voluntary Aided Primary School, Sevenoaks | Voluntary Aided School | Outstanding | 0.92 KM |
| Sevenoaks Primary School | Community School | Good | 1.21 KM |
Images
Nearby Streets
| Name | Average Price | Average Sqft | Distance |
|---|---|---|---|
| Nursery Close | £ 0 | 0 | 0.00 KM |
| St John's Hill | £ 373,333 | 0 | 0.00 KM |
| Davis Close | £ 0 | 0 | 0.00 KM |
| St John's Hill | £ 250,000 | 0 | 0.00 KM |
| Grove Road | £ 400,000 | 0 | 0.00 KM |
Nearby Transport
| Name | NLC | TLC | Distance |
|---|---|---|---|
| Bat And Ball | 5090 | BBL | 1.01 KM |
| Sevenoaks | 5124 | SEV | 1.92 KM |
| Dunton Green | 5102 | DNG | 3.45 KM |
| Otford | 5071 | OTF | 3.51 KM |
| Kemsing | 5079 | KMS | 5.70 KM |
Nearby Listings
| Address | Price | Type | Score | Distance |
|---|---|---|---|---|
| Hartslands Road, Sevenoaks, TN13 | £ 730,000 | BUY | 7 / 10 | 0.00 KM |
| Hartslands Road, Sevenoaks | £ 795,000 | BUY | 7 / 10 | 0.02 KM |
| Bayham Road, Sevenoaks, Kent | £ 450,000 | BUY | 8 / 10 | 0.10 KM |
| Sandy Lane, Sevenoaks | £ 375,000 | BUY | 5 / 10 | 0.12 KM |
| Tockwith Court, 15 Bayham Road, Sevenoaks | £ 375,000 | BUY | 5 / 10 | 0.13 KM |
Nearby Properties
| Address | Price | Distance |
|---|---|---|
| 73 Hartslands Road | £ 575,000 | 0.01 KM |
| 55a Hartslands Road | £ 425,000 | 0.01 KM |
| 53a Hartslands Road | £ 560,000 | 0.01 KM |
| 47 Hartslands Road | £ 420,000 | 0.01 KM |
| 77 Hartslands Road | £ 500,000 | 0.01 KM |