Easton Drive, Sittingbourne, Kent, ME10
By Quealy & Co
£ 190,000
Reviews
2 out of 5 stars
Quealy & Co says ..
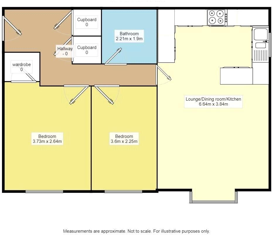
IDEAL FIRST TIME PURCHASE OR INVESTMENT OPPORTUNITY! VERY WELL PRESENTED TWO BEDROOM 1ST FLOOR APARTMENT WITH ALLOCATED PARKING, OPEN PLAN LOUNGE DINER AND MASTER BEDROOM WITH WALK IN WARDROBE.
Property Oracle says ..
This two-bedroom, one-bathroom apartment is located in Murston, Sittingbourne, a residential area in Kent. The property is part of a larger building, as indicated by the exterior photographs. The interior images showcase a modern, clean and well-maintained living space with a contemporary kitchen and bathroom. The flooring is hardwood throughout, and the apartment includes an open-plan kitchen/living area. The kitchen boasts modern cabinetry and appliances. The bathroom is fully tiled and includes a shower over the bath. While the apartment is presented in good condition, the complete lack of external space is a significant factor. The location benefits from relatively close proximity to primary schools, with Lansdowne Primary School being particularly noteworthy (Ofsted rating ‘Good’) and Sittingbourne railway station being within a reasonable distance. However, the lack of square footage details for similar properties makes a precise assessment of value challenging. Overall, the apartment presents itself as a good option for first-time buyers or investors seeking a ready-to-move-in apartment in a convenient location, but the lack of outdoor space is a significant drawback.
Therefore, we give this property 5 / 10. *Disclaimer: This is our option and does constitute a recommendation or financial advice. Do your own research. *
- Price
- 7
- Condition
- 8
- Location
- 7
- Land
- 1
- Bedrooms
- 2
- Bathrooms
- 1
- Sqft (est)
- 684.91
The heatmap indicates the level of crime in the area. The color of the heatmap indicates the crime severity and recency.
Metrics Year-on-Year
- Average area value
- 277,857.00 £Increased by 6.40 %
- Est sale value
- 283,552.74 £Increased by 16.95 %
- Average area rental value
- 1,100.00 £/moDecreased by 13.66 %
- Est letting value
- 684.91 £/moUnchanged by 0.00 %
- Est rental Yield
- 4.75 %Decreased by 18.80 %
- Crime Rate
- 21.00 %Unchanged by 0.00 %
Agent Activity
Quealy & Co created the listing.
Nearby Schools
| Name | Type | Ofsted | Distance |
|---|---|---|---|
| Lansdowne Primary School | Academy Sponsor Led | Good | 0.48 KM |
| Sunny Bank Primary School | Academy Sponsor Led | 0.80 KM | |
| Murston Children'S Centre | Children's Centre | 0.95 KM | |
| Bapchild And Tonge Church Of England Primary School And Nursery | Voluntary Aided School | Good | 1.04 KM |
| Meadowfield School | Foundation Special School | Outstanding | 1.04 KM |
Images
Nearby Streets
| Name | Average Price | Average Sqft | Distance |
|---|---|---|---|
| Lomas Road | £ 0 | 0 | 0.00 KM |
| Gordon Close | £ 0 | 0 | 0.00 KM |
| East Hall Close | £ 0 | 0 | 0.00 KM |
| Spring Grove | £ 0 | 0 | 0.00 KM |
| Blossom Street | £ 285,000 | 0 | 0.00 KM |
Nearby Transport
| Name | NLC | TLC | Distance |
|---|---|---|---|
| Sittingbourne | 5187 | SIT | 2.95 KM |
| Kemsley | 5205 | KML | 3.72 KM |
| Teynham | 5193 | TEY | 5.17 KM |
| Swale | 5249 | SWL | 5.57 KM |
| Queenborough | 5176 | QBR | 8.38 KM |
Nearby Listings
| Address | Price | Type | Score | Distance |
|---|---|---|---|---|
| Easton Drive, Sittingbourne, Kent, ME10 | £ 275,000 | BUY | 5 / 10 | 0.00 KM |
| Easton Drive, Sittingbourne, Kent, ME10 | £ 190,000 | BUY | 5 / 10 | 0.00 KM |
| Easton Drive, Sittingbourne, ME10 | £ 325,000 | BUY | 7 / 10 | 0.00 KM |
| Easton Drive, Sittingbourne, Kent, ME10 | £ 350,000 | BUY | 7 / 10 | 0.00 KM |
| Easton Drive, Sittingbourne, Kent | £ 340,000 | BUY | 6 / 10 | 0.01 KM |
Nearby Properties
| Address | Price | Distance |
|---|---|---|
| 20 Easton Drive | £ 227,500 | 0.01 KM |
| 30 Easton Drive | £ 153,000 | 0.01 KM |
| 28 Easton Drive | £ 40,500 | 0.01 KM |
| 14 Easton Drive | £ 225,000 | 0.01 KM |
| 1 Easton Drive | £ 232,000 | 0.01 KM |