Wisley Gardens, Farnborough, Hampshire, GU14
By Mackenzie Smith
£ 625,000
Reviews
3 out of 5 stars
Mackenzie Smith says ..
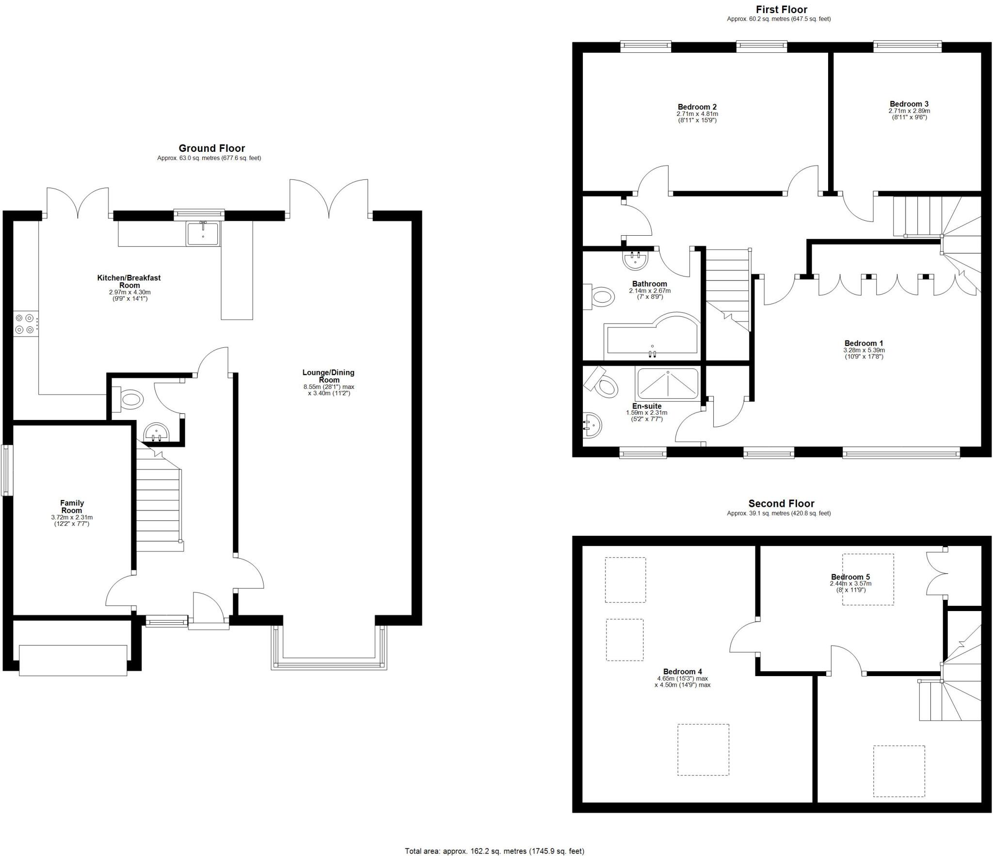
In the popular Southwood location, this substantial modern home offers spacious, versatile family living areas. With a stylish kitchen, large lounge/diner and family room all to the ground floor. The property is being sold with no onward chain.
Property Oracle says ..
This is a detached property in Farnborough, Hampshire, featuring five bedrooms and two bathrooms. The house appears to be in good condition, with a modern kitchen and bathrooms. It also benefits from a garden with a shed and a garage. The property is situated in a residential area with access to local schools and amenities. The asking price of £625,000 seems reasonable for the size and location of the property.
Therefore, we give this property 7 / 10. *Disclaimer: This is our option and does constitute a recommendation or financial advice. Do your own research. *
- Price
- 7
- Condition
- 8
- Location
- 7
- Land
- 6
- Bedrooms
- 5
- Bathrooms
- 2
The heatmap indicates the level of crime in the area. The color of the heatmap indicates the crime severity and recency.
Metrics Year-on-Year
- Average area value
- 359,375.00 £Decreased by 28.31 %
- Average area rental value
- 1,575.00 £/moIncreased by 0.25 %
- Est rental Yield
- 5.26 %Increased by 39.89 %
- Crime Rate
- 3.00 %Unchanged by 0.00 %
Agent Activity
Mackenzie Smith created the listing.
Nearby Schools
| Name | Type | Ofsted | Distance |
|---|---|---|---|
| Southwood Infant School | Community School | Good | 0.56 KM |
| Tower Hill Primary School | Community School | Outstanding | 1.36 KM |
| Cove School | Foundation School | Good | 1.43 KM |
| Cove Junior School | Community School | Good | 1.48 KM |
| Parsonage Farm Nursery And Infant School | Community School | Outstanding | 1.59 KM |
Images
Nearby Streets
| Name | Average Price | Average Sqft | Distance |
|---|---|---|---|
| North Perimeter Road | £ 0 | 0 | 0.00 KM |
| Kendal Close | £ 0 | 0 | 0.00 KM |
| Apollo Rise | £ 407,500 | 0 | 0.00 KM |
| Jubilee Close | £ 0 | 0 | 0.00 KM |
| Church Lane | £ 675,000 | 0 | 0.00 KM |
Nearby Transport
| Name | NLC | TLC | Distance |
|---|---|---|---|
| Farnborough (Main) | 5521 | FNB | 3.17 KM |
| Farnborough North | 5688 | FNN | 4.69 KM |
| Frimley | 5683 | FML | 4.80 KM |
| Blackwater | 5625 | BAW | 4.94 KM |
| Aldershot | 5623 | AHT | 5.25 KM |
Nearby Listings
| Address | Price | Type | Score | Distance |
|---|---|---|---|---|
| Wisley Gardens, Farnborough, Hampshire, GU14 | £ 625,000 | BUY | 7 / 10 | 0.00 KM |
| Heather Gardens, Farnborough, Hampshire, GU14 | £ 630,000 | BUY | 7 / 10 | 0.03 KM |
| Southern Way, Farnborough, Hampshire, GU14 | £ 415,000 | BUY | 7 / 10 | 0.11 KM |
| Wisley Gardens, Farnborough | £ 750,000 | BUY | 7 / 10 | 0.12 KM |
| Southern Way, Farnborough, Hampshire, GU14 | £ 500,000 | BUY | 6 / 10 | 0.12 KM |
Nearby Properties
| Address | Price | Distance |
|---|---|---|
| 2 Wisley Gardens | £ 370,000 | 0.01 KM |
| 37 Wisley Gardens | £ 347,000 | 0.01 KM |
| 36 Wisley Gardens | £ 472,000 | 0.01 KM |
| 42 Wisley Gardens | £ 295,000 | 0.01 KM |
| 48 Wisley Gardens | £ 287,500 | 0.01 KM |