Humberts says ..
A superb two bedroom semi-detached house in the much sought after Pebble Beach Development with a garden and two allocated parking spaces
Property Oracle says ..
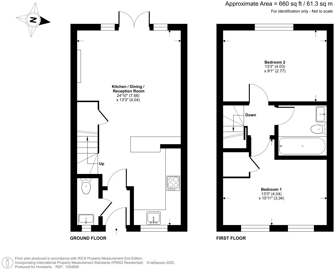
This property is a 2 bedroom, 1 bathroom house located in Seaton, Devon. The property is in good condition and benefits from a small, enclosed rear garden. While the average price per square foot in the area is £301, this property is listed at a slightly lower price per square foot. The location is convenient, with nearby schools including Seaton Primary School (rated Outstanding) and Axe Valley Children’s Centre. However, the provided data does not offer information on nearby transportation links. The property appears well-maintained based on the photos.
Therefore, we give this property 7 / 10. *Disclaimer: This is our option and does constitute a recommendation or financial advice. Do your own research. *
- Price
- 7
- Condition
- 8
- Location
- 7
- Land
- 6
- Bedrooms
- 2
- Bathrooms
- 1
- Sqft (est)
- 575.00
- Lot (est)
- 660.00
The heatmap indicates the level of crime in the area. The color of the heatmap indicates the crime severity and recency.
Metrics Year-on-Year
- Average area value
- 313,952.00 £Increased by 24.10 %
- Est sale value
- 181,125.00 £Increased by 16.24 %
- Average area rental value
- 876.00 £/moIncreased by 10.19 %
- Est letting value
- 0.00 £/mo
- Est rental Yield
- 3.35 %Decreased by 11.14 %
- Crime Rate
- 10.00 %Unchanged by 0.00 %
Agent Activity
Humberts created the listing.
Nearby Schools
| Name | Type | Ofsted | Distance |
|---|---|---|---|
| Axe Valley Children'S Centre | Children's Centre | 0.71 KM | |
| Seaton Primary School | Community School | Outstanding | 1.15 KM |
| Colyton Grammar School | Academy Converter | 2.53 KM | |
| Colyton Primary Academy | Academy Sponsor Led | 3.83 KM | |
| Beer Church Of England Primary School | Academy Converter | Requires improvement | 4.05 KM |
Images
Nearby Streets
| Name | Average Price | Average Sqft | Distance |
|---|---|---|---|
| Turnstone Avenue | £ 0 | 0 | 0.00 KM |
| Burrow Road | £ 650,000 | 0 | 0.00 KM |
| Kings Court | £ 245,000 | 0 | 0.00 KM |
| The Harbour | £ 0 | 0 | 0.00 KM |
| Stock Lane | £ 0 | 0 | 0.00 KM |
Nearby Listings
| Address | Price | Type | Score | Distance |
|---|---|---|---|---|
| Osprey Avenue, Seaton, Devon | £ 280,000 | BUY | 7 / 10 | 0.00 KM |
| Shearwater Way, Seaton | £ 499,950 | BUY | 7 / 10 | 0.03 KM |
| Mabry Way, Seaton, Devon, EX12 | £ 475,000 | BUY | Unknown | 0.07 KM |
| Shearwater Way, Seaton, Devon, EX12 | £ 410,000 | BUY | 6 / 10 | 0.07 KM |
| Shearwater Way, Seaton, EX12 | £ 325,000 | BUY | 7 / 10 | 0.08 KM |
Nearby Properties
| Address | Price | Distance |
|---|---|---|
| 20 Kingfisher Close | £ 194,995 | 0.13 KM |
| 15 Kingfisher Close | £ 252,500 | 0.13 KM |
| 6 Kingfisher Close | £ 188,000 | 0.13 KM |
| 19 Shearwater Way | £ 175,000 | 0.14 KM |
| 45 Shearwater Way | £ 225,950 | 0.18 KM |