Gascoigne Halman says ..
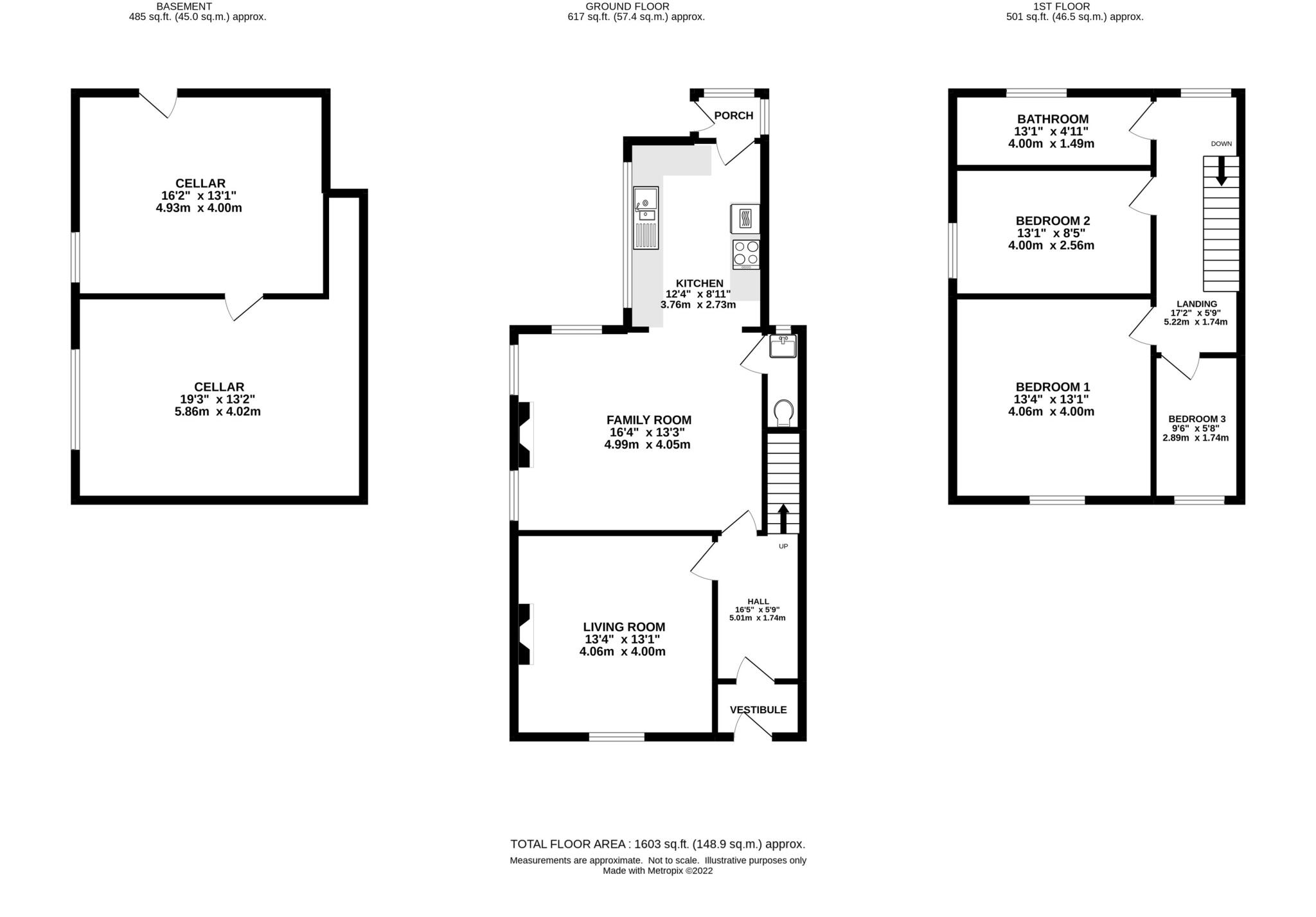
Set back from Corn Street itself by a pleasant forecourt garden area the property sits on a generous plot that includes secure gated parking, a detached garage and cottage style gardens. In brief the main accommodation includes an entrance vestibule and a spacious entrance...
Property Oracle says ..
Therefore, we give this property 7 / 10. *Disclaimer: This is our option and does constitute a recommendation or financial advice. Do your own research. *
- Price
- 6
- Condition
- 7
- Location
- 7
- Land
- 8
- Bedrooms
- 3
- Bathrooms
- 1
The heatmap indicates the level of crime in the area. The color of the heatmap indicates the crime severity and recency.
Metrics Year-on-Year
- Average area value
- 207,155.00 £Decreased by 4.75 %
- Average area rental value
- 960.00 £/moIncreased by 7.14 %
- Est rental Yield
- 5.56 %Increased by 12.55 %
- Crime Rate
- 3.00 %Unchanged by 0.00 %
from 217,493.00 £
from 896.00 £/mo
from 4.94 %
from 3.00 %
Agent Activity
Gascoigne Halman created the listing.
Nearby Schools
| Name | Type | Ofsted | Distance |
|---|---|---|---|
| Duke Of Norfolk Cofe Primary School | Voluntary Controlled School | Requires improvement | 0.28 KM |
| All Saints Catholic Voluntary Academy | Academy Converter | 0.62 KM | |
| St Mary'S Catholic Voluntary Academy | Academy Sponsor Led | 0.81 KM | |
| Glossop Children'S Centre | Children's Centre | 1.16 KM | |
| St Luke'S Cofe Primary School | Voluntary Controlled School | Good | 1.54 KM |
Images
Nearby Streets
| Name | Average Price | Average Sqft | Distance |
|---|---|---|---|
| Corn Street | £ 0 | 0 | 0.00 KM |
| Gladstone Close | £ 0 | 0 | 0.00 KM |
| Uplands Roads | £ 0 | 0 | 0.00 KM |
| Wesley Street | £ 750,000 | 0 | 0.00 KM |
| Uplands Road | £ 0 | 0 | 0.00 KM |
Nearby Transport
| Name | NLC | TLC | Distance |
|---|---|---|---|
| Glossop | 2895 | GLO | 0.75 KM |
| Hadfield | 2896 | HDF | 3.11 KM |
| Dinting | 2893 | DTG | 3.14 KM |
| Broadbottom | 2892 | BDB | 8.22 KM |
Nearby Listings
| Address | Price | Type | Score | Distance |
|---|---|---|---|---|
| Corn Street, Glossop | £ 365,000 | BUY | 7 / 10 | 0.00 KM |
| Regent Street, Glossop, Derbyshire, SK13 | £ 110,000 | BUY | Unknown | 0.10 KM |
| High Street East, Glossop, Derbyshire, SK13 | £ 200,000 | BUY | 6 / 10 | 0.13 KM |
| High Street East, Glossop, SK13 8QF | £ 185,000 | BUY | Unknown | 0.18 KM |
| Gowda Way, Glossop, Derbyshire, SK13 | £ 124,000 | BUY | 6 / 10 | 0.23 KM |
Nearby Properties
| Address | Price | Distance |
|---|---|---|
| 177 High Street East | £ 166,000 | 0.16 KM |
| 130 High Street East | £ 119,950 | 0.16 KM |
| 191 High Street East | £ 122,000 | 0.16 KM |
| 92 High Street East | £ 125,000 | 0.16 KM |
| 187 High Street East | £ 113,500 | 0.16 KM |