Bronte Close, WF13 4SA
YI

Bronte Close, WF13 4SA

By yieldit

£ 195,000

Reviews

2 out of 5 stars

yieldit says ..

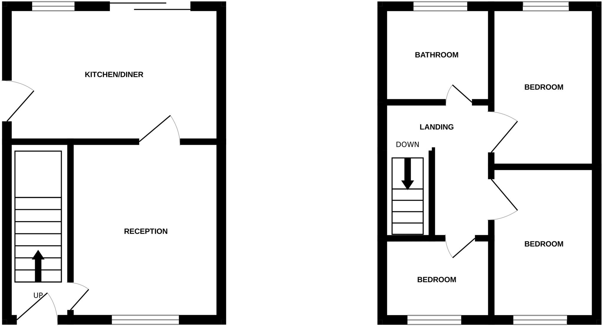
ATTENTION BUY-TO-LET INVESTORS! A turnkey three bedroom detached investment – attractive 5.8% yield & excellent growth potential.

Property Oracle says ..

Therefore, we give this property 5 / 10. *Disclaimer: This is our option and does constitute a recommendation or financial advice. Do your own research. *

Price
7
Condition
4
Location
6
Land
5
Bedrooms
3
Bathrooms
1
Sqft (est)
648.00

The heatmap indicates the level of crime in the area. The color of the heatmap indicates the crime severity and recency.

Metrics Year-on-Year

Average area value
128,333.00 £
Decreased by 40.46 %
from 215,536.00 £
Est sale value
114,696.00 £
Decreased by 16.51 %
from 137,376.00 £
Average area rental value
842.00 £/mo
Increased by 0.60 %
from 837.00 £/mo
Est letting value
648.00 £/mo
from 0.00 £/mo
Est rental Yield
7.87 %
Increased by 68.88 %
from 4.66 %
Crime Rate
5.00 %
Unchanged by 0.00 %
from 5.00 %

Agent Activity

  • yieldit created the listing.

Nearby Schools

NameTypeOfstedDistance
Ethos CollegeAcademy Alternative Provision Converter0.41 KM
Staincliffe Church Of England Voluntary Controlled Junior SchoolVoluntary Controlled SchoolGood0.72 KM
Manorfield Infant And Nursery SchoolCommunity SchoolGood0.82 KM
St Joseph'S Catholic Primary AcademyAcademy Converter0.82 KM
Westmoor Primary SchoolCommunity SchoolGood0.86 KM

Images

tod89329328IMG_1423_edited.jpg tod89329328IMG_1373_edited.jpg tod89329328IMG_1372_edited.jpg tod89329328IMG_1386_edited.jpg tod89329328IMG_1407_edited.jpg tod89329328IMG_1400_edited.jpg tod89329328IMG_1404_edited.jpg tod89329328IMG_1393_edited.jpg tod89329328IMG_1421_edited.jpg tod89329328IMG_1420_edited.jpg tod89329328IMG_1371_edited.jpg tod89329328IMG_1410_edited.jpg tod89329328IMG_1399_edited.jpg

Nearby Streets

NameAverage PriceAverage SqftDistance
Bronte Close £ 000.00 KM
Carlinghow Court £ 000.00 KM
Green Lane £ 000.00 KM
School Avenue £ 000.00 KM
Sherwood Close £ 000.00 KM

Nearby Transport

NameNLCTLCDistance
Dewsbury8326DEW2.53 KM
Ravensthorpe8519RVN2.90 KM
Batley8484BTL3.55 KM
Mirfield8518MIR5.43 KM
Morley8504MLY8.80 KM

Nearby Listings

AddressPriceTypeScoreDistance
Bronte Close, WF13 4SA £ 195,000BUY5 / 100.00 KM
Staincliffe Road, Dewsbury, WF13 £ 170,000BUY6 / 100.11 KM
Staincliffe Road, Dewsbury, West Yorkshire, WF13 £ 135,000BUY6 / 100.14 KM
Healds Road, Dewsbury, WF13 £ 170,000BUY5 / 100.19 KM
Dray View, Dewsbury £ 340,000BUY6 / 100.20 KM

Nearby Properties

AddressPriceDistance
24 Bronte Close £ 115,0000.06 KM
26 Bronte Close £ 115,0000.06 KM
16 Bronte Close £ 155,0000.06 KM
12 Bronte Close £ 183,0000.06 KM
28 Bronte Close £ 110,0000.06 KM