CL
150 Bogton Avenue, Flat 3/1, Muirend, Glasgow, G44 3JU
By Clyde Property
£ 179,000
Reviews
3 out of 5 stars
Clyde Property says ..
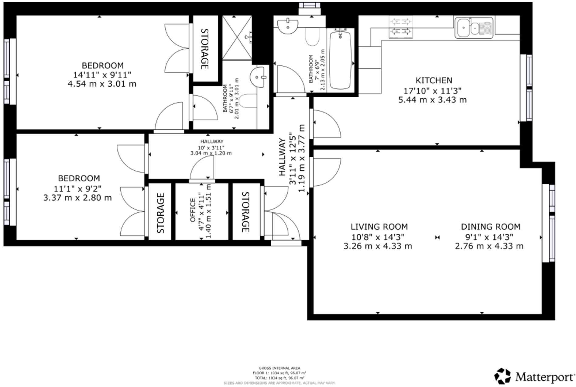
An exceptional third-floor executive apartment located within a highly sought-after modern development in the ever-popular Muirend district of Glasgow.
Property Oracle says ..
Therefore, we give this property 6 / 10. *Disclaimer: This is our option and does constitute a recommendation or financial advice. Do your own research. *
- Price
- 7
- Condition
- 8
- Location
- 8
- Land
- 3
- Bedrooms
- 2
- Bathrooms
- 2
- Sqft (est)
- 997.38
The heatmap indicates the level of crime in the area. The color of the heatmap indicates the crime severity and recency.
Metrics Year-on-Year
- Average area value
- 223,923.00 £Increased by 20.26 %
- Est sale value
- 164,567.70 £Decreased by 33.73 %
- Average area rental value
- 948.00 £/moIncreased by 4.87 %
- Est letting value
- 0.00 £/moDecreased by 100.00 %
- Est rental Yield
- 5.08 %Decreased by 12.86 %
- Crime Rate
- 488.00 %Unchanged by 0.00 %
from 186,203.00 £
from 248,347.62 £
from 904.00 £/mo
from 997.38 £/mo
from 5.83 %
from 488.00 %
Agent Activity
Clyde Property created the listing.
Images
Nearby Streets
| Name | Average Price | Average Sqft | Distance |
|---|---|---|---|
| Whitemoss Avenue | £ 235,000 | 0 | 0.00 KM |
| Kingsford Avenue | £ 380,000 | 0 | 0.00 KM |
| Corrie Grove | £ 399,000 | 0 | 0.00 KM |
| Hazelden Park | £ 0 | 0 | 0.00 KM |
| Clarkston Avenue | £ 165,000 | 0 | 0.00 KM |
Nearby Transport
| Name | NLC | TLC | Distance |
|---|---|---|---|
| Muirend | 9608 | MUI | 0.19 KM |
| Langside | 9818 | LGS | 1.37 KM |
| Cathcart | 9795 | CCT | 1.61 KM |
| Mount Florida | 9819 | MFL | 2.27 KM |
| Clarkston | 9792 | CKS | 2.28 KM |
Nearby Listings
| Address | Price | Type | Score | Distance |
|---|---|---|---|---|
| 150 Bogton Avenue, Flat 3/1, Muirend, Glasgow, G44 3JU | £ 179,000 | BUY | 6 / 10 | 0.00 KM |
| Bogton Avenue, Muirend, G44 3JU | £ 185,000 | BUY | 5 / 10 | 0.03 KM |
| Cairndow Court, Glasgow, G44 | £ 85,000 | BUY | 6 / 10 | 0.08 KM |
| Muirfield Court, Muirend | £ 95,000 | BUY | 6 / 10 | 0.08 KM |
| Muirfield Court, 20 Muirend Road, G44 | £ 150,000 | BUY | 6 / 10 | 0.09 KM |