Shrewsbury Road, RH1
By Robert Leech Estate Agents
£ 835,000
Reviews
3 out of 5 stars
Robert Leech Estate Agents says ..
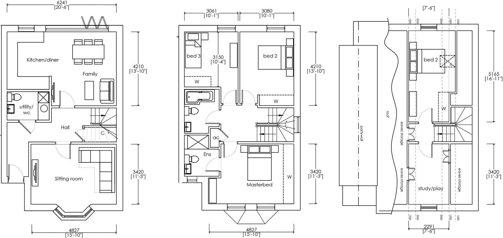
Plot 4 at Ranelagh Mews, with its frontage on Shrewsbury Road, is part of a collection of five brand new family homes in a highly regarded residential area between Reigate & Redhill town centres. Please call for further details , reservations now being taken.
Property Oracle says ..
This is a well-presented end-of-terrace property located on Shrewsbury Road in Redhill. The property benefits from its proximity to local schools and transportation links, making it a desirable location for families and commuters. The house is in excellent condition, with modern interiors and a well-maintained garden. While the asking price is on the higher end compared to nearby properties, the overall condition and location justify the valuation.
Therefore, we give this property 7 / 10. *Disclaimer: This is our option and does constitute a recommendation or financial advice. Do your own research. *
- Price
- 6
- Condition
- 9
- Location
- 7
- Land
- 7
- Bedrooms
- 4
- Bathrooms
- 2
- Sqft (est)
- 28,537.00
The heatmap indicates the level of crime in the area. The color of the heatmap indicates the crime severity and recency.
Metrics Year-on-Year
- Average area value
- 611,111.00 £Decreased by 6.31 %
- Est sale value
- 21,345,676.00 £Increased by 38.26 %
- Average area rental value
- 1,850.00 £/moIncreased by 3.24 %
- Est letting value
- 57,074.00 £/moIncreased by 100.00 %
- Est rental Yield
- 3.63 %Increased by 10.00 %
- Crime Rate
- 12.00 %Unchanged by 0.00 %
Agent Activity
Robert Leech Estate Agents created the listing.
Nearby Schools
| Name | Type | Ofsted | Distance |
|---|---|---|---|
| Hatchlands Primary | Free Schools | 0.26 KM | |
| St Joseph'S Catholic Primary School, Redhill | Voluntary Aided School | Good | 0.52 KM |
| Wray Common Primary School | Academy Converter | 0.66 KM | |
| Dunottar School | Other Independent School | 0.91 KM | |
| St John'S Primary School | Academy Converter | 0.93 KM |
Images
Nearby Streets
| Name | Average Price | Average Sqft | Distance |
|---|---|---|---|
| Linkfield Corner (Refell's Bridge) | £ 0 | 0 | 0.00 KM |
| Radnor Court | £ 0 | 0 | 0.00 KM |
| Millway | £ 1,850,000 | 0 | 0.00 KM |
| Highlands Road | £ 2,450,000 | 0 | 0.00 KM |
| Ridgeway Court | £ 270,000 | 0 | 0.00 KM |
Nearby Transport
| Name | NLC | TLC | Distance |
|---|---|---|---|
| Earlswood (Surrey) | 5414 | ELD | 1.53 KM |
| Redhill | 5478 | RDH | 1.56 KM |
| Reigate | 5480 | REI | 2.70 KM |
| Merstham | 5475 | MHM | 4.40 KM |
| Salfords (Surrey) | 5380 | SAF | 4.44 KM |
Nearby Listings
| Address | Price | Type | Score | Distance |
|---|---|---|---|---|
| JUST LAUNCHED - The Showhome at Ranelagh Mews | £ 895,000 | BUY | 7 / 10 | 0.00 KM |
| Ranelagh Road, Redhill | £ 695,000 | BUY | 7 / 10 | 0.00 KM |
| Coming Soon - Ranelagh Mews, Redhill | £ 775,000 | BUY | 7 / 10 | 0.00 KM |
| Shrewsbury Road, RH1 | £ 835,000 | BUY | 7 / 10 | 0.00 KM |
| Ranelagh Road, Redhill | £ 650,000 | BUY | 7 / 10 | 0.04 KM |
Nearby Properties
| Address | Price | Distance |
|---|---|---|
| 8 Shrewsbury Road | £ 600,000 | 0.01 KM |
| 34 Shrewsbury Road | £ 675,500 | 0.01 KM |
| 36 Shrewsbury Road | £ 615,000 | 0.01 KM |
| 38 Shrewsbury Road | £ 452,000 | 0.01 KM |
| 3 Shrewsbury Road | £ 685,000 | 0.01 KM |