JLL says ..
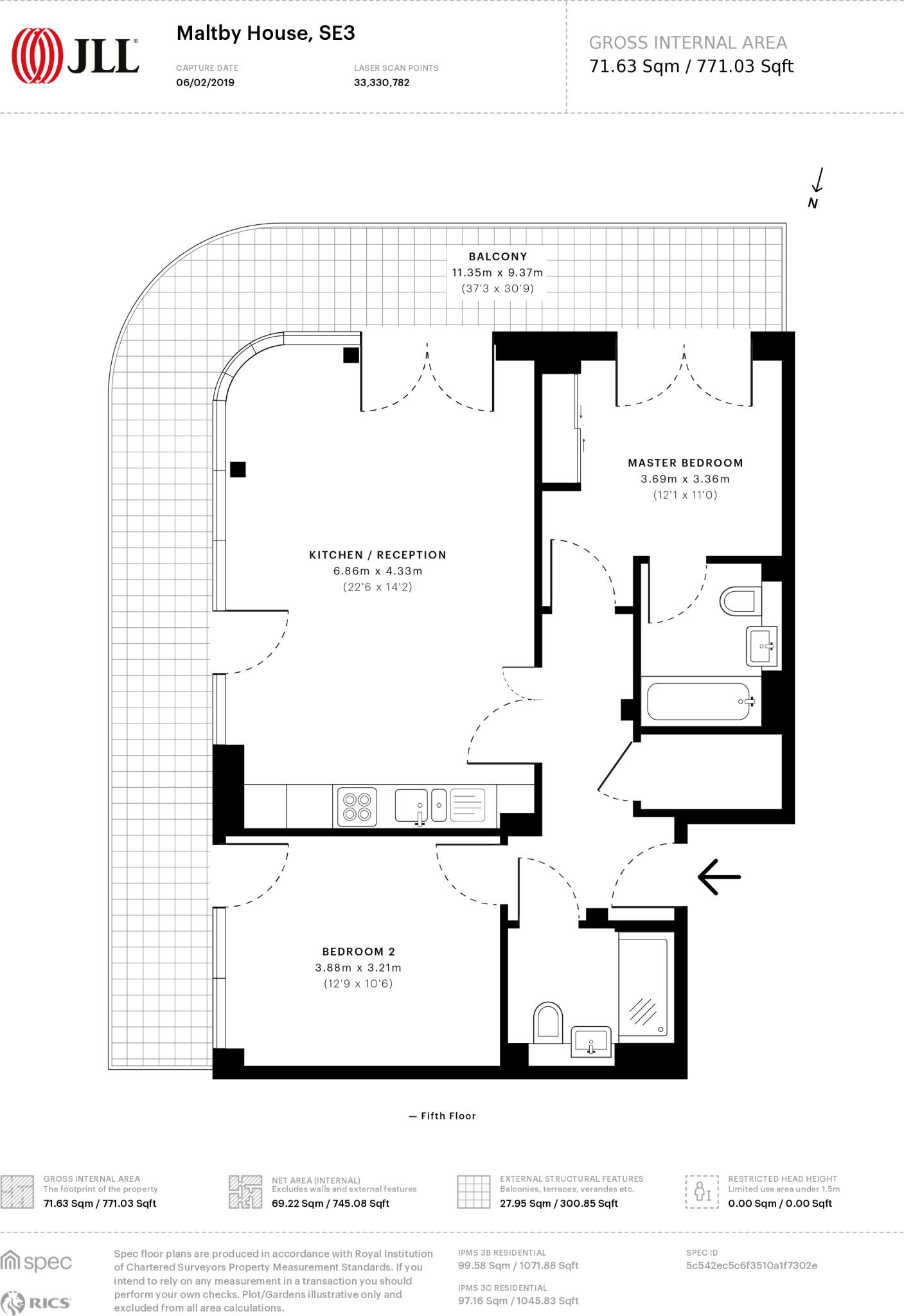
This superb penthouse with wrap around balcony with views of Sutcliffe park is located in the desirable Kidbrooke Village development. The property is just a short walk from Kidbrooke mainline station for an easy commute to London Bridge, Charing Cross and Cannon Street.
Property Oracle says ..
Therefore, we give this property 6 / 10. *Disclaimer: This is our option and does constitute a recommendation or financial advice. Do your own research. *
- Price
- 7
- Condition
- 9
- Location
- 8
- Land
- 3
- Bedrooms
- 2
- Bathrooms
- 2
- Sqft (est)
- 771.02
The heatmap indicates the level of crime in the area. The color of the heatmap indicates the crime severity and recency.
Metrics Year-on-Year
- Average area value
- 596,706.00 £Increased by 41.85 %
- Est sale value
- 507,331.16 £Increased by 23.45 %
- Average area rental value
- 2,446.00 £/moIncreased by 8.47 %
- Est letting value
- 1,542.04 £/moUnchanged by 0.00 %
- Est rental Yield
- 4.92 %Decreased by 23.48 %
- Crime Rate
- 11.00 %Unchanged by 0.00 %
from 420,664.00 £
from 410,953.66 £
from 2,255.00 £/mo
from 1,542.04 £/mo
from 6.43 %
from 11.00 %
Agent Activity
JLL marked this listing as sold.
JLL created the listing.
Nearby Schools
| Name | Type | Ofsted | Distance |
|---|---|---|---|
| Holy Family Catholic Primary School | Voluntary Aided School | Good | 0.28 KM |
| Ealdham Primary School | Community School | Good | 0.49 KM |
| Abbey Manor College | Pupil Referral Unit | Good | 0.79 KM |
| Storkway And Shooter'S Hill Children'S Centre | Children's Centre | 0.83 KM | |
| Newhaven Pupil Referral Unit | Pupil Referral Unit | Good | 0.91 KM |
Images
Nearby Streets
| Name | Average Price | Average Sqft | Distance |
|---|---|---|---|
| Kimbell Place | £ 300,000 | 0 | 0.00 KM |
| Meadowside | £ 0 | 0 | 0.00 KM |
| Banks Road | £ 0 | 0 | 0.00 KM |
| Dowding Way | £ 0 | 0 | 0.00 KM |
| Cambert Way | £ 0 | 0 | 0.00 KM |
Nearby Transport
| Name | NLC | TLC | Distance |
|---|---|---|---|
| Kidbrooke | 5108 | KDB | 0.65 KM |
| Lee | 5110 | LEE | 2.13 KM |
| Eltham | 5103 | ELW | 2.37 KM |
| Blackheath | 5095 | BKH | 2.62 KM |
| Mottingham | 5118 | MTG | 2.85 KM |
Nearby Listings
| Address | Price | Type | Score | Distance |
|---|---|---|---|---|
| Maltby House, 18, Tudway Road, London, SE3 | £ 450,000 | BUY | Unknown | 0.00 KM |
| Tudway Road, Kidbrooke Village, SE3 | £ 280,000 | BUY | 5 / 10 | 0.00 KM |
| Tudway Road Blackheath SE3 | £ 450,000 | BUY | 6 / 10 | 0.00 KM |
| Tudway Road, London, SE3 | £ 445,000 | BUY | 5 / 10 | 0.01 KM |
| Maltby House, Kidbrook Village, London | £ 450,000 | BUY | 5 / 10 | 0.01 KM |
Nearby Properties
| Address | Price | Distance |
|---|---|---|
| 3 Astell Road | £ 615,000 | 0.05 KM |
| 20 Ottley Drive | £ 605,000 | 0.09 KM |
| 9 Ottley Drive | £ 680,000 | 0.10 KM |
| 8 Ottley Drive | £ 735,000 | 0.10 KM |
| 11 Ottley Drive | £ 465,000 | 0.10 KM |