Salisbury Road, Carshalton, SM5
RO

Salisbury Road, Carshalton, SM5

By Rosindale Pavitt

£ 1,000,000

Reviews

3 out of 5 stars

Rosindale Pavitt says ..

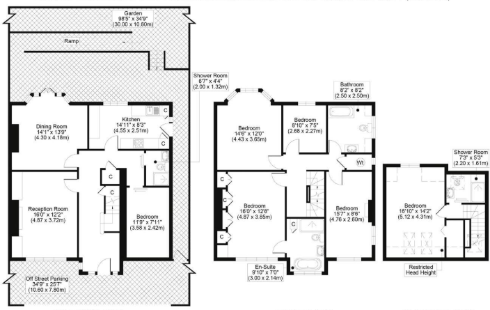
Offered with No Onward Chain... An exceptional opportunity to acquire this substantial six-bedroom, four-bathroom semi-detached family home, offering expansive living space across multiple floors, ideal for large or growing families, multi generational households, or those seeking flexible a...

Property Oracle says ..

A substantial semi-detached house with 6 bedrooms and 4 bathrooms, offering ample living space. The images show that the house has a garden. Internally, the property appears to be well-maintained and decorated in a modern style, though it retains some traditional features. The kitchen and bathrooms appear to have been recently updated. The property also benefits from what appears to be a dedicated office space.

Therefore, we give this property 7 / 10. *Disclaimer: This is our option and does constitute a recommendation or financial advice. Do your own research. *

Price
7
Condition
8
Location
8
Land
7
Bedrooms
6
Bathrooms
4
Sqft (est)
5,695.51

The heatmap indicates the level of crime in the area. The color of the heatmap indicates the crime severity and recency.

Metrics Year-on-Year

Average area value
524,000.00 £
Decreased by 3.73 %
from 544,291.00 £
Est sale value
3,969,770.47 £
Increased by 100.29 %
from 1,982,037.48 £
Average area rental value
1,458.00 £/mo
Decreased by 27.57 %
from 2,013.00 £/mo
Est letting value
5,695.51 £/mo
Unchanged by 0.00 %
from 5,695.51 £/mo
Est rental Yield
3.34 %
Decreased by 24.77 %
from 4.44 %
Crime Rate
3.00 %
Unchanged by 0.00 %
from 3.00 %

Agent Activity

  • Rosindale Pavitt created the listing.

Nearby Schools

NameTypeOfstedDistance
St Mary'S Rc Junior SchoolVoluntary Aided SchoolGood0.47 KM
St Philomena'S Catholic High School For GirlsVoluntary Aided SchoolOutstanding0.58 KM
St Mary'S Rc Infants SchoolVoluntary Aided SchoolGood0.67 KM
Stanley Park Junior SchoolFoundation SchoolGood0.69 KM
Stanley Park Infants SchoolAcademy Converter0.69 KM

Images

Picture No. 58 Picture 2 Picture 3 Google Maps Image Picture 4 Picture No. 54 Picture 9 Picture 10 Picture 11 Picture 14 Picture 15 Picture 19 Picture No. 52 Picture 6 Picture 7 Picture 8 Picture 12 Picture 13 Picture 16 Picture No. 49 Picture 18 Picture 20 Picture 22 Picture 24 Picture 23 Picture 25 Picture 26 Picture 27 Picture 28 Picture 29

Nearby Streets

NameAverage PriceAverage SqftDistance
Cedar Close £ 1,250,00000.00 KM
Cator Road £ 000.00 KM
Old Swan Yard £ 000.00 KM
Parkview Close £ 525,00000.00 KM
Tyrell Court £ 000.00 KM

Nearby Transport

NameNLCTLCDistance
Carshalton Beeches5406CSB0.54 KM
Carshalton5405CSH0.88 KM
Wallington5394WLT1.68 KM
Hackbridge5364HCB2.35 KM
Sutton5385SUO2.79 KM

Nearby Listings

AddressPriceTypeScoreDistance
Salisbury Road, Carshalton, SM5 £ 1,000,000BUY7 / 100.00 KM
Salisbury Road, Carshalton £ 1,000,000BUY5 / 100.07 KM
Salisbury Court, Salisbury Road, Carshalton £ 360,000BUY7 / 100.08 KM
Salisbury Road, Carshalton £ 950,000BUY7 / 100.10 KM
Parker Close, Carshalton, SM5 £ 1,500,000BUY7 / 100.18 KM

Nearby Properties

AddressPriceDistance
30 Salisbury Road £ 648,0000.01 KM
60 Salisbury Road £ 413,0000.01 KM
2 Salisbury Road £ 360,0000.01 KM
32 Salisbury Road £ 210,0000.01 KM
62 Salisbury Road £ 900,0000.01 KM