AU
Willans Avenue, Rothwell, Leeds, West Yorkshire
By Auction House
£ 140,000
Reviews
3 out of 5 stars
Auction House says ..
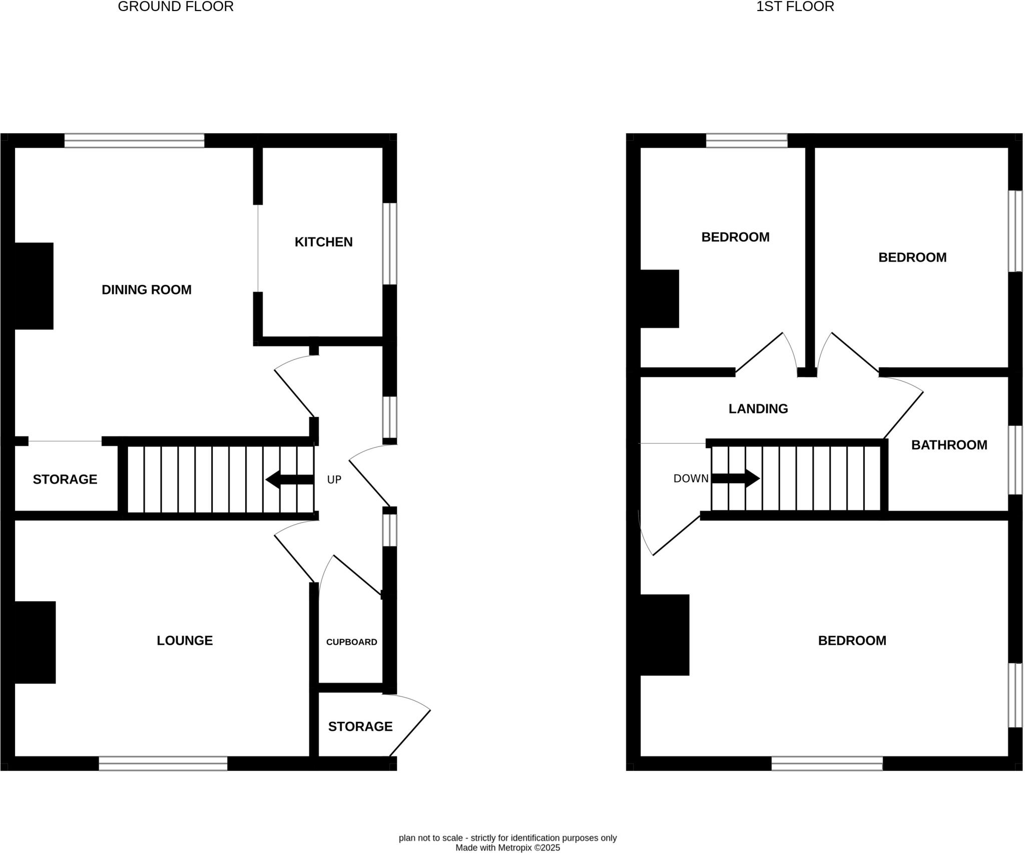
This three bedroom end terrace with off street parking, garage and garden is offered for sale via traditional auction. The property does require full renovation throughout, however would make a great project or addition to a rental portfolio. The property is well placed for daily trave...
Property Oracle says ..
Therefore, we give this property 6 / 10. *Disclaimer: This is our option and does constitute a recommendation or financial advice. Do your own research. *
- Price
- 9
- Condition
- 3
- Location
- 7
- Land
- 5
- Bedrooms
- 3
- Bathrooms
- 1
- Sqft (est)
- 973.00
The heatmap indicates the level of crime in the area. The color of the heatmap indicates the crime severity and recency.
Metrics Year-on-Year
- Average area value
- 488,600.00 £Decreased by 6.01 %
- Est sale value
- 612,017.00 £Increased by 9.01 %
- Average area rental value
- 1,814.00 £/moIncreased by 6.02 %
- Est letting value
- 1,946.00 £/moIncreased by 100.00 %
- Est rental Yield
- 4.46 %Increased by 12.91 %
- Crime Rate
- 2.00 %Unchanged by 0.00 %
from 519,839.00 £
from 561,421.00 £
from 1,711.00 £/mo
from 973.00 £/mo
from 3.95 %
from 2.00 %
Agent Activity
Auction House created the listing.
Nearby Schools
| Name | Type | Ofsted | Distance |
|---|---|---|---|
| Cockburn Haigh Road Academy | Academy Sponsor Led | 0.41 KM | |
| Rothwell Children'S Centre | Children's Centre | 0.63 KM | |
| Holy Trinity Church Of England Academy, Rothwell | Academy Sponsor Led | Good | 0.63 KM |
| Victoria Junior School | Community School | Good | 0.84 KM |
| Rothwell Primary School | Community School | Good | 1.20 KM |
Images
Nearby Streets
| Name | Average Price | Average Sqft | Distance |
|---|---|---|---|
| Richmond Close | £ 0 | 0 | 0.00 KM |
| Commercial Street | £ 0 | 0 | 0.00 KM |
| Kings Chase | £ 0 | 0 | 0.00 KM |
| Lay Garth | £ 687,500 | 0 | 0.00 KM |
| Springfield Street | £ 220,000 | 0 | 0.00 KM |
Nearby Transport
| Name | NLC | TLC | Distance |
|---|---|---|---|
| Woodlesford | 8578 | WDS | 4.31 KM |
| Outwood | 8309 | OUT | 5.60 KM |
| Cross Gates | 8473 | CRG | 6.31 KM |
| Leeds | 8487 | LDS | 8.49 KM |
| Wakefield Westgate | 8591 | WKF | 8.64 KM |
Nearby Listings
| Address | Price | Type | Score | Distance |
|---|---|---|---|---|
| Willans Avenue, Rothwell, Leeds, West Yorkshire | £ 140,000 | BUY | 6 / 10 | 0.00 KM |
| Willans Avenue, Rothwell, Leeds, West Yorkshire, LS26 | £ 290,000 | BUY | 7 / 10 | 0.06 KM |
| Willans Avenue, Leeds, LS26 | £ 270,000 | BUY | 6 / 10 | 0.06 KM |
| Willans Avenue, Rothwell, Leeds | £ 210,000 | BUY | 7 / 10 | 0.08 KM |
| High Ridge Park, Rothwell, Leeds, West Yorkshire, LS26 | £ 230,000 | BUY | 7 / 10 | 0.16 KM |
Nearby Properties
| Address | Price | Distance |
|---|---|---|
| 53 Willans Avenue | £ 139,995 | 0.01 KM |
| 87 Willans Avenue | £ 178,000 | 0.01 KM |
| 39 Willans Avenue | £ 154,000 | 0.01 KM |
| 25 Willans Avenue | £ 150,000 | 0.01 KM |
| 67 Willans Avenue | £ 157,000 | 0.01 KM |