Cavendish Residential says ..
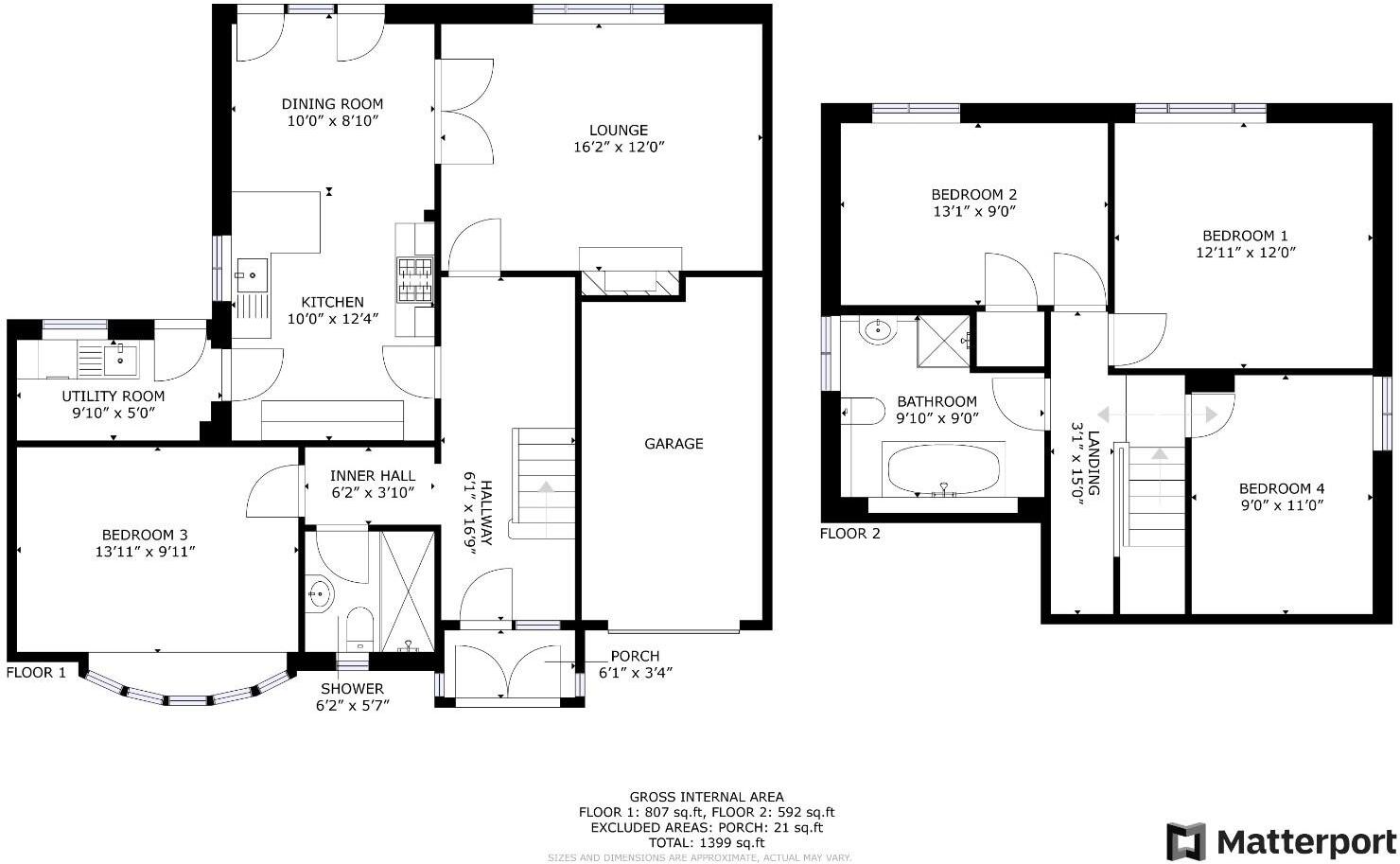
A MODERNISED AND REFURBISHED 4 BEDROOM DETACHED HOUSE WITH INTEGRAL GARAGE SET WITHIN LARGE PRIVATE GARDENS AT THIS VERY CONVENIENT AND POPULAR RESIDENTIAL AREA CLOSE TO THE TOWN CENTRE. An attractive home affording an enclosed porch, central hall, lounge, dining room, modern fitted kitc...
Property Oracle says ..
This property is a 4-bedroom detached house located in Ruthin, Denbighshire. It benefits from a good-sized garden, a garage, and is within a reasonable distance of several schools. The property appears to be well-maintained, with a modern kitchen and updated bathrooms. However, some aspects of the property’s interior decor may appear dated to some buyers. The list price is slightly below the average price for the area, which may make it attractive to buyers looking for value for money. However, the lack of information on the property’s square footage makes it difficult to accurately assess the price per square foot.
Therefore, we give this property 7 / 10. *Disclaimer: This is our option and does constitute a recommendation or financial advice. Do your own research. *
- Price
- 7
- Condition
- 8
- Location
- 7
- Land
- 7
- Bedrooms
- 4
- Bathrooms
- 1
- Sqft (est)
- 1,155.25
- Lot (est)
- 1,399.00
The heatmap indicates the level of crime in the area. The color of the heatmap indicates the crime severity and recency.
Metrics Year-on-Year
- Average area value
- 326,418.00 £Decreased by 0.78 %
- Est sale value
- 385,853.50 £Increased by 1.52 %
- Average area rental value
- 1,459.00 £/moIncreased by 29.46 %
- Est letting value
- 1,155.25 £/moUnchanged by 0.00 %
- Est rental Yield
- 5.36 %Increased by 30.41 %
- Crime Rate
- 22.00 %Unchanged by 0.00 %
Agent Activity
Cavendish Residential created the listing.
Nearby Schools
| Name | Type | Ofsted | Distance |
|---|---|---|---|
| Ysgol Pen Barras | Welsh Establishment | 0.25 KM | |
| Rhos Street C.P. School | Welsh Establishment | 0.35 KM | |
| Ruthin School | Welsh Establishment | 0.66 KM | |
| Ysgol Brynhyfryd | Welsh Establishment | 0.90 KM | |
| Borthyn V.C. Primary School | Welsh Establishment | 1.41 KM |
Images
Nearby Streets
| Name | Average Price | Average Sqft | Distance |
|---|---|---|---|
| Cwrt-Y-Crydd | £ 0 | 0 | 0.00 KM |
| Ffordd yr Ysgol | £ 0 | 0 | 0.00 KM |
| Tan-y-Castell | £ 0 | 0 | 0.00 KM |
| Lôn Brynhyfryd | £ 0 | 0 | 0.00 KM |
| Castle Street | £ 425,000 | 0 | 0.00 KM |
Nearby Listings
| Address | Price | Type | Score | Distance |
|---|---|---|---|---|
| Wern Fechan, Ruthin | £ 320,000 | BUY | 7 / 10 | 0.00 KM |
| Wern Fechan, Ruthin | £ 269,000 | BUY | 6 / 10 | 0.05 KM |
| Wern Fechan, Ruthin | £ 250,000 | BUY | 7 / 10 | 0.11 KM |
| Wern Fechan, Ruthin | £ 215,000 | BUY | 6 / 10 | 0.14 KM |
| Wern Fechan, Ruthin | £ 195,000 | BUY | 6 / 10 | 0.14 KM |
Nearby Properties
| Address | Price | Distance |
|---|---|---|
| Tyn-y-berllan | £ 220,000 | 0.05 KM |
| 18 Wern Fechan | £ 149,000 | 0.06 KM |
| 28 Wern Fechan | £ 280,000 | 0.06 KM |
| Bryn Awelon | £ 213,000 | 0.06 KM |
| Tracery | £ 200,000 | 0.06 KM |