99Home LTD says ..
Property Ref: 15560 We are pleased to present an exceptional Maisonette located at Boddington, Kingsway, GL2. This wonderful residence boasts …
Property Oracle says ..
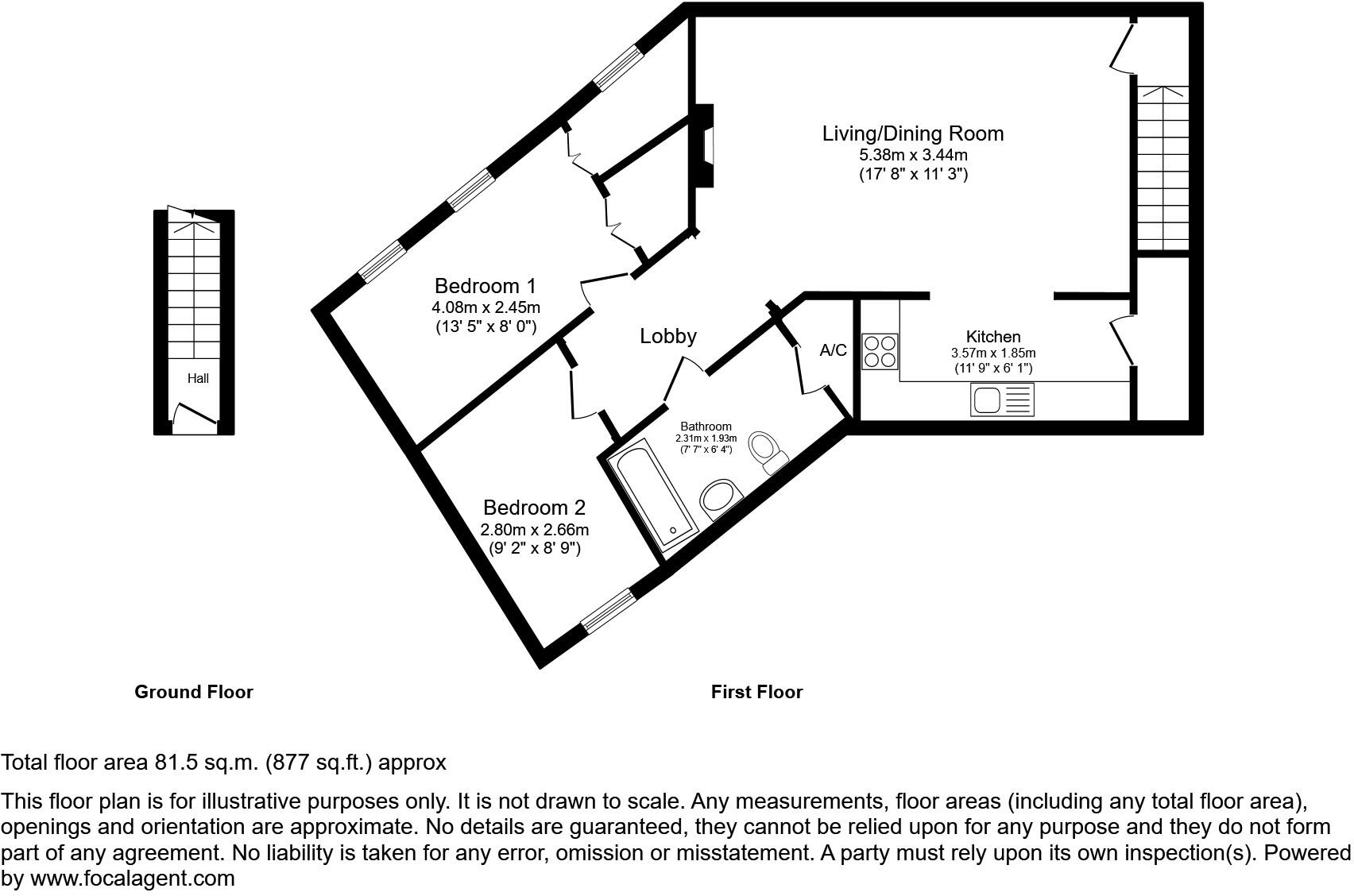
This two-bedroom maisonette in Kingsway, Gloucester, presents a good opportunity for first-time buyers or investors. The property appears to be in good condition, with modern interiors. The location offers convenient access to local amenities and transport links, although the area is still under development. The asking price of £80,000 represents excellent value for money, especially considering the size of the property and the average property prices in the surrounding area. While the property has limited land, the overall package makes it an attractive option.
Therefore, we give this property 6 / 10. *Disclaimer: This is our option and does constitute a recommendation or financial advice. Do your own research. *
- Price
- 9
- Condition
- 7
- Location
- 6
- Land
- 3
- Bedrooms
- 2
- Bathrooms
- 1
- Sqft (est)
- 877.26
The heatmap indicates the level of crime in the area. The color of the heatmap indicates the crime severity and recency.
Metrics Year-on-Year
- Average area value
- 230,000.00 £Decreased by 2.16 %
- Est sale value
- 287,741.28 £Increased by 45.13 %
- Average area rental value
- 922.00 £/moDecreased by 12.52 %
- Est letting value
- 877.26 £/moUnchanged by 0.00 %
- Est rental Yield
- 4.81 %Decreased by 10.59 %
- Crime Rate
- 15.00 %Unchanged by 0.00 %
Agent Activity
99Home LTD created the listing.
Nearby Schools
| Name | Type | Ofsted | Distance |
|---|---|---|---|
| Waterwells Primary Academy | Academy Sponsor Led | Requires improvement | 0.32 KM |
| Kingsway Primary School | Community School | Requires improvement | 0.54 KM |
| The Beacon Children'S Centre | Children's Centre | 0.80 KM | |
| Holmleigh Park High School | Academy Sponsor Led | 0.86 KM | |
| Harewood Junior School | Foundation School | Good | 0.86 KM |
Images
Nearby Streets
| Name | Average Price | Average Sqft | Distance |
|---|---|---|---|
| Locking Way | £ 0 | 0 | 0.00 KM |
| Dishforth Drive | £ 0 | 0 | 0.00 KM |
| Manston Way | £ 300,000 | 0 | 0.00 KM |
| Neatishead Road | £ 0 | 0 | 0.00 KM |
| Portreath Way | £ 0 | 0 | 0.00 KM |
Nearby Transport
| Name | NLC | TLC | Distance |
|---|---|---|---|
| Gloucester | 4760 | GCR | 5.63 KM |
| Stonehouse | 4770 | SHU | 8.56 KM |
| Stroud (Gloucs) | 4771 | STD | 9.76 KM |
Nearby Listings
| Address | Price | Type | Score | Distance |
|---|---|---|---|---|
| Boddington, Kingsway, GL2 | £ 80,000 | BUY | 6 / 10 | 0.00 KM |
| Boddington Drive Kingsway, Quedgeley, Gloucester, Gloucestershire, GL2 | £ 220,000 | BUY | Unknown | 0.03 KM |
| Boddington Drive Kingsway, Quedgeley, Gloucester, Gloucestershire, GL2 | £ 77,500 | BUY | Unknown | 0.04 KM |
| Waddington Way, Kingsway, GL2 | £ 300,000 | BUY | Unknown | 0.15 KM |
| Topcliffe Street Kingsway, Quedgeley, Gloucester, Gloucestershire, GL2 | £ 290,000 | BUY | 7 / 10 | 0.15 KM |
Nearby Properties
| Address | Price | Distance |
|---|---|---|
| 27 Boddington Drive Kingsway | £ 235,000 | 0.01 KM |
| 33 Boddington Drive Kingsway | £ 181,000 | 0.01 KM |
| 23 Boddington Drive Kingsway | £ 219,500 | 0.01 KM |
| 41 Boddington Drive Kingsway | £ 72,500 | 0.01 KM |
| 11 Boddington Drive Kingsway | £ 150,000 | 0.01 KM |