The Street, Charmouth, Dorset, DT6
FO

The Street, Charmouth, Dorset, DT6

By Fortnam Smith & Banwell

£ 365,000

Reviews

3 out of 5 stars

Fortnam Smith & Banwell says ..

A well-maintained terraced cottage dating back to the 1700’s situated at the lower end of the high street in Charmouth, within short walking distances of both the beach and village amenities.

Property Oracle says ..

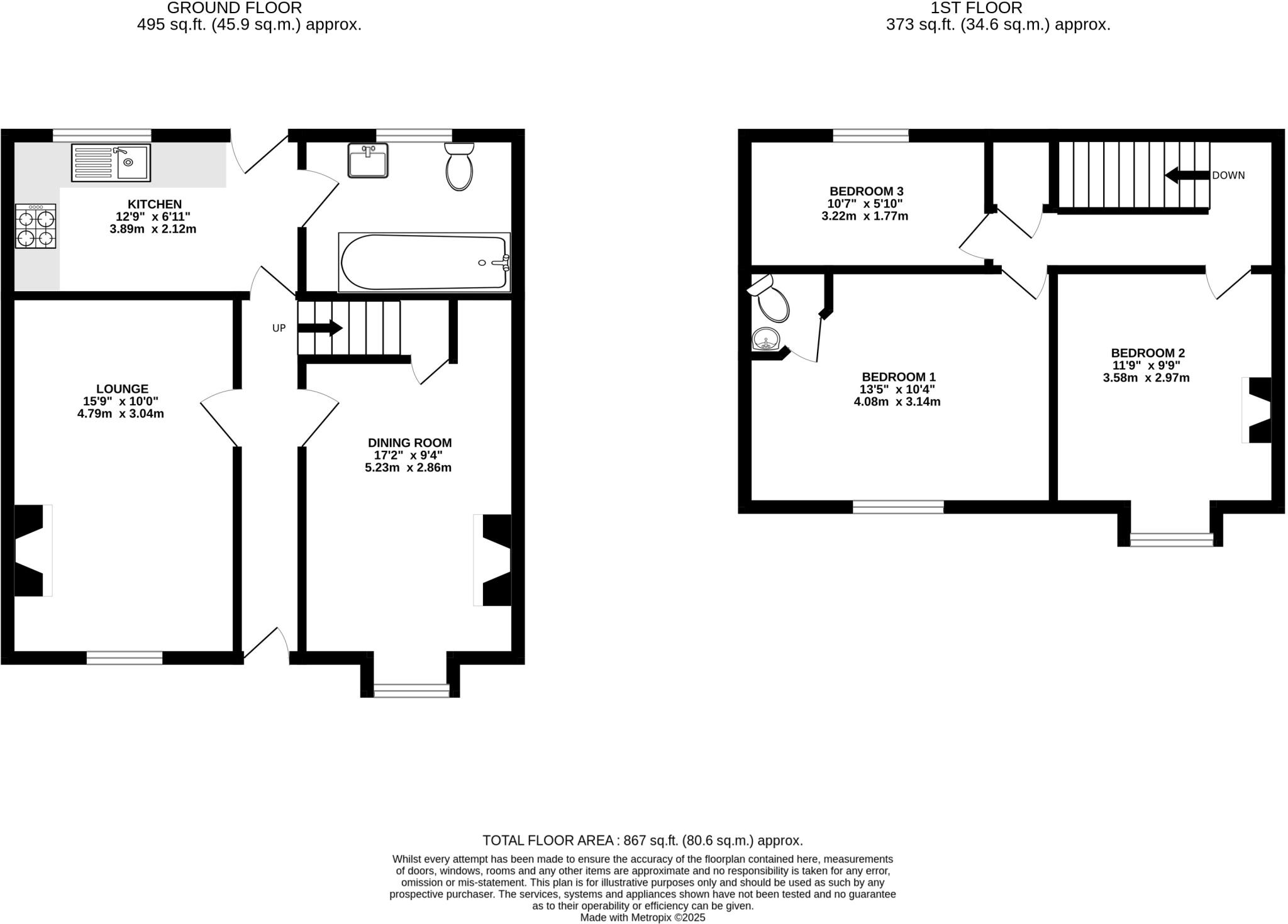
This is a three-bedroom terraced property located on The Street in Charmouth, Dorset. The property is listed with Fortnam Smith & Banwell. The house retains some traditional features, including exposed stone walls and wooden beams. The property is located 0.56 KM from Charmouth Primary School. The condition of the property is fair, with some areas needing modernisation. The property has a small garden. The asking price of £365,000 seems reasonable for the area and property type.

Therefore, we give this property 6 / 10. *Disclaimer: This is our option and does constitute a recommendation or financial advice. Do your own research. *

Price
7
Condition
6
Location
7
Land
5
Bedrooms
3
Bathrooms
1
Sqft (est)
720.21

The heatmap indicates the level of crime in the area. The color of the heatmap indicates the crime severity and recency.

Metrics Year-on-Year

Average area value
547,942.00 £
Decreased by 8.74 %
from 600,447.00 £
Est sale value
327,695.55 £
Decreased by 25.04 %
from 437,167.47 £
Average area rental value
1,256.00 £/mo
Increased by 35.78 %
from 925.00 £/mo
Est letting value
720.21 £/mo
from 0.00 £/mo
Est rental Yield
2.75 %
Increased by 48.65 %
from 1.85 %
Crime Rate
107.00 %
Unchanged by 0.00 %
from 107.00 %

Agent Activity

  • Fortnam Smith & Banwell created the listing.

Nearby Schools

NameTypeOfstedDistance
Charmouth Primary SchoolCommunity SchoolRequires improvement0.56 KM
Beaminster And Lyme Regis Sure Start Children'S CentreChildren's Centre4.05 KM
St Michael'S Church Of England Voluntary Aided Primary School, Lyme RegisVoluntary Aided SchoolRequires improvement4.05 KM
The Woodroffe SchoolFoundation SchoolOutstanding5.66 KM
Marshwood Cofe Primary AcademyAcademy ConverterGood6.37 KM

Images

Picture No. 19 Picture No. 17 Picture No. 02 Picture No. 03 Picture No. 16 Picture No. 14 Picture No. 15 Picture No. 04 Picture No. 05 Picture No. 06 Picture No. 07 Picture No. 09 Picture No. 18 Picture No. 08 Picture No. 13 Picture No. 12 Picture No. 10 Picture No. 11

Nearby Streets

NameAverage PriceAverage SqftDistance
Barney's Close £ 499,00000.00 KM
St Andrews Drive £ 525,00000.00 KM
Westover Hill £ 000.00 KM
Green Pit Knapp £ 000.00 KM
Long Lane £ 000.00 KM

Nearby Listings

AddressPriceTypeScoreDistance
The Street, Charmouth, Dorset, DT6 £ 365,000BUY6 / 100.00 KM
The Street, Charmouth, Bridport £ 700,000BUYUnknown0.03 KM
Barneys Close, Charmouth, Bridport £ 395,000BUY6 / 100.06 KM
The Street, Charmouth, Bridport, Dorset £ 330,000BUYUnknown0.06 KM
Georges Close, Charmouth, Bridport £ 550,000BUY6 / 100.07 KM

Nearby Properties

AddressPriceDistance
The Lilacs £ 455,0000.01 KM
Mintaka £ 492,5000.01 KM
Firlands House £ 642,0000.01 KM
4 Georges Close £ 330,0000.08 KM
8 Georges Close £ 360,0000.08 KM