Nove Property says ..
Nestled in the quiet but well positioned Village of Dalton, this exquisite semi-detached bungalow presents a rare confluence of comfort and sophistication.
Property Oracle says ..
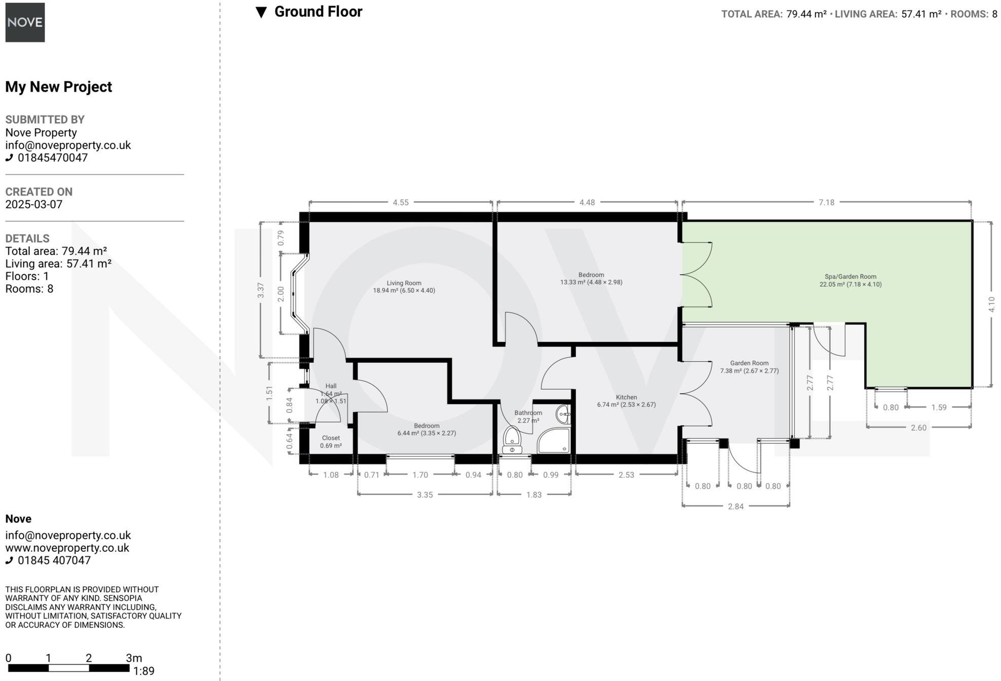
The property is a semi-detached bungalow located in Dalton, North Yorkshire. The asking price is £225,000. The property appears to be in good condition. The interior is well-maintained and presented, with modern fixtures and fittings in the kitchen and bathroom. The exterior is also well-maintained, with a neat garden and patio area. There is also a hot tub and several outbuildings. The property benefits from a conservatory and a good-sized garden. The location is reasonably good. It is situated in a quiet residential area, within a reasonable distance to local amenities and transport links. While the immediate vicinity may lack some amenities, the proximity to Thirsk (6.36 KM) provides access to a wider range of services. Several schools are within a reasonable distance, although their Ofsted ratings are not provided. Given the average price per square foot in the area is £278, and the lack of square footage information for this property, a direct comparison is impossible. However, considering the property’s condition, features (hot tub, conservatory, outbuildings), and location, the list price of £225,000 appears to be in line with or slightly below the average price for similar properties in the area, making it potentially good value. Further information on the property’s square footage would allow for a more precise price evaluation.
Therefore, we give this property 7 / 10. *Disclaimer: This is our option and does constitute a recommendation or financial advice. Do your own research. *
- Price
- 8
- Condition
- 8
- Location
- 7
- Land
- 7
- Bedrooms
- 2
- Bathrooms
- 1
- Sqft (est)
- 855.09
- Lot (est)
- 855.09
The heatmap indicates the level of crime in the area. The color of the heatmap indicates the crime severity and recency.
Metrics Year-on-Year
- Average area value
- 221,531.00 £Decreased by 31.97 %
- Est sale value
- 211,207.23 £Increased by 7.39 %
- Average area rental value
- 825.00 £/moDecreased by 14.68 %
- Est letting value
- 0.00 £/mo
- Est rental Yield
- 4.47 %Increased by 25.56 %
- Crime Rate
- 55.00 %Unchanged by 0.00 %
Agent Activity
Nove Property created the listing.
Nearby Schools
| Name | Type | Ofsted | Distance |
|---|---|---|---|
| Cundall Manor School | Other Independent School | 3.63 KM | |
| Keeble Gateway Academy | Free Schools | 4.42 KM | |
| Thirsk School & Sixth Form College | Community School | Good | 4.92 KM |
| Topcliffe Cofe Academy | Academy Converter | Good | 4.97 KM |
| Sowerby Primary Academy | Academy Converter | 5.19 KM |
Images
Nearby Streets
| Name | Average Price | Average Sqft | Distance |
|---|---|---|---|
| Manor Farm Lane | £ 400,000 | 0 | 0.00 KM |
Nearby Transport
| Name | NLC | TLC | Distance |
|---|---|---|---|
| Thirsk | 8191 | THI | 6.36 KM |
Nearby Listings
| Address | Price | Type | Score | Distance |
|---|---|---|---|---|
| Pit Ings Lane, Dalton, YO7 | £ 225,000 | BUY | 7 / 10 | 0.00 KM |
| Pit Ings Lane, Dalton, Thirsk | £ 235,000 | BUY | 6 / 10 | 0.02 KM |
| Pit Ings Lane, Dalton | £ 399,995 | BUY | 5 / 10 | 0.03 KM |
| Pit Ings Lane, Dalton, Thirsk | £ 400,000 | BUY | 7 / 10 | 0.03 KM |
| Pit Ings Lane, Dalton, Thirsk, YO7 | £ 225,000 | BUY | 7 / 10 | 0.11 KM |
Nearby Properties
| Address | Price | Distance |
|---|---|---|
| 9 Pit Ings Lane | £ 125,000 | 0.04 KM |
| 12 Pit Ings Lane | £ 147,500 | 0.04 KM |
| 11 Pit Ings Lane | £ 134,950 | 0.04 KM |
| 23 Pit Ings Lane | £ 90,000 | 0.04 KM |
| 41 Pit Ings Lane | £ 220,000 | 0.04 KM |