Brownberrie Lane, Leeds, LS18
By The Home Movement
£ 210,000
Reviews
4 out of 5 stars
The Home Movement says ..
*** OPEN DAY/PROPERTY LAUNCH - WEDNESDAY 7TH MAY - Call to arrange your time slot. A fantastic two bedroom retirement apartment nestled in the heart of Horsforth
Property Oracle says ..
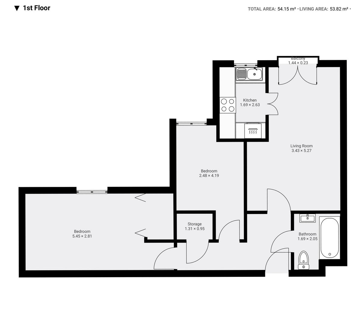
The property is a well-maintained 2-bedroom apartment located in the desirable Horsforth area of Leeds. It benefits from a convenient location near highly-rated schools and public transport links, and has access to communal gardens. While the apartment itself is smaller than the average property in the area, its good condition and competitive price per sqft suggest it may represent good value for money.
Therefore, we give this property 8 / 10. *Disclaimer: This is our option and does constitute a recommendation or financial advice. Do your own research. *
- Price
- 8
- Condition
- 9
- Location
- 9
- Land
- 7
- Bedrooms
- 2
- Bathrooms
- 1
- Sqft (est)
- 582.87
The heatmap indicates the level of crime in the area. The color of the heatmap indicates the crime severity and recency.
Metrics Year-on-Year
- Average area value
- 389,660.00 £Decreased by 2.80 %
- Est sale value
- 236,645.22 £Increased by 42.96 %
- Average area rental value
- 1,475.00 £/moIncreased by 31.70 %
- Est letting value
- 582.87 £/mo
- Est rental Yield
- 4.54 %Increased by 35.52 %
- Crime Rate
- 2.00 %Unchanged by 0.00 %
Agent Activity
The Home Movement created the listing.
Nearby Schools
| Name | Type | Ofsted | Distance |
|---|---|---|---|
| Westbrook Lane Primary School | Community School | Outstanding | 0.43 KM |
| Horsforth School | Academy Converter | Good | 0.69 KM |
| St Margaret'S Church Of England Voluntary Controlled Primary School | Voluntary Controlled School | Outstanding | 0.76 KM |
| Horsforth Children'S Centre | Children's Centre | 0.86 KM | |
| Broadgate Primary School | Community School | Good | 0.87 KM |
Images
Nearby Streets
| Name | Average Price | Average Sqft | Distance |
|---|---|---|---|
| St Margaret's Close | £ 450,000 | 0 | 0.00 KM |
| St Margaret's Drive | £ 400,000 | 0 | 0.00 KM |
| Ash Grove | £ 0 | 0 | 0.00 KM |
| St Margarets Road | £ 456,106 | 0 | 0.00 KM |
| North Road | £ 674,583 | 0 | 0.00 KM |
Nearby Transport
| Name | NLC | TLC | Distance |
|---|---|---|---|
| Horsforth | 8499 | HRS | 0.79 KM |
| Kirkstall Forge | 6544 | KLF | 3.10 KM |
| Bramley (West Yorkshire) | 8496 | BLE | 4.68 KM |
| Headingley | 8498 | HDY | 5.79 KM |
| New Pudsey | 8506 | NPD | 6.77 KM |
Nearby Listings
| Address | Price | Type | Score | Distance |
|---|---|---|---|---|
| 1 Stanhope Court, Brownberrie Lane, Horsforth, Leeds, West Yorkshire | £ 210,000 | BUY | 7 / 10 | 0.00 KM |
| Stanhope Court, Brownberrie Lane, Horsforth, Leeds | £ 150,000 | BUY | 6 / 10 | 0.00 KM |
| Brownberrie Lane, Leeds, LS18 | £ 210,000 | BUY | 8 / 10 | 0.00 KM |
| 40 Stanhope Court, Brownberrie Lane, Horsforth, Leeds, West Yorkshire | £ 99,950 | BUY | 6 / 10 | 0.02 KM |
| 32 Stanhope Court, Brownberrie Lane, Horsforth, Leeds, West Yorkshire | £ 140,000 | BUY | Unknown | 0.02 KM |
Nearby Properties
| Address | Price | Distance |
|---|---|---|
| 52 Brownberrie Lane | £ 373,000 | 0.07 KM |
| 26 Brownberrie Lane | £ 635,500 | 0.07 KM |
| 10 Brownberrie Lane | £ 355,000 | 0.07 KM |
| 40 Brownberrie Lane | £ 459,950 | 0.07 KM |
| 48 Brownberrie Lane | £ 305,000 | 0.07 KM |