19 Dewar Street, Dollar FK14 7EP
HA

19 Dewar Street, Dollar FK14 7EP

By Harper & Stone Limited

£ 550,000

Reviews

3 out of 5 stars

Harper & Stone Limited says ..

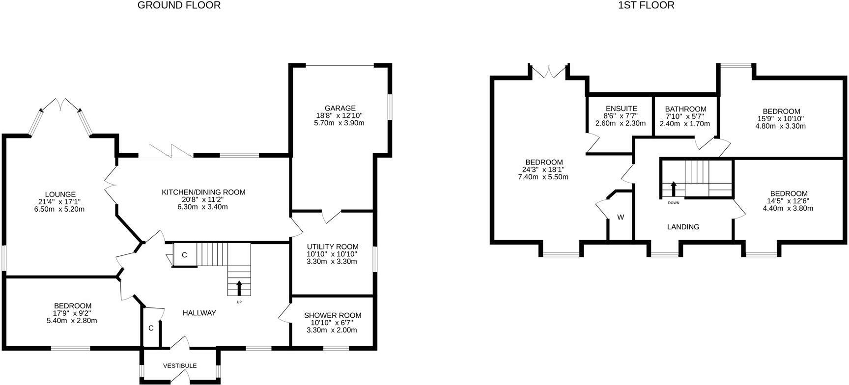
Welcome to 19 Dewar Street, Dollar which Harper & Stone are delighted to present to the open market. This stunning nearly new detached house is a gem waiting to be discovered. Boasting 2 reception rooms, 4 bedrooms, and 3 bathrooms, this property offers ample space for comfortable living. Situ...

Property Oracle says ..

This 4-bedroom, 3-bathroom detached house in Dollar, Clackmannanshire, is presented in excellent condition. The property’s interior showcases modern fixtures, light, spacious rooms, and a contemporary design aesthetic. The kitchen and bathrooms are particularly well-maintained. The exterior of the property is also impressive. While the size of the plot is not specified, the garden provides some outdoor space. The location in Dollar offers a desirable area for homebuyers, though more specific details about transportation links and amenities are needed. The property is listed at £550,000. Comparative data on price per square foot in the area is needed to make a conclusive determination about its value. Overall, this house represents a well-maintained and spacious home, though additional details are needed to solidify its score in terms of location and land size.

Therefore, we give this property 6 / 10. *Disclaimer: This is our option and does constitute a recommendation or financial advice. Do your own research. *

Price
7
Condition
8
Location
7
Land
4
Bedrooms
4
Bathrooms
3
Sqft (est)
1,751.72

The heatmap indicates the level of crime in the area. The color of the heatmap indicates the crime severity and recency.

Metrics Year-on-Year

Average area value
453,954.00 £
Increased by 9.80 %
from 413,435.00 £
Est sale value
614,853.72 £
Increased by 39.84 %
from 439,681.72 £
Average area rental value
1,181.00 £/mo
Increased by 9.86 %
from 1,075.00 £/mo
Est letting value
0.00 £/mo
from 0.00 £/mo
Est rental Yield
3.12 %
Unchanged by 0.00 %
from 3.12 %
Crime Rate
0.00 %
from 0.00 %

Agent Activity

  • Harper & Stone Limited created the listing.

Images

19 Dewar External.jpg 15.jpg 09.jpg 14.jpg 13.jpg 10.jpg 16.jpg 19.jpg 21.jpg 07.jpg 04.jpg 29.jpg 26.jpg 24.jpg 001c.jpg 18.jpg 20.jpg 01.jpg 28.jpg 31.jpg 32.jpg 36.jpg 23.jpg 35.jpg 001i.jpg 19 dewar external 2.jpg 001d.jpg 001g.jpg 001h.jpg

Nearby Streets

NameAverage PriceAverage SqftDistance
Cairnpark Street £ 000.00 KM
Park Place £ 000.00 KM
Sorley's Brae £ 000.00 KM
Muckhart Road £ 000.00 KM
Lower Mains £ 264,95000.00 KM

Nearby Listings

AddressPriceTypeScoreDistance
Wardlaw House, 11 Station Road, Dollar, Clackmannanshire £ 835,000BUY6 / 100.09 KM
14 Station Road, Dollar FK14 7EJ £ 110,000BUY7 / 100.10 KM
51 Bridge Street, Dollar FK14 7DG £ 350,000BUY7 / 100.12 KM
19 Station Road, Dollar FK14 7EL £ 280,000BUY5 / 100.13 KM
14 Dewar Street, Dollar FK14 7EP £ 275,000BUY6 / 100.18 KM