Machin Lane says ..
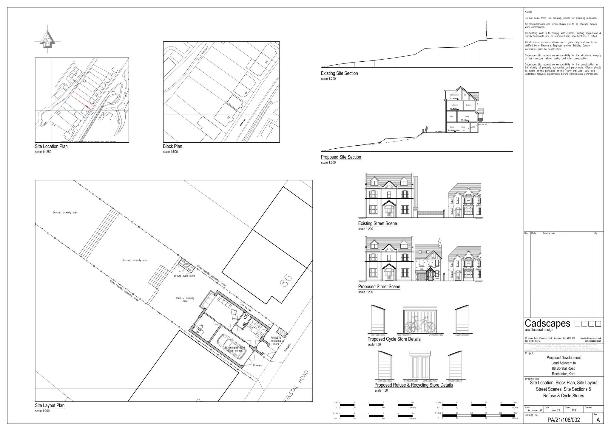
BUILDING PLOT. Exciting development opportunity in a sought after residential location with views across the River Medway Valley. There is planning permission for a new four storey four bedroomed detached house. The design of the house has an open plan kitchen/dining/living space on the lower gro...
Property Oracle says ..
This property is a PLOT located in Rochester, Kent. The location benefits from being within reasonable distance of several Southeastern train stations, including Rochester, Strood, Chatham, Cuxton, and Halling. There are also a number of schools nearby, such as St William Of Perth Roman Catholic Primary School and St Andrew’s School, both within a kilometer of the property. The property itself appears to be a period property in need of some renovation. The garden is overgrown but present. While the list price is below the average price for the area, the lack of information regarding the plot size and the need for renovations make it difficult to definitively assess the value for money.
Therefore, we give this property 4 / 10. *Disclaimer: This is our option and does constitute a recommendation or financial advice. Do your own research. *
- Price
- 5
- Condition
- 4
- Location
- 7
- Land
- 3
- Bedrooms
- 4
- Bathrooms
- 2
- Sqft (est)
- 1,931.05
The heatmap indicates the level of crime in the area. The color of the heatmap indicates the crime severity and recency.
Metrics Year-on-Year
- Average area value
- 265,071.00 £Decreased by 34.02 %
- Est sale value
- 820,696.25 £Increased by 48.60 %
- Average area rental value
- 1,344.00 £/moDecreased by 2.33 %
- Est letting value
- 3,862.10 £/mo
- Est rental Yield
- 6.08 %Increased by 47.93 %
- Crime Rate
- 0.00 %
Agent Activity
Machin Lane created the listing.
Nearby Schools
| Name | Type | Ofsted | Distance |
|---|---|---|---|
| St William Of Perth Roman Catholic Primary School | Voluntary Aided School | Good | 0.75 KM |
| St Andrew'S School (Rochester) | Other Independent School | 0.96 KM | |
| Sir Joseph Williamson'S Mathematical School | Academy Converter | 1.09 KM | |
| The Rochester Grammar School | Academy Converter | 1.15 KM | |
| St Peter'S Infant School | Community School | Good | 1.24 KM |
Images
Nearby Streets
| Name | Average Price | Average Sqft | Distance |
|---|---|---|---|
| Isaac Blake Place | £ 0 | 0 | 0.00 KM |
| St. Margaret's Street | £ 740,000 | 0 | 0.00 KM |
| Hooper's Place | £ 0 | 0 | 0.00 KM |
| Frobisher Gardens | £ 0 | 0 | 0.00 KM |
| Deanery Gate | £ 0 | 0 | 0.00 KM |
Nearby Transport
| Name | NLC | TLC | Distance |
|---|---|---|---|
| Rochester | 5203 | RTR | 2.03 KM |
| Strood (Kent) | 5191 | SOO | 2.15 KM |
| Chatham | 5199 | CTM | 3.08 KM |
| Cuxton | 5201 | CUX | 3.53 KM |
| Halling | 5173 | HAI | 6.09 KM |
Nearby Listings
| Address | Price | Type | Score | Distance |
|---|---|---|---|---|
| Borstal Road, Rochester, ME1 | £ 775,000 | BUY | 6 / 10 | 0.08 KM |
| Harriet Drive, ROCHESTER, Kent, ME1 | £ 490,000 | BUY | 7 / 10 | 0.12 KM |
| Borstal Road, Rochester, ME1 | £ 625,000 | BUY | 6 / 10 | 0.12 KM |
| Fennel Close, Rochester, Kent, ME1 | £ 475,000 | BUY | 6 / 10 | 0.18 KM |
| Fennel Close, Rochester | £ 220,000 | BUY | 5 / 10 | 0.19 KM |
Nearby Properties
| Address | Price | Distance |
|---|---|---|
| 80 Borstal Road | £ 635,000 | 0.01 KM |
| 74 Borstal Road | £ 470,000 | 0.01 KM |
| 96 Borstal Road | £ 640,000 | 0.01 KM |
| 110a Borstal Road | £ 312,000 | 0.01 KM |
| 90 Borstal Road | £ 1,250,000 | 0.01 KM |