AL
Dinton Road
By All in the postcode...SW19.com
£ 1,800
All in the postcode...SW19.com says ..
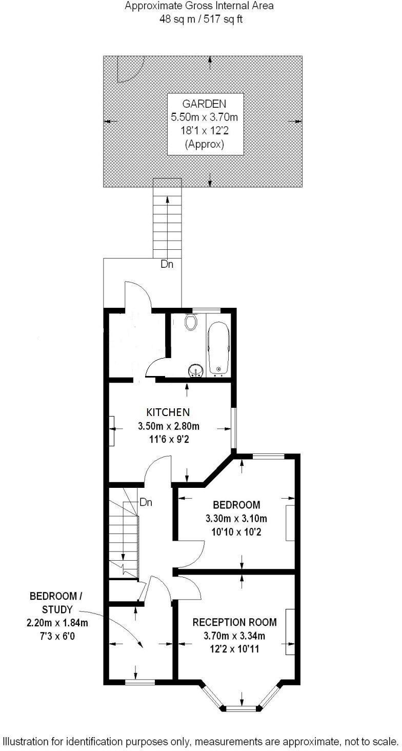
A beautifully modernised two bedroom first floor garden flat situated on this popular road in Colliers Wood. The property consists of two bedrooms, a lounge, a modern bathroom and an eat in kitchen with stairs leading down to a private decked, southerly facing rear garden. Available 2nd August ...
- Bedrooms
- 2
- Bathrooms
- 1
The heatmap indicates the level of crime in the area. The color of the heatmap indicates the crime severity and recency.
Metrics Year-on-Year
- Average area value
- 578,333.00 £Increased by 10.22 %
- Average area rental value
- 2,070.00 £/moIncreased by 12.32 %
- Est rental Yield
- 4.30 %Increased by 2.14 %
- Crime Rate
- 4.00 %Unchanged by 0.00 %
from 524,724.00 £
from 1,843.00 £/mo
from 4.21 %
from 4.00 %
Agent Activity
All in the postcode...SW19.com created the listing.
Nearby Schools
| Name | Type | Ofsted | Distance |
|---|---|---|---|
| St George'S Hospital Medical School | Higher Education Institutions | 0.58 KM | |
| Singlegate Primary School | Community School | Outstanding | 0.60 KM |
| Garfield Primary School | Community School | Good | 0.76 KM |
| All Saints' Cofe Primary School | Voluntary Aided School | Good | 0.77 KM |
| Smallwood Primary School And Children'S Centre | Children's Centre | 0.93 KM |
Images
Nearby Streets
| Name | Average Price | Average Sqft | Distance |
|---|---|---|---|
| Douglas Court | £ 0 | 0 | 0.00 KM |
| Kiln Mews | £ 0 | 0 | 0.00 KM |
| Holmbury Court | £ 0 | 0 | 0.00 KM |
| East Road | £ 791,667 | 0 | 0.00 KM |
| Breakspear Gardens | £ 0 | 0 | 0.00 KM |
Nearby Transport
| Name | NLC | TLC | Distance |
|---|---|---|---|
| Haydons Road | 5289 | HYR | 1.28 KM |
| Tooting | 5389 | TOO | 1.83 KM |
| Earlsfield | 5584 | EAD | 2.44 KM |
| Wandsworth Common | 5395 | WSW | 3.03 KM |
| Mitcham Eastfields | 5069 | MTC | 3.04 KM |
Nearby Listings
| Address | Price | Type | Score | Distance |
|---|---|---|---|---|
| Dinton Road | £ 1,800 | RENT | Unknown | 0.00 KM |
| Boundary Road, Colliers Wood | £ 2,900 | RENT | Unknown | 0.02 KM |
| Dinton Road, Wimbledon | £ 1,850 | RENT | Unknown | 0.04 KM |
| Dinton Road, Colliers Wood | £ 1,850 | RENT | Unknown | 0.04 KM |
| Boundary Road, SW19 | £ 3,600 | RENT | Unknown | 0.05 KM |
Nearby Properties
| Address | Price | Distance |
|---|---|---|
| 24 Dinton Road | £ 370,000 | 0.06 KM |
| 54 Dinton Road | £ 209,000 | 0.06 KM |
| 32 Dinton Road | £ 208,000 | 0.06 KM |
| 58 Dinton Road | £ 59,950 | 0.06 KM |
| 26 Dinton Road | £ 390,000 | 0.06 KM |