GA
Unique development opportunity in 0.35 acre at far end of Sadlers Wells
By Gascoigne Halman
£ 500,000
Reviews
3 out of 5 stars
Gascoigne Halman says ..
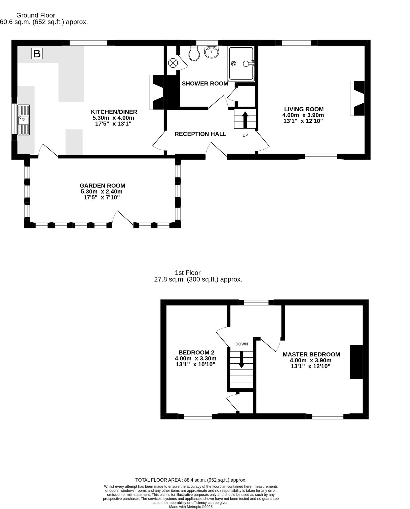
An original Peckforton estate cottage set in a plot of 0.35 acre at the far end of Sadlers Wells in Bunbury, offering outstanding potential to renovate or replace, subject to relevant planning consent.
Property Oracle says ..
Therefore, we give this property 6 / 10. *Disclaimer: This is our option and does constitute a recommendation or financial advice. Do your own research. *
- Price
- 4
- Condition
- 3
- Location
- 8
- Land
- 9
- Bedrooms
- 2
- Bathrooms
- 1
- Sqft (est)
- 843.03
The heatmap indicates the level of crime in the area. The color of the heatmap indicates the crime severity and recency.
Metrics Year-on-Year
- Average area value
- 486,321.00 £Decreased by 11.71 %
- Est sale value
- 305,176.86 £Decreased by 2.95 %
- Average area rental value
- 1,340.00 £/moDecreased by 8.91 %
- Est letting value
- 0.00 £/mo
- Est rental Yield
- 3.31 %Increased by 3.44 %
- Crime Rate
- 0.00 %
from 550,805.00 £
from 314,450.19 £
from 1,471.00 £/mo
from 0.00 £/mo
from 3.20 %
from 0.00 %
Agent Activity
Gascoigne Halman created the listing.
Nearby Schools
| Name | Type | Ofsted | Distance |
|---|---|---|---|
| Bunbury Aldersey Cofe Primary School | Academy Converter | Good | 0.28 KM |
| Tarporley High School And Sixth Form College | Academy Converter | Outstanding | 4.27 KM |
| Tarporley Cofe Primary School | Voluntary Controlled School | Good | 4.74 KM |
| Eaton Primary School | Academy Sponsor Led | 6.09 KM | |
| Utkinton St Paul'S Cofe Primary School | Academy Converter | 7.93 KM |
Images
Nearby Streets
| Name | Average Price | Average Sqft | Distance |
|---|---|---|---|
| The Hawthorns | £ 625,000 | 0 | 0.00 KM |
| St. Boniface Road | £ 850,000 | 0 | 0.00 KM |
| Spurstow FP 3 | £ 320,000 | 0 | 0.00 KM |
| Grange Close | £ 0 | 0 | 0.00 KM |
| Mill Lane | £ 0 | 0 | 0.00 KM |
Nearby Listings
| Address | Price | Type | Score | Distance |
|---|---|---|---|---|
| Unique development opportunity in 0.35 acre at far end of Sadlers Wells | £ 500,000 | BUY | 6 / 10 | 0.00 KM |
| Bunbury, Tarporley | £ 550,000 | BUY | Unknown | 0.27 KM |
| Sadlers Wells, CW6 | £ 600,000 | BUY | Unknown | 0.32 KM |
| School Lane, CW6 | £ 350,000 | BUY | 6 / 10 | 0.33 KM |
| Whitchurch Road, Bunbury Heath, Tarporley, Cheshire, CW6 | £ 2,000,000 | BUY | Unknown | 0.33 KM |
Nearby Properties
| Address | Price | Distance |
|---|---|---|
| 12 The Highlands | £ 250,000 | 0.28 KM |
| 17 The Highlands | £ 249,950 | 0.28 KM |
| 18 The Highlands | £ 235,000 | 0.28 KM |
| 26 The Highlands | £ 248,600 | 0.28 KM |
| 28 The Highlands | £ 269,950 | 0.28 KM |