Frost Estate Agents says ..
Stunning Newly Renovated Detached Home in Elevated Position – Just 5 Minutes walk to Purley Station- Significant Exterior Landscaping To Be Completed in The Next Four Weeks. Set in an elevated position in an ultra-convenient location, this beautifully modernised three-bedroom detached ho...
Property Oracle says ..
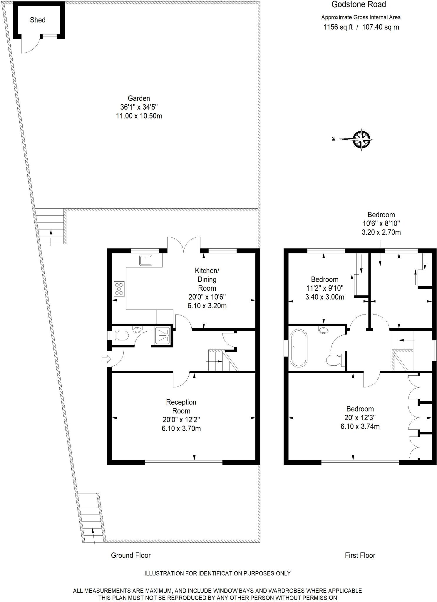
The property is a detached house located on Godstone Road in Purley, Croydon. It has 3 bedrooms, 2 bathrooms, and a garden. The property appears to be in good condition, with modern fixtures and fittings. The location is convenient, with several schools and transportation links nearby. The price seems reasonable compared to the average price in the area.
Therefore, we give this property 7 / 10. *Disclaimer: This is our option and does constitute a recommendation or financial advice. Do your own research. *
- Price
- 8
- Condition
- 8
- Location
- 8
- Land
- 7
- Bedrooms
- 3
- Bathrooms
- 2
- Sqft (est)
- 1,156.04
- Lot (est)
- 1,243.23
The heatmap indicates the level of crime in the area. The color of the heatmap indicates the crime severity and recency.
Metrics Year-on-Year
- Average area value
- 616,068.00 £Decreased by 0.97 %
- Est sale value
- 679,751.52 £Increased by 27.00 %
- Average area rental value
- 1,898.00 £/moDecreased by 5.95 %
- Est letting value
- 1,156.04 £/moUnchanged by 0.00 %
- Est rental Yield
- 3.70 %Decreased by 4.88 %
- Crime Rate
- 12.00 %Unchanged by 0.00 %
Agent Activity
Frost Estate Agents created the listing.
Nearby Schools
| Name | Type | Ofsted | Distance |
|---|---|---|---|
| Purley Nursery School | Local Authority Nursery School | Outstanding | 0.94 KM |
| Christ Church Cofe Primary School (Purley) | Voluntary Aided School | Good | 1.03 KM |
| St Nicholas School | Community Special School | Good | 1.16 KM |
| Harris Primary Academy Kenley | Academy Sponsor Led | Outstanding | 1.20 KM |
| Beaumont Primary School | Community School | Outstanding | 1.23 KM |
Images
Nearby Streets
| Name | Average Price | Average Sqft | Distance |
|---|---|---|---|
| Pheasant Close | £ 256,667 | 0 | 0.00 KM |
| Gables Court | £ 130,000 | 0 | 0.00 KM |
| Hamilton Close | £ 950,000 | 0 | 0.00 KM |
| Foxley Hall | £ 0 | 0 | 0.00 KM |
| Warren Road | £ 235,000 | 0 | 0.00 KM |
Nearby Transport
| Name | NLC | TLC | Distance |
|---|---|---|---|
| Purley | 5379 | PUR | 0.56 KM |
| Riddlesdown | 5432 | RDD | 1.32 KM |
| Reedham (London) | 5431 | RHM | 1.36 KM |
| Kenley | 5419 | KLY | 1.50 KM |
| Purley Oaks | 5430 | PUO | 2.05 KM |
Nearby Listings
| Address | Price | Type | Score | Distance |
|---|---|---|---|---|
| Godstone Road, Purley | £ 585,000 | BUY | 7 / 10 | 0.00 KM |
| Sunnydene Road, Purley | £ 300,000 | BUY | Unknown | 0.06 KM |
| Downs Court Road, Purley, Surrey | £ 275,000 | BUY | 5 / 10 | 0.06 KM |
| Godstone Mount, Downs Court Road, Purley, CR8 | £ 235,000 | BUY | 5 / 10 | 0.07 KM |
| Sunnydene Road, Purley | £ 465,000 | BUY | 7 / 10 | 0.09 KM |
Nearby Properties
| Address | Price | Distance |
|---|---|---|
| 27 Downs Court Road | £ 277,400 | 0.10 KM |
| 5 Downs Court Road | £ 265,000 | 0.10 KM |
| 29 Downs Court Road | £ 455,000 | 0.10 KM |
| 15 Downs Court Road | £ 550,000 | 0.10 KM |
| 13b - 13c Downs Court Road | £ 165,500 | 0.10 KM |