Gillcroft, Tadcaster Road
Churchills Estate Agents logo

Gillcroft, Tadcaster Road

By Churchills Estate Agents

£ 950,000

Reviews

2 out of 5 stars

Churchills Estate Agents says ..

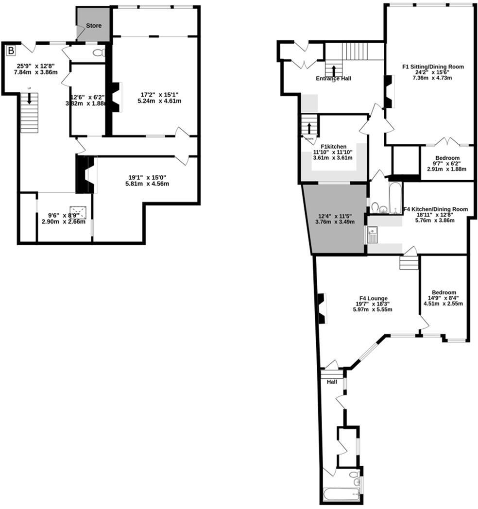
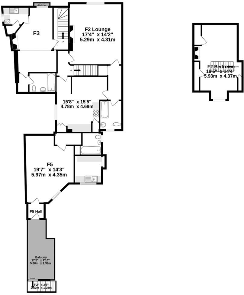
Overlooking The Knavesmire, Gillcroft is a substantial period property on York's prestigious Tadcaster Road. We believe this to be a rare opportunity to create a sizeable home close to the historic city walls, racecourse and railway station. It measures over 4000 square feet including a ...

Property Oracle says ..

This is a large, period semi-detached property located on Tadcaster Road in York. The property has 6 bedrooms and 4 bathrooms. The property is in need of renovation, but has a good sized garden and a roof terrace. The property is located close to local amenities and transport links. The property is listed for £950,000, which seems high given the condition of the property.

Therefore, we give this property 5 / 10. *Disclaimer: This is our option and does constitute a recommendation or financial advice. Do your own research. *

Price
5
Condition
4
Location
7
Land
7
Bedrooms
6
Bathrooms
4

The heatmap indicates the level of crime in the area. The color of the heatmap indicates the crime severity and recency.

Metrics Year-on-Year

Average area value
432,000.00 £
Increased by 20.39 %
from 358,842.00 £
Average area rental value
1,319.00 £/mo
Decreased by 2.44 %
from 1,352.00 £/mo
Est rental Yield
3.66 %
Decreased by 19.03 %
from 4.52 %
Crime Rate
0.00 %
from 0.00 %

Agent Activity

  • Churchills Estate Agents created the listing.

Nearby Schools

NameTypeOfstedDistance
Dringhouses Primary SchoolCommunity SchoolGood0.80 KM
Our Lady Queen Of Martyrs Catholic Primary School - A Catholic Voluntary AcademyAcademy Converter1.02 KM
The Mount School (York)Other Independent School1.16 KM
St Paul'S Nursery SchoolLocal Authority Nursery SchoolGood1.32 KM
St Paul'S Church Of England Voluntary Controlled Primary SchoolVoluntary Controlled SchoolGood1.33 KM

Images

078_DSC_7137.jpg DJI_0214.jpg 010_DSC_6901.jpg IMG_0777.JPG 002_DSC_6880a.jpg 008_DSC_6893.jpg 012_DSC_6904a.jpg 014_DSC_6908a.jpg 028_DSC_6943.jpg 034_DSC_6958.jpg 053_DSC_7022.jpg 055_DSC_7027.jpg 051_DSC_7002.jpg 073_DSC_7112.jpg 070_DSC_7103.jpg DJI_0217.jpg 022_DSC_6928.jpg 030_DSC_6947.jpg 038_DSC_6967a.jpg 063_DSC_7067.jpg 054_DSC_7017.jpg 074_DSC_7121-2.jpg 062_DSC_7047.jpg 066_DSC_7081.jpg DJI_0232.jpg DJI_0238.jpg DJI_0239.jpg Front views.jpg Garden photo 1.jpg Rear of property.jpg Hallway and stairs - a.jpg 020_DSC_6923a.jpg 2 304a Tadcaster Road 3.jpg 024_DSC_6935.jpg 018_DSC_6921a.jpg 032_DSC_6956.jpg 040_DSC_6972a.jpg 036_DSC_6963a.jpg 052_DSC_7013.jpg 064_DSC_7062.jpg 057_DSC_7007.jpg 060_DSC_7057.jpg

Nearby Streets

NameAverage PriceAverage SqftDistance
Knavesmire Road £ 350,00000.00 KM
Lawson Road £ 000.00 KM
Barrett Avenue £ 000.00 KM
Chaseside Court £ 275,00000.00 KM
Moorlea Avenue £ 000.00 KM

Nearby Transport

NameNLCTLCDistance
York8263YRK1.96 KM
Poppleton8254POP6.12 KM

Nearby Listings

AddressPriceTypeScoreDistance
Gillcroft, Tadcaster Road £ 950,000BUY5 / 100.00 KM
The Montague, Tadcaster Road, York £ 625,000BUYUnknown0.10 KM
Tadcaster Road, York £ 4,000,000BUY8 / 100.17 KM
Tadcaster Road, York, North Yorkshire, YO24 £ 1,995,000BUY8 / 100.36 KM
Tadcaster Road, Dringhouses, York, YO24 £ 650,000BUY7 / 100.36 KM

Nearby Properties

AddressPriceDistance
314 Tadcaster Road £ 492,0000.12 KM
318 Tadcaster Road £ 725,0000.12 KM
14 Chalfonts £ 345,0000.17 KM
18 Chalfonts £ 280,0000.17 KM
13 Chalfonts £ 265,0000.17 KM