CH
Hallfield Estate, London, W2, W2
By Chancellors
£ 625,000
Reviews
2 out of 5 stars
Chancellors says ..
The Hallfield Estate, designed by Berthold Lubetkin and Tecton, has been awarded Grade II listed status as a result of its attractive post war design and communal green open spaces, making this an ideal first time buy or rental investment.
Property Oracle says ..
Therefore, we give this property 5 / 10. *Disclaimer: This is our option and does constitute a recommendation or financial advice. Do your own research. *
- Price
- 8
- Condition
- 5
- Location
- 8
- Land
- 1
- Bedrooms
- 3
- Bathrooms
- 2
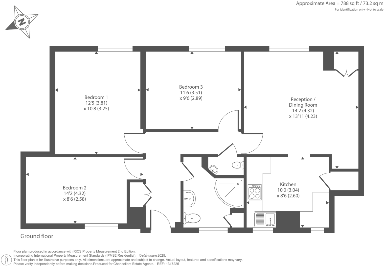
- Sqft (est)
- 788.00
The heatmap indicates the level of crime in the area. The color of the heatmap indicates the crime severity and recency.
Metrics Year-on-Year
- Average area value
- 2,275,412.00 £Decreased by 6.74 %
- Est sale value
- 1,961,332.00 £Increased by 9.26 %
- Average area rental value
- 2,983.00 £/moIncreased by 5.00 %
- Est letting value
- 2,364.00 £/moIncreased by 50.00 %
- Est rental Yield
- 1.57 %Increased by 12.14 %
- Crime Rate
- 7.00 %Unchanged by 0.00 %
from 2,439,916.00 £
from 1,795,064.00 £
from 2,841.00 £/mo
from 1,576.00 £/mo
from 1.40 %
from 7.00 %
Agent Activity
Chancellors created the listing.
Nearby Schools
| Name | Type | Ofsted | Distance |
|---|---|---|---|
| St James & St John Church Of England Primary School | Voluntary Aided School | Good | 0.35 KM |
| Hallfield Primary School | Community School | Good | 0.50 KM |
| Marylebone Boys' School | Free Schools | Good | 0.71 KM |
| Paddington Green Children'S Centre | Children's Centre Linked Site | 0.89 KM | |
| Hospital Home And Education Units Co St Mary'S Hospitial Tuition Unit | Miscellaneous | 0.89 KM |
Images
Nearby Streets
| Name | Average Price | Average Sqft | Distance |
|---|---|---|---|
| Chilworth Street | £ 0 | 0 | 0.00 KM |
| Westbourne Terrace Mews | £ 0 | 0 | 0.00 KM |
| Westbourne Bridge | £ 0 | 0 | 0.00 KM |
| Bishop's Bridge | £ 0 | 0 | 0.00 KM |
| Porchester Walk | £ 0 | 0 | 0.00 KM |
Nearby Transport
| Name | NLC | TLC | Distance |
|---|---|---|---|
| Paddington | 3087 | PAD | 0.65 KM |
| Marylebone | 1475 | MYB | 2.27 KM |
| Kilburn High Road | 1415 | KBN | 2.73 KM |
| South Hampstead | 1451 | SOH | 2.96 KM |
| Queens Park (London) | 1419 | QPW | 3.30 KM |
Nearby Listings
| Address | Price | Type | Score | Distance |
|---|---|---|---|---|
| Hallfield Estate, London, W2, W2 | £ 625,000 | BUY | 5 / 10 | 0.00 KM |
| Cleveland Square, Bayswater, W2 | £ 1,100,000 | BUY | 8 / 10 | 0.03 KM |
| Cleveland Square, Bayswater, London, W2 | £ 1,420,000 | BUY | 8 / 10 | 0.05 KM |
| Gloucester Mews West, London, W2 | £ 2,750,000 | BUY | 7 / 10 | 0.06 KM |
| Cleveland Square, London, W2 | £ 1,750,000 | BUY | 7 / 10 | 0.06 KM |
Nearby Properties
| Address | Price | Distance |
|---|---|---|
| 13 Gloucester Mews West | £ 850,000 | 0.04 KM |
| 98 Gloucester Mews West | £ 625,000 | 0.04 KM |
| 85 Gloucester Mews West | £ 490,000 | 0.04 KM |
| 92 Gloucester Mews West | £ 620,000 | 0.04 KM |
| 12 Gloucester Mews West | £ 1,060,000 | 0.04 KM |