Southcote Lodge, Reading
ST

Southcote Lodge, Reading

By Stratton & King Ltd

£ 115,000

Reviews

3 out of 5 stars

Stratton & King Ltd says ..

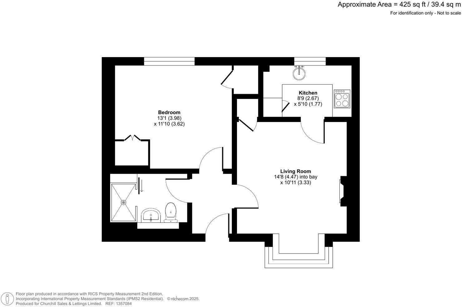
DRAFT PARTICULARS - Awaiting verification from the seller **ONE BEDROOM GROUND FLOOR RETIREMENT APARTMENT** Situated in the fantastic development of Southcote Lodge is this delightful one bedroom apartment which is accessed via the stunning communal gardens. The property is also...

Property Oracle says ..

This is a one-bedroom retirement property in Southcote Lodge, Reading. It features communal gardens and appears to be in generally good condition, although perhaps a little dated. The location offers proximity to schools and transportation. The asking price of £115,000 seems reasonable for the size and type of property, especially when compared to average property prices in the wider area.

Therefore, we give this property 7 / 10. *Disclaimer: This is our option and does constitute a recommendation or financial advice. Do your own research. *

Price
8
Condition
7
Location
7
Land
6
Bedrooms
1
Bathrooms
1
Sqft (est)
29.83

The heatmap indicates the level of crime in the area. The color of the heatmap indicates the crime severity and recency.

Metrics Year-on-Year

Average area value
543,333.00 £
Increased by 36.87 %
from 396,972.00 £
Est sale value
25,504.65 £
Increased by 97.46 %
from 12,916.39 £
Average area rental value
1,579.00 £/mo
Decreased by 11.74 %
from 1,789.00 £/mo
Est letting value
59.66 £/mo
Increased by 100.00 %
from 29.83 £/mo
Est rental Yield
3.49 %
Decreased by 35.49 %
from 5.41 %
Crime Rate
4.00 %
Unchanged by 0.00 %
from 4.00 %

Agent Activity

  • Stratton & King Ltd created the listing.

Nearby Schools

NameTypeOfstedDistance
The Holy Brook SchoolCommunity Special SchoolGood0.25 KM
Manor Primary SchoolCommunity SchoolGood0.25 KM
Southcote Children'S CentreChildren's Centre0.69 KM
Kennet Valley Primary SchoolCommunity SchoolGood0.75 KM
King'S Academy ProspectAcademy ConverterRequires improvement0.87 KM

Images

1357084-1-68d3aea1a136a.jpg 1357084-2-68d3aec5a40fe.jpg 1357084-3-68d3afa358de1.jpg 1357084-4-68d3aee2d1971.jpg 1357084-5-68d3aeed6b90e.jpg 1357084-6-68d3af4525b93.jpg 1357084-7-68d3af5587072.jpg 1357084-8-68d3af59e7594.jpg 1357084-9-68d3af9de9928.jpg 1357084-10-68d3af64d23a1.jpg 1357084-12-68d3af6c85857.jpg 1357084-13-68d3af9186f76.jpg 1357084-14-68d3af7ad4922.jpg 1357084-15-68d3af88276d3.jpg

Nearby Streets

NameAverage PriceAverage SqftDistance
Grantham Road £ 435,00000.00 KM
Holmwood Avenue £ 000.00 KM
Florian Gardens £ 000.00 KM
Maker Close £ 000.00 KM
Fox Hunt Grove £ 000.00 KM

Nearby Transport

NameNLCTLCDistance
Reading West3160RDW3.56 KM
Tilehurst3154TLH3.73 KM
Reading3149RDG5.54 KM
Theale3153THE6.32 KM
Mortimer5501MOR7.80 KM

Nearby Listings

AddressPriceTypeScoreDistance
Southcote Lodge, Reading £ 115,000BUY7 / 100.00 KM
Southcote Lodge, Reading £ 125,000BUY6 / 100.01 KM
Burghfield Road, Reading, Berkshire, RG30 £ 170,000BUY7 / 100.04 KM
Burghfield Road, Reading, Berkshire, RG30 £ 750,000BUY8 / 100.04 KM
Burghfield Road, Reading, Berkshire, RG30 £ 100,000BUY6 / 100.04 KM

Nearby Properties

AddressPriceDistance
49 Burghfield Road £ 305,0000.04 KM
80 Burghfield Road £ 288,3880.08 KM
76 Burghfield Road £ 189,0000.08 KM
90 Burghfield Road £ 393,0000.08 KM
102 Burghfield Road £ 213,0000.08 KM