Coulby Conduct says ..
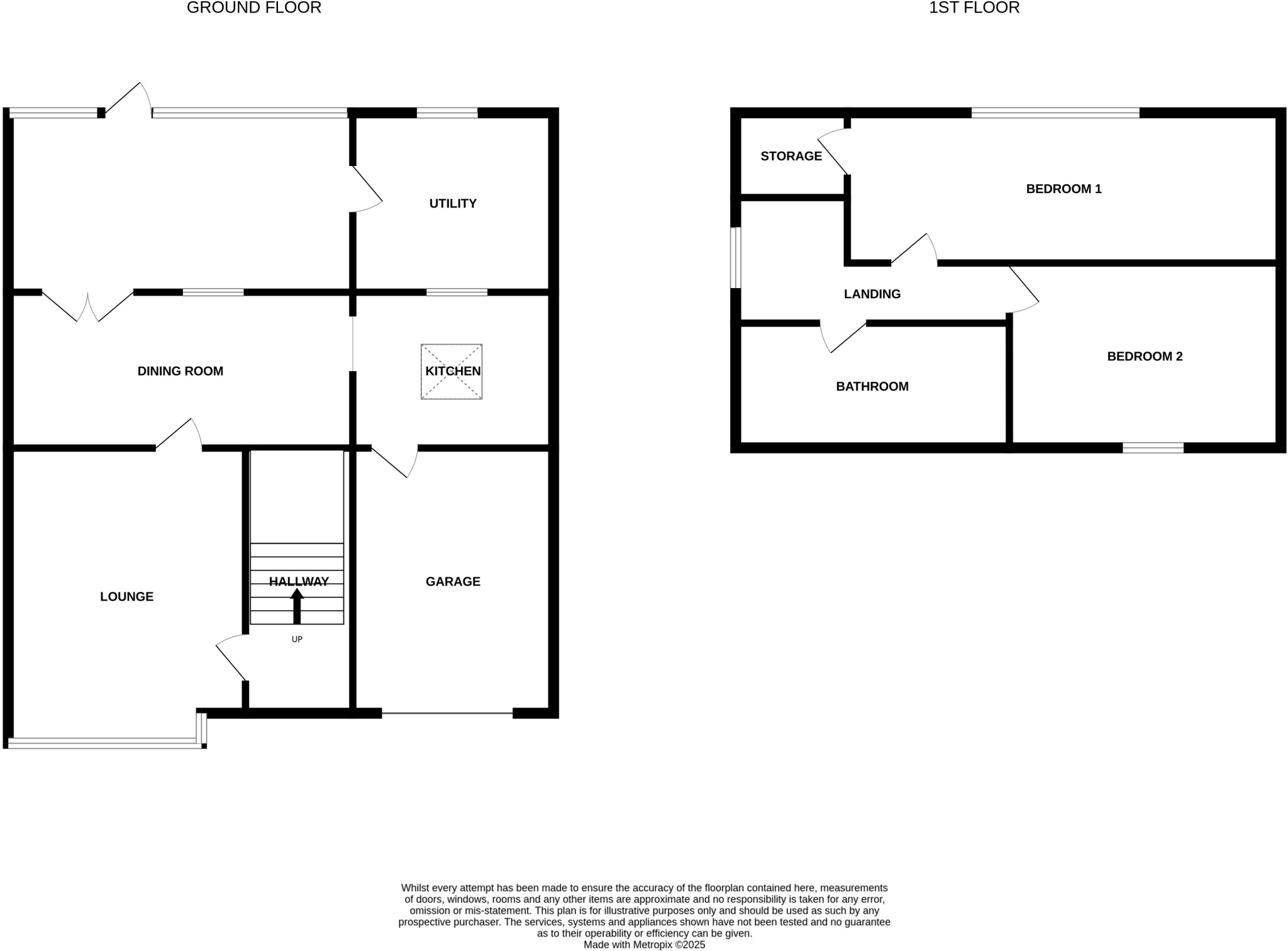
Situated in a sought after location, this two bedroom semi-detached house presents a unique opportunity for those seeking a comfortable and well-appointed home. With the added benefit of no upward chain involved, prospective buyers can seamlessly transition into this property and make it their ow...
Property Oracle says ..
Therefore, we give this property 7 / 10. *Disclaimer: This is our option and does constitute a recommendation or financial advice. Do your own research. *
- Price
- 9
- Condition
- 8
- Location
- 7
- Land
- 7
- Bedrooms
- 2
- Bathrooms
- 2
- Sqft (est)
- 1,050.00
The heatmap indicates the level of crime in the area. The color of the heatmap indicates the crime severity and recency.
Metrics Year-on-Year
- Average area value
- 333,571.00 £Increased by 33.76 %
- Est sale value
- 308,700.00 £Increased by 25.11 %
- Average area rental value
- 1,005.00 £/moIncreased by 8.30 %
- Est letting value
- 0.00 £/mo
- Est rental Yield
- 3.62 %Decreased by 19.02 %
- Crime Rate
- 18.00 %Unchanged by 0.00 %
from 249,389.00 £
from 246,750.00 £
from 928.00 £/mo
from 0.00 £/mo
from 4.47 %
from 18.00 %
Agent Activity
Coulby Conduct created the listing.
Nearby Schools
| Name | Type | Ofsted | Distance |
|---|---|---|---|
| Cledford Primary School | Community School | Good | 0.38 KM |
| Middlewich High School | Academy Converter | 0.99 KM | |
| St Mary'S Catholic Primary School | Voluntary Aided School | Good | 1.06 KM |
| Sandbach Children'S Centre- Middlewich Site | Children's Centre Linked Site | 1.28 KM | |
| Middlewich Primary School | Community School | Good | 1.29 KM |
Images
Nearby Streets
| Name | Average Price | Average Sqft | Distance |
|---|---|---|---|
| Elm Road | £ 0 | 0 | 0.00 KM |
| Barrington Drive | £ 0 | 0 | 0.00 KM |
| Dale Court | £ 0 | 0 | 0.00 KM |
| Manor Fields | £ 182,500 | 0 | 0.00 KM |
| Sanderson Way | £ 150,000 | 0 | 0.00 KM |
Nearby Transport
| Name | NLC | TLC | Distance |
|---|---|---|---|
| Winsford | 2269 | WSF | 5.96 KM |
| Sandbach | 1261 | SDB | 6.51 KM |
| Lostock Gralam | 2307 | LTG | 9.60 KM |
Nearby Listings
| Address | Price | Type | Score | Distance |
|---|---|---|---|---|
| Elm Road, Middlewich | £ 352,000 | BUY | 6 / 10 | 0.00 KM |
| Elm Road, Middlewich | £ 220,000 | BUY | Unknown | 0.00 KM |
| Elm Road, Middlewich | £ 234,500 | BUY | 7 / 10 | 0.00 KM |
| Elm Road, Middlewich | £ 350,000 | BUY | 7 / 10 | 0.06 KM |
| Ash Grove, Middlewich | £ 200,000 | BUY | Unknown | 0.08 KM |
Nearby Properties
| Address | Price | Distance |
|---|---|---|
| 9 Elm Road | £ 148,500 | 0.00 KM |
| 4 Elm Road | £ 175,000 | 0.00 KM |
| 10 Elm Road | £ 212,000 | 0.00 KM |
| 7 Elm Road | £ 132,500 | 0.00 KM |
| 26 Booth Lane | £ 95,000 | 0.07 KM |