Links Estate Agents says ..
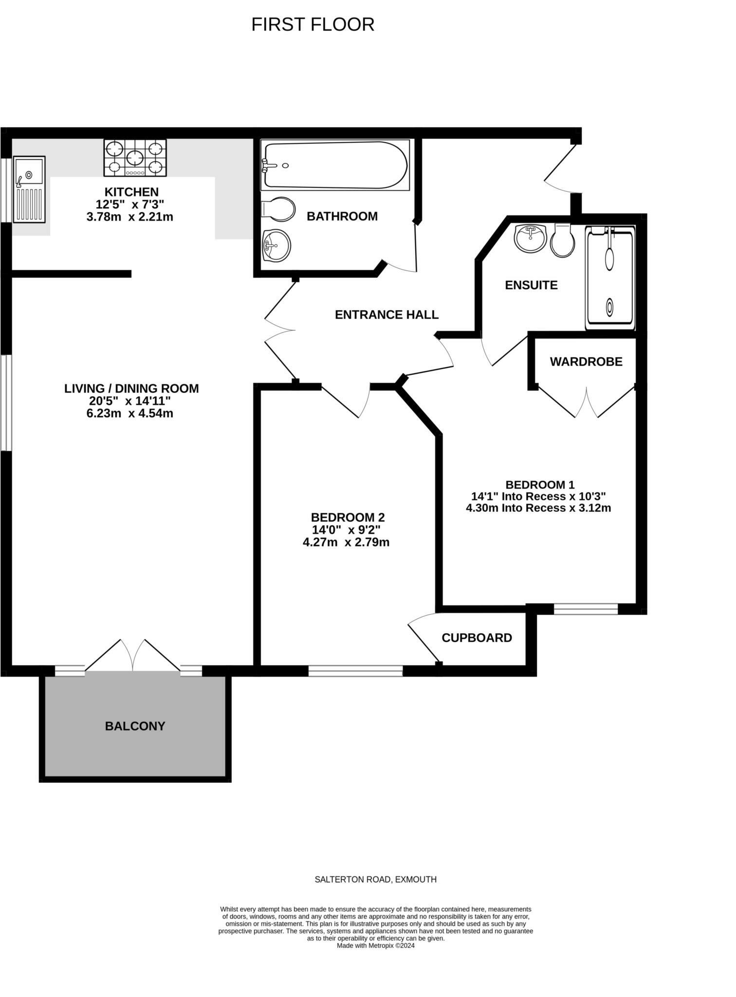
Offered for sale with NO ONWARD CHAIN and situated on the first floor of this lovely small block of apartments is this 2 double bedroom and 2 bathroom apartment with a balcony and allocated parking.
Property Oracle says ..
This 2-bedroom, 2-bathroom apartment in Exmouth, Devon, is located on Salterton Road, within a short distance of Exmouth train station, providing convenient access to rail travel. The property is part of a well-maintained apartment block with a shared communal garden area and allocated parking. The interior photographs reveal a modern kitchen and bathrooms, though the furnishings in some rooms may appear slightly dated. The apartment benefits from a private balcony. While the property is attractive and seemingly well-maintained, a critical aspect is the lack of information regarding the overall size of the building, the individual square footage of the property, and the specifics of the allocated parking (size, location, etc.) would add greater clarity. Overall, this property appears to be a suitable option for buyers seeking a comfortable apartment in a desirable coastal location. The lack of specific details on square footage limits a precise evaluation of its value, although the current listing price appears generally appropriate compared to other nearby properties.
Therefore, we give this property 6 / 10. *Disclaimer: This is our option and does constitute a recommendation or financial advice. Do your own research. *
- Price
- 7
- Condition
- 7
- Location
- 7
- Land
- 4
- Bedrooms
- 2
- Bathrooms
- 2
- Sqft (est)
- 946.79
The heatmap indicates the level of crime in the area. The color of the heatmap indicates the crime severity and recency.
Metrics Year-on-Year
- Average area value
- 385,000.00 £Decreased by 11.33 %
- Est sale value
- 630,562.14 £Increased by 93.60 %
- Average area rental value
- 1,650.00 £/moIncreased by 37.04 %
- Est letting value
- 1,893.58 £/mo
- Est rental Yield
- 5.14 %Increased by 54.35 %
- Crime Rate
- 4.00 %Unchanged by 0.00 %
Agent Activity
Links Estate Agents created the listing.
Nearby Schools
| Name | Type | Ofsted | Distance |
|---|---|---|---|
| Exmouth & District Children'S Centre | Children's Centre | 0.72 KM | |
| Marpool Primary School | Foundation School | Good | 0.78 KM |
| Withycombe Raleigh Church Of England Primary School | Voluntary Controlled School | Good | 1.04 KM |
| St Joseph'S Catholic Primary School, Exmouth | Academy Converter | Good | 1.04 KM |
| Exmouth Community College | Academy Converter | Requires improvement | 1.41 KM |
Images
Nearby Streets
| Name | Average Price | Average Sqft | Distance |
|---|---|---|---|
| Walnut Grove | £ 220,000 | 0 | 0.00 KM |
| Vale Road | £ 0 | 0 | 0.00 KM |
| Park Way | £ 345,000 | 0 | 0.00 KM |
| High View Gardens | £ 0 | 0 | 0.00 KM |
| St John's Road | £ 270,000 | 0 | 0.00 KM |
Nearby Transport
| Name | NLC | TLC | Distance |
|---|---|---|---|
| Exmouth | 5756 | EXM | 2.24 KM |
| Lympstone Village | 5761 | LYM | 4.99 KM |
| Starcross | 3413 | SCS | 5.90 KM |
| Dawlish Warren | 3409 | DWW | 5.98 KM |
| Lympstone Commando | 5762 | LYC | 6.81 KM |
Nearby Listings
| Address | Price | Type | Score | Distance |
|---|---|---|---|---|
| Salterton Road, Exmouth | £ 299,950 | BUY | 6 / 10 | 0.00 KM |
| Salterton Road, Exmouth, EX8 | £ 495,000 | BUY | 8 / 10 | 0.00 KM |
| Aliston House, Salterton Road, Exmouth | £ 425,000 | BUY | 7 / 10 | 0.07 KM |
| The Penthouse, Aliston House, 58 Salterton Road, Exmouth | £ 595,000 | BUY | 7 / 10 | 0.08 KM |
| Salterton Road, Exmouth | £ 850,000 | BUY | Unknown | 0.09 KM |
Nearby Properties
| Address | Price | Distance |
|---|---|---|
| 54 Salterton Road | £ 439,950 | 0.07 KM |
| 75 Salterton Road | £ 612,500 | 0.07 KM |
| 71 Salterton Road | £ 382,000 | 0.07 KM |
| 56 Salterton Road | £ 396,000 | 0.07 KM |
| 54a Salterton Road | £ 380,000 | 0.07 KM |