Hollins Lane, Marple Bridge, Stockport
By Gascoigne Halman
£ 575,000
Reviews
3 out of 5 stars
Gascoigne Halman says ..
FOR SALE BY INFORMAL TENDER - CLOSING DATE FOR OFFERS WEDNESDAY 30TH APRIL A substantial FOUR bedroom semi detached property situated close to the heart of Marple Bridge, offering great potential to update and improve. Boasting off road PARKING and large GARDENS.
Property Oracle says ..
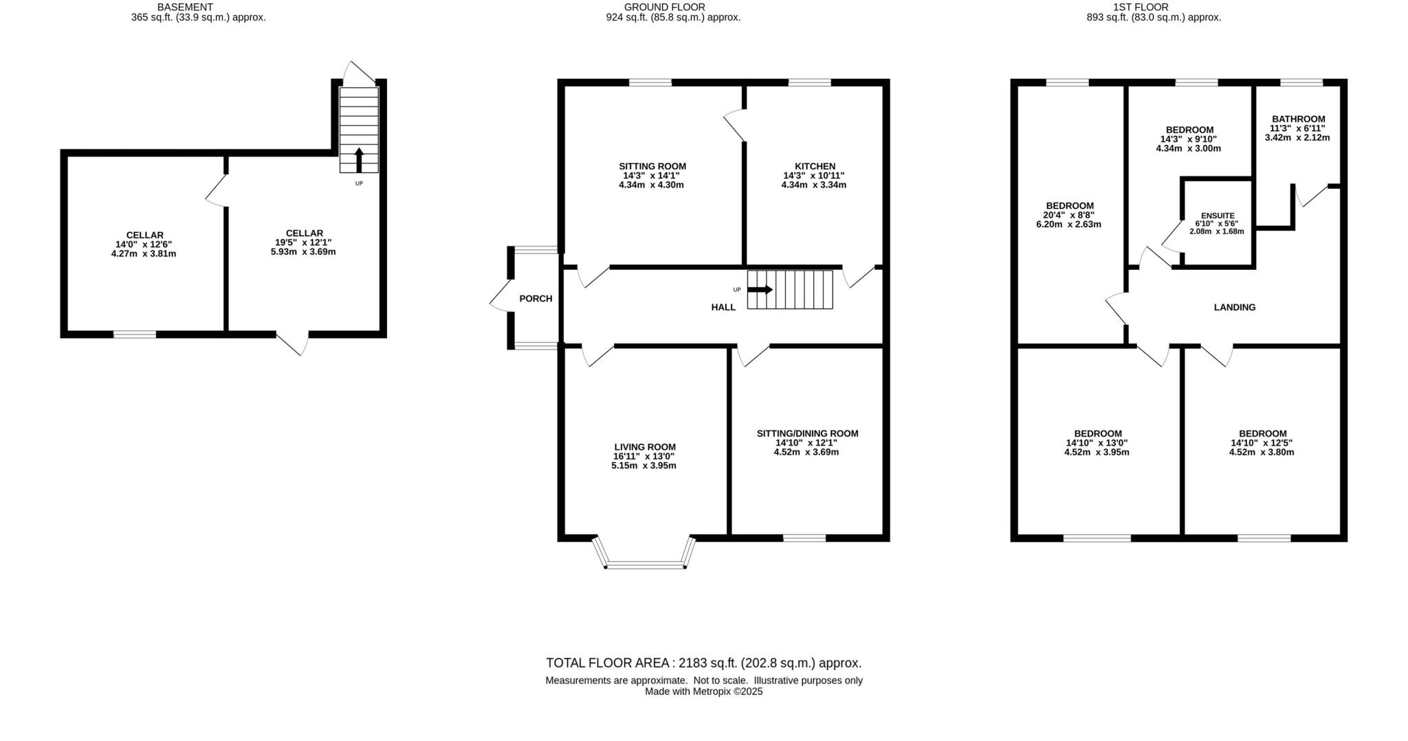
This property is a semi-detached house located in Marple Bridge, Stockport. It benefits from being close to several highly-rated schools, including Ludworth Primary School (Outstanding Ofsted rating) and St Mary’s Catholic Voluntary Academy, both within a short distance. The property is also conveniently located near Marple train station, providing easy access to Manchester and other areas. The house itself is a traditional style property that appears to be in need of some modernisation and updating. While it has character features, such as fireplaces, the interior appears dated and could benefit from refurbishment. The property includes a garden, which is a desirable feature. The list price of £575,000 is slightly above the average price for the area (£541,104), but the larger size (2,183 sqft compared to the average of 1,476 sqft) and the inclusion of a garden may justify the higher price. However, potential buyers should factor in the cost of renovations.
Therefore, we give this property 6 / 10. *Disclaimer: This is our option and does constitute a recommendation or financial advice. Do your own research. *
- Price
- 6
- Condition
- 4
- Location
- 9
- Land
- 6
- Bedrooms
- 4
- Bathrooms
- 2
- Sqft (est)
- 2,183.00
The heatmap indicates the level of crime in the area. The color of the heatmap indicates the crime severity and recency.
Metrics Year-on-Year
- Average area value
- 583,125.00 £Increased by 22.07 %
- Est sale value
- 995,448.00 £Increased by 21.93 %
- Average area rental value
- 1,406.00 £/moIncreased by 16.39 %
- Est letting value
- 2,183.00 £/mo
- Est rental Yield
- 2.89 %Decreased by 4.62 %
- Crime Rate
- 0.00 %
Agent Activity
Gascoigne Halman created the listing.
Nearby Schools
| Name | Type | Ofsted | Distance |
|---|---|---|---|
| St Mary'S Catholic Voluntary Academy | Academy Converter | 0.30 KM | |
| Ludworth Primary School | Community School | Outstanding | 0.43 KM |
| Brabyns Preparatory School | Other Independent School | 0.58 KM | |
| All Saints Church Of England Primary School Marple | Voluntary Controlled School | Good | 1.33 KM |
| Mellor Primary School | Academy Converter | Good | 1.39 KM |
Images
Nearby Streets
| Name | Average Price | Average Sqft | Distance |
|---|---|---|---|
| Pear Tree Close | £ 380,000 | 0 | 0.00 KM |
| Homer Drive | £ 0 | 0 | 0.00 KM |
| The Close | £ 0 | 0 | 0.00 KM |
| Field House Lane | £ 950,000 | 0 | 0.00 KM |
| Parkside Lane | £ 376,000 | 0 | 0.00 KM |
Nearby Transport
| Name | NLC | TLC | Distance |
|---|---|---|---|
| Marple | 2830 | MPL | 0.62 KM |
| Rose Hill Marple | 2873 | RSH | 2.78 KM |
| Strines | 2834 | SRN | 3.42 KM |
| Romiley | 2833 | RML | 4.43 KM |
| Disley | 2765 | DSL | 4.79 KM |
Nearby Listings
| Address | Price | Type | Score | Distance |
|---|---|---|---|---|
| Hollins Lane, Marple Bridge, Stockport | £ 575,000 | BUY | 6 / 10 | 0.00 KM |
| Hollins Lane, Marple Bridge, Stockport, Cheshire, SK6 5BB | £ 1,125,000 | BUY | 8 / 10 | 0.04 KM |
| Town Street, Marple Bridge, Stockport, Greater Manchester, SK6 | £ 225,000 | BUY | 7 / 10 | 0.17 KM |
| Longhurst Lane, Marple Bridge, Stockport | £ 450,000 | BUY | 7 / 10 | 0.17 KM |
| Longhurst Lane, Marple Bridge | £ 925,000 | BUY | 7 / 10 | 0.18 KM |
Nearby Properties
| Address | Price | Distance |
|---|---|---|
| 42 Longhurst Lane | £ 313,000 | 0.14 KM |
| 14 Longhurst Lane | £ 335,000 | 0.14 KM |
| 23 Longhurst Lane | £ 305,000 | 0.14 KM |
| 46 Longhurst Lane | £ 273,000 | 0.14 KM |
| 33 Longhurst Lane | £ 465,000 | 0.14 KM |