Carnoustie, Bracknell, Berkshire, RG12
By Prospect Estate Agency
£ 345,000
Reviews
3 out of 5 stars
Prospect Estate Agency says ..
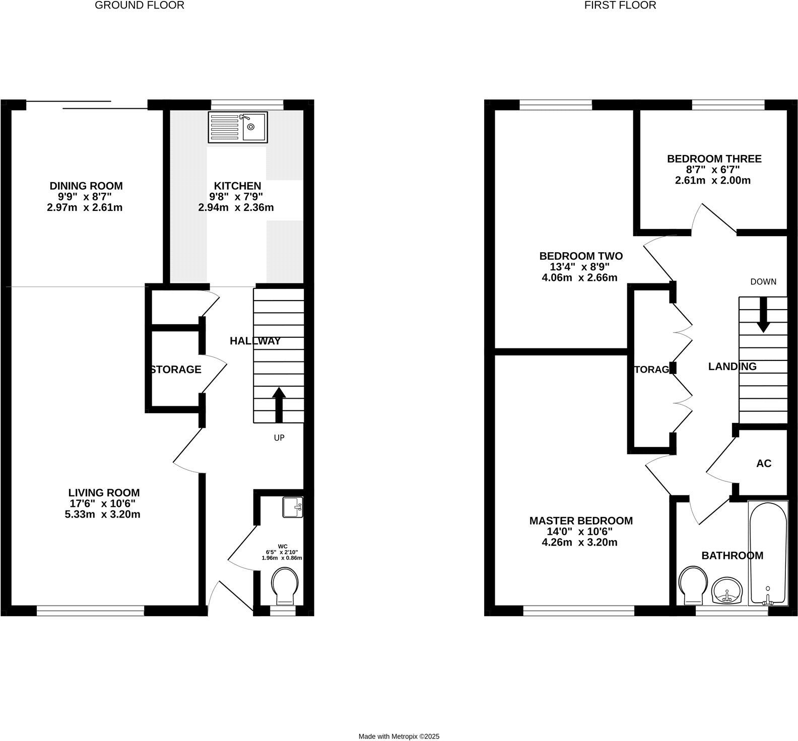
NO ONWARD CHAIN This three bedroom mid-terrace property offers spacious living accommodation and is situated within the Home Farm development on the south side of Bracknell. The property is good condition and is open plan comprising living/dining room with doors leading out ...
Property Oracle says ..
This is a three-bedroom terraced property in Great Hollands South, Bracknell. The property is in a location that offers good access to local schools and amenities, with Bracknell train station within a reasonable distance. While the property appears to be in a generally reasonable condition, some modernisation would be beneficial, particularly in the bathroom. The property benefits from both front and rear gardens, providing valuable outdoor space. Considering the location and condition, the asking price of £345,000 seems reasonable, despite being above the average price per square foot for the area.
Therefore, we give this property 6 / 10. *Disclaimer: This is our option and does constitute a recommendation or financial advice. Do your own research. *
- Price
- 7
- Condition
- 6
- Location
- 7
- Land
- 7
- Bedrooms
- 3
- Bathrooms
- 1
- Sqft (est)
- 259.73
The heatmap indicates the level of crime in the area. The color of the heatmap indicates the crime severity and recency.
Metrics Year-on-Year
- Average area value
- 217,143.00 £Decreased by 10.70 %
- Est sale value
- 63,893.58 £Decreased by 12.14 %
- Average area rental value
- 1,267.00 £/moIncreased by 25.57 %
- Est letting value
- 259.73 £/moUnchanged by 0.00 %
- Est rental Yield
- 7.00 %Increased by 40.56 %
- Crime Rate
- 11.00 %Unchanged by 0.00 %
Agent Activity
Prospect Estate Agency created the listing.
Nearby Schools
| Name | Type | Ofsted | Distance |
|---|---|---|---|
| Wooden Hill Primary And Nursery School | Community School | Good | 0.48 KM |
| Easthampstead Park Community School | Community School | Good | 0.61 KM |
| Jennett'S Park Cofe Primary School | Academy Sponsor Led | 0.90 KM | |
| Great Hollands Primary School | Academy Sponsor Led | 0.92 KM | |
| The Hollies Children'S Centre | Children's Centre Linked Site | 1.26 KM |
Images
Nearby Streets
| Name | Average Price | Average Sqft | Distance |
|---|---|---|---|
| Ringmead | £ 0 | 0 | 0.00 KM |
| Redwing Place | £ 0 | 0 | 0.00 KM |
| Great Hollands Road | £ 340,000 | 0 | 0.00 KM |
| Beaufort Park | £ 0 | 0 | 0.00 KM |
| Dry Pond Ride | £ 0 | 0 | 0.00 KM |
Nearby Transport
| Name | NLC | TLC | Distance |
|---|---|---|---|
| Bracknell | 5693 | BCE | 3.55 KM |
| Crowthorne | 5628 | CRN | 5.53 KM |
| Sandhurst (Berks) | 5646 | SND | 6.11 KM |
| Martins Heron | 5692 | MAO | 6.11 KM |
| Blackwater | 5625 | BAW | 7.08 KM |
Nearby Listings
| Address | Price | Type | Score | Distance |
|---|---|---|---|---|
| Carnoustie, Bracknell | £ 390,000 | BUY | 6 / 10 | 0.00 KM |
| Carnoustie, Bracknell, Berkshire, RG12 | £ 345,000 | BUY | 6 / 10 | 0.00 KM |
| Turnberry, Bracknell, Berkshire, RG12 | £ 400,000 | BUY | 6 / 10 | 0.14 KM |
| Turnberry, Bracknell | £ 425,000 | BUY | 6 / 10 | 0.19 KM |
| Turnberry, Bracknell, Berkshire, RG12 | £ 390,000 | BUY | 6 / 10 | 0.19 KM |
Nearby Properties
| Address | Price | Distance |
|---|---|---|
| 9 Carnoustie | £ 250,000 | 0.01 KM |
| 6 Carnoustie | £ 153,000 | 0.01 KM |
| 11 Carnoustie | £ 265,000 | 0.01 KM |
| 46 Carnoustie | £ 320,000 | 0.01 KM |
| 47 Carnoustie | £ 209,950 | 0.01 KM |