BR
Wild Herons, Hook, Hampshire, RG27
By Bridges Estate Agents
£ 400,000
Reviews
3 out of 5 stars
Bridges Estate Agents says ..
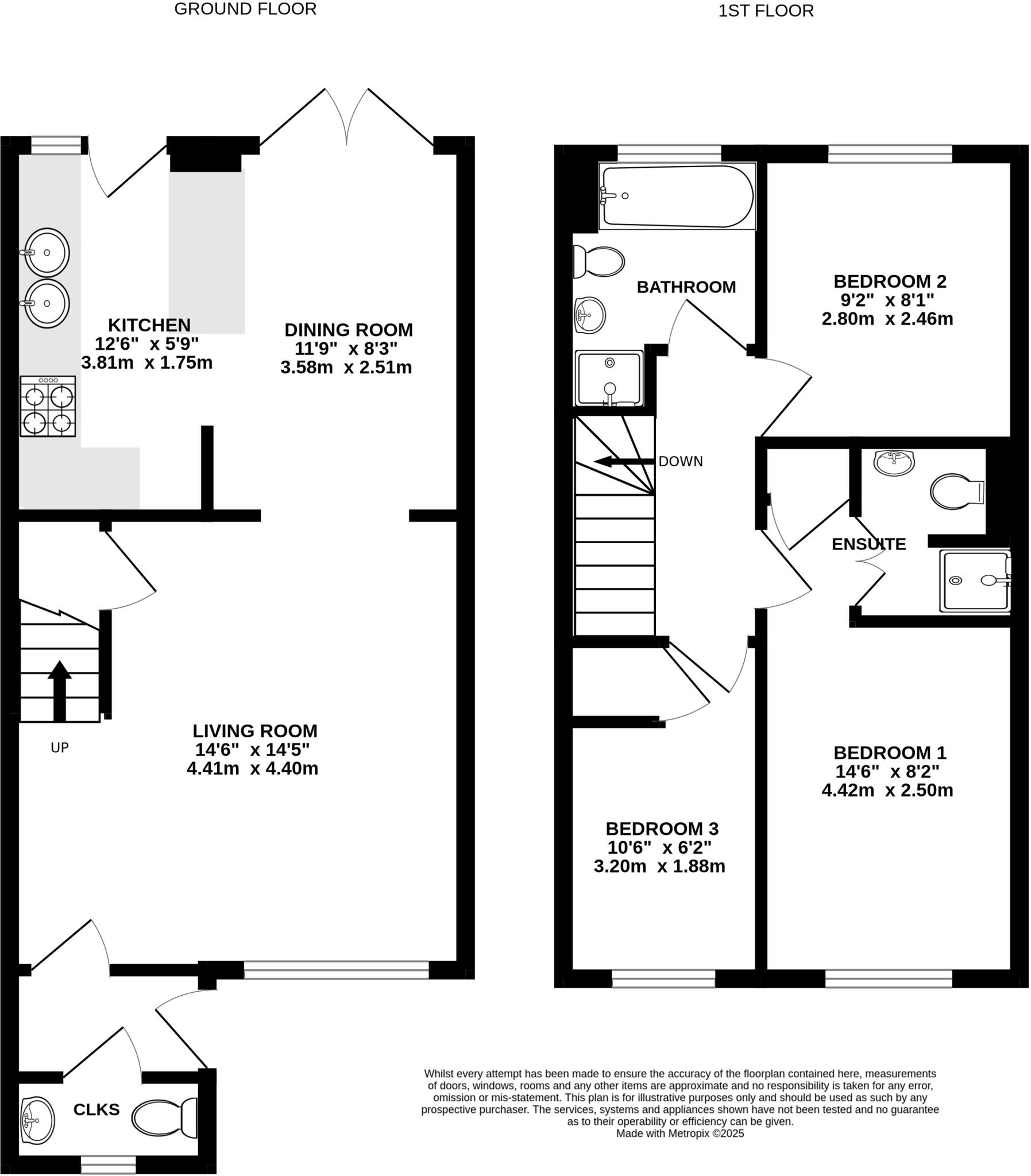
Nestled at the end of a quiet cul-de-sac surrounded by lush greenery that attracts a variety of birdlife, we are pleased to present this charming three bedroom semi-detached home to the market. The ground floor offers a spacious, open plan layout featuring a stylish stainless steel and glass fire...
Property Oracle says ..
Therefore, we give this property 7 / 10. *Disclaimer: This is our option and does constitute a recommendation or financial advice. Do your own research. *
- Price
- 6
- Condition
- 7
- Location
- 8
- Land
- 7
- Bedrooms
- 3
- Bathrooms
- 2
- Sqft (est)
- 635.19
The heatmap indicates the level of crime in the area. The color of the heatmap indicates the crime severity and recency.
Metrics Year-on-Year
- Average area value
- 309,833.00 £Decreased by 41.90 %
- Est sale value
- 309,337.53 £Increased by 35.28 %
- Average area rental value
- 1,358.00 £/moDecreased by 12.33 %
- Est letting value
- 1,270.38 £/moIncreased by 100.00 %
- Est rental Yield
- 5.26 %Increased by 50.72 %
- Crime Rate
- 4.00 %Unchanged by 0.00 %
from 533,258.00 £
from 228,668.40 £
from 1,549.00 £/mo
from 635.19 £/mo
from 3.49 %
from 4.00 %
Agent Activity
Bridges Estate Agents created the listing.
Nearby Schools
| Name | Type | Ofsted | Distance |
|---|---|---|---|
| Hook Junior School | Community School | Outstanding | 0.83 KM |
| Hook Infant School | Community School | Outstanding | 0.83 KM |
| Robert May'S School | Academy Converter | Good | 3.15 KM |
| Wisteria Children'S Centre | Children's Centre Linked Site | 3.41 KM | |
| Mayhill Junior School | Community School | Good | 3.45 KM |
Images
Nearby Streets
| Name | Average Price | Average Sqft | Distance |
|---|---|---|---|
| Whitewater Rise | £ 575,000 | 0 | 0.00 KM |
| Redes Close | £ 835,000 | 0 | 0.00 KM |
| St Johns Close | £ 0 | 0 | 0.00 KM |
| Postchaise Close | £ 0 | 0 | 0.00 KM |
| Durley Place | £ 0 | 0 | 0.00 KM |
Nearby Transport
| Name | NLC | TLC | Distance |
|---|---|---|---|
| Hook | 5523 | HOK | 1.15 KM |
| Winchfield | 5528 | WNF | 4.92 KM |
Nearby Listings
| Address | Price | Type | Score | Distance |
|---|---|---|---|---|
| Wild Herons, Hook, Hampshire, RG27 | £ 400,000 | BUY | 7 / 10 | 0.00 KM |
| Wild Herons, Hook, Hampshire, RG27 | £ 350,000 | BUY | 6 / 10 | 0.04 KM |
| Wild Herons, Hook, RG27 | £ 725,000 | BUY | Unknown | 0.18 KM |
| Vetch Field, Hook, Hampshire, RG27 | £ 440,000 | BUY | 6 / 10 | 0.19 KM |
| Vetch Field, Hook, Hampshire, RG27 | £ 775,000 | BUY | 7 / 10 | 0.22 KM |
Nearby Properties
| Address | Price | Distance |
|---|---|---|
| 18 Wild Herons | £ 249,950 | 0.08 KM |
| 38 Wild Herons | £ 235,000 | 0.08 KM |
| 2 Wild Herons | £ 300,000 | 0.08 KM |
| 36 Wild Herons | £ 330,000 | 0.08 KM |
| 54 Wild Herons | £ 443,000 | 0.08 KM |