Leadley Croft, Copmanthorpe, YO23
By Wishart Estate Agents
£ 295,000
Reviews
3 out of 5 stars
Wishart Estate Agents says ..
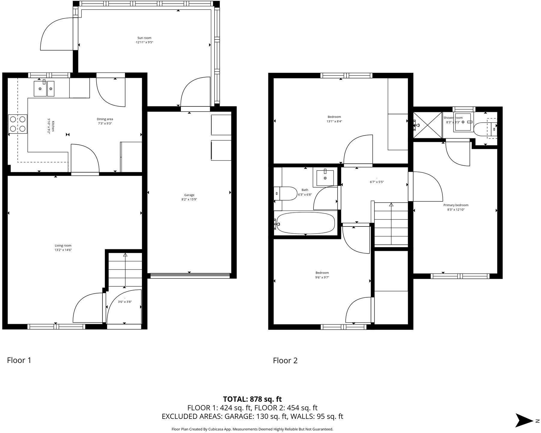
Beautifully presented three bedroom mid-terraced property in the desirable village of Copmanthorpe. Offering open plan living, modern family bathroom, driveway and integral garage.
Property Oracle says ..
This is a three-bedroom terraced property located on Leadley Croft in Copmanthorpe, York. The property is listed for sale with Wishart Estate Agents. The images suggest the property is in good condition, with a modern kitchen and bathroom. It also benefits from a garden. The property is located close to local schools and transportation links. The asking price of £295,000 appears reasonable when compared to average property prices in the area.
Therefore, we give this property 7 / 10. *Disclaimer: This is our option and does constitute a recommendation or financial advice. Do your own research. *
- Price
- 8
- Condition
- 8
- Location
- 7
- Land
- 7
- Bedrooms
- 3
- Bathrooms
- 2
The heatmap indicates the level of crime in the area. The color of the heatmap indicates the crime severity and recency.
Metrics Year-on-Year
- Average area value
- 591,875.00 £Increased by 5.13 %
- Average area rental value
- 1,194.00 £/moDecreased by 3.63 %
- Est rental Yield
- 2.42 %Decreased by 8.33 %
- Crime Rate
- 22.00 %Unchanged by 0.00 %
Agent Activity
Wishart Estate Agents created the listing.
Nearby Schools
| Name | Type | Ofsted | Distance |
|---|---|---|---|
| Copmanthorpe Primary School | Community School | Good | 0.94 KM |
| Askham Bryan College | Further Education | Good | 2.46 KM |
| Woodthorpe Primary School | Academy Converter | 3.37 KM | |
| York College | Further Education | Outstanding | 4.34 KM |
| Appleton Roebuck Primary School | Academy Converter | 4.40 KM |
Images
Nearby Streets
| Name | Average Price | Average Sqft | Distance |
|---|---|---|---|
| Station Road | £ 325,000 | 0 | 0.00 KM |
| Saint Giles Way | £ 290,000 | 0 | 0.00 KM |
| Church Street | £ 425,000 | 0 | 0.00 KM |
| Saint Nicholas Crescent | £ 425,000 | 0 | 0.00 KM |
| College Road | £ 475,000 | 0 | 0.00 KM |
Nearby Transport
| Name | NLC | TLC | Distance |
|---|---|---|---|
| Poppleton | 8254 | POP | 7.41 KM |
| York | 8263 | YRK | 7.64 KM |
Nearby Listings
| Address | Price | Type | Score | Distance |
|---|---|---|---|---|
| Leadley Croft, Copmanthorpe, YO23 | £ 295,000 | BUY | 7 / 10 | 0.00 KM |
| Leadley Croft, York, YO23 | £ 350,000 | BUY | Unknown | 0.07 KM |
| Moorland Gardens, Plymouth, PL7 | £ 170,000 | BUY | 7 / 10 | 0.12 KM |
| Moorland Gardens, Copmanthorpe, York | £ 250,000 | BUY | 7 / 10 | 0.13 KM |
| Moor Lane, Copmanthorpe, YO23 | £ 375,000 | BUY | 7 / 10 | 0.16 KM |
Nearby Properties
| Address | Price | Distance |
|---|---|---|
| 10 Leadley Croft | £ 234,000 | 0.07 KM |
| 16 Leadley Croft | £ 258,000 | 0.07 KM |
| 18 Leadley Croft | £ 305,000 | 0.07 KM |
| 33 Leadley Croft | £ 212,500 | 0.07 KM |
| 14 Leadley Croft | £ 183,000 | 0.07 KM |