Tamarises, 19, Salander Crescent, Wistaston, Crewe, CW2 6SA
By James Du Pavey
£ 325,000
Reviews
3 out of 5 stars
James Du Pavey says ..
Delightful detached bungalow in tranquil Wistaston area within Rope parish with spacious rooms, potential for modernisation, and peaceful yet convenient location. Perfect for various buyers, with no onward chain.
Property Oracle says ..
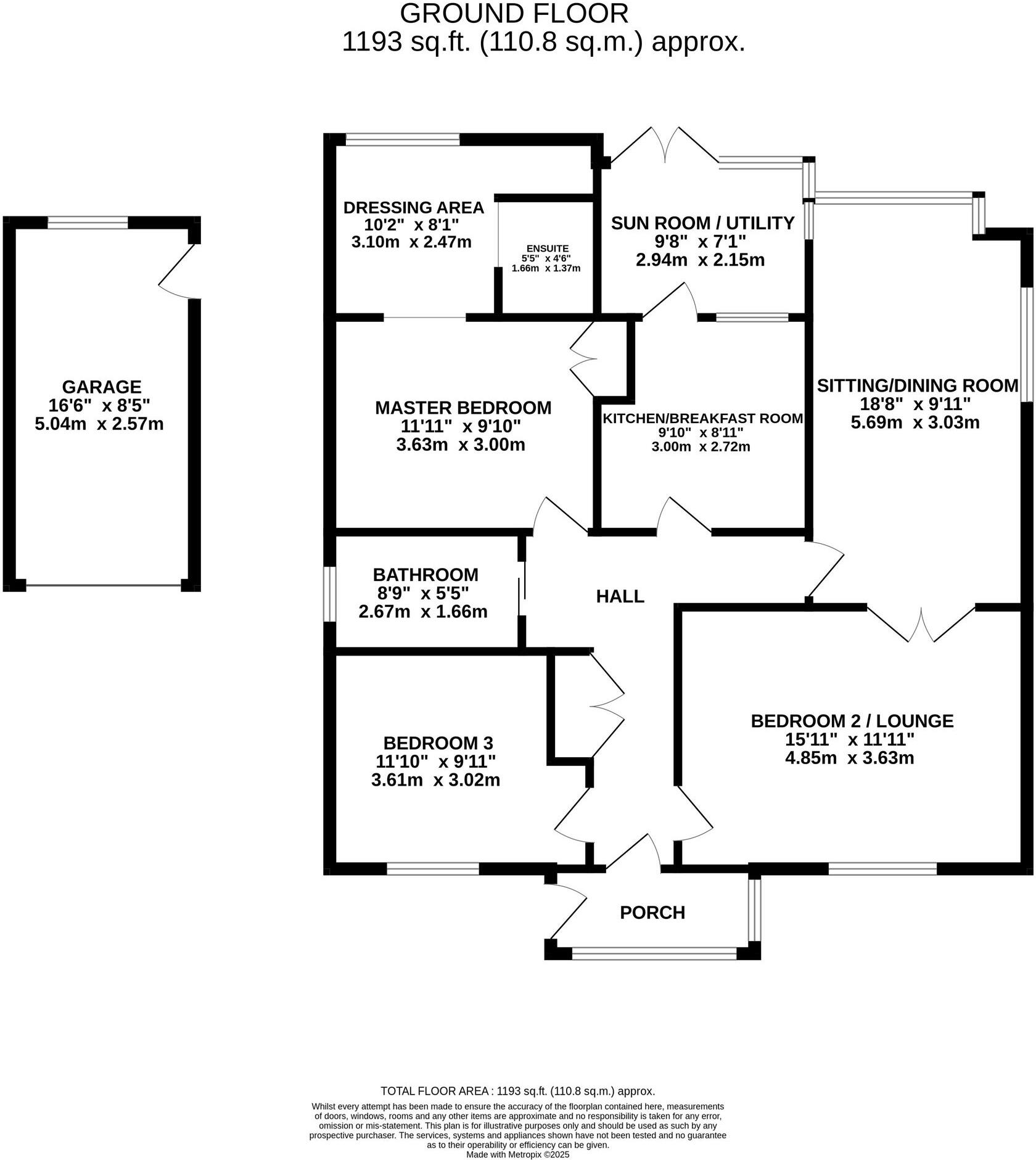
Tamarises, 19 Salander Crescent is a three-bedroom bungalow located in Wistaston, Crewe. The property is in a residential area and is close to local schools, amenities and transport links. The property itself requires some modernisation, particularly the kitchen and bathroom. However, it benefits from a good-sized garden, a driveway and a garage. The asking price of £325,000 seems reasonable given the location and the potential to add value through renovation.
Therefore, we give this property 6 / 10. *Disclaimer: This is our option and does constitute a recommendation or financial advice. Do your own research. *
- Price
- 7
- Condition
- 5
- Location
- 7
- Land
- 7
- Bedrooms
- 3
- Bathrooms
- 1
The heatmap indicates the level of crime in the area. The color of the heatmap indicates the crime severity and recency.
Metrics Year-on-Year
- Average area value
- 373,571.00 £Increased by 14.06 %
- Average area rental value
- 1,300.00 £/moDecreased by 16.13 %
- Est rental Yield
- 4.18 %Decreased by 26.41 %
- Crime Rate
- 1.00 %Unchanged by 0.00 %
Agent Activity
James Du Pavey created the listing.
Nearby Schools
| Name | Type | Ofsted | Distance |
|---|---|---|---|
| The Berkeley Academy | Academy Converter | Good | 0.65 KM |
| Shavington Academy | Academy Converter | Good | 1.01 KM |
| Vine Tree Primary School | Community School | Good | 1.26 KM |
| St Mary'S Catholic Primary School, Crewe | Voluntary Aided School | Good | 1.26 KM |
| St Thomas More Catholic High School | Academy Converter | Good | 1.30 KM |
Images
Nearby Streets
| Name | Average Price | Average Sqft | Distance |
|---|---|---|---|
| Bridge Close | £ 0 | 0 | 0.00 KM |
| Hardy Close | £ 0 | 0 | 0.00 KM |
| Spencer Close | £ 245,000 | 0 | 0.00 KM |
| Marlowe Close | £ 0 | 0 | 0.00 KM |
| Hidcote Close | £ 535,000 | 0 | 0.00 KM |
Nearby Transport
| Name | NLC | TLC | Distance |
|---|---|---|---|
| Crewe | 1243 | CRE | 3.50 KM |
| Nantwich | 1247 | NAN | 6.51 KM |
Nearby Listings
| Address | Price | Type | Score | Distance |
|---|---|---|---|---|
| Tamarises, 19, Salander Crescent, Wistaston, Crewe, CW2 6SA | £ 325,000 | BUY | 6 / 10 | 0.00 KM |
| Salander Crescent, Crewe | £ 500,000 | BUY | 7 / 10 | 0.05 KM |
| Towers Close, Wistaston | £ 335,000 | BUY | 7 / 10 | 0.17 KM |
| Wisterdale Close, Wistaston | £ 335,000 | BUY | 7 / 10 | 0.18 KM |
| Bridge Close, Crewe, Cheshire, CW2 | £ 340,000 | BUY | Unknown | 0.18 KM |
Nearby Properties
| Address | Price | Distance |
|---|---|---|
| 22 Salander Crescent | £ 230,000 | 0.06 KM |
| 30 Salander Crescent | £ 210,000 | 0.06 KM |
| 14 Salander Crescent | £ 175,000 | 0.06 KM |
| 8 Salander Crescent | £ 225,000 | 0.06 KM |
| 26 Salander Crescent | £ 271,000 | 0.06 KM |