Prime Metro Properties says ..
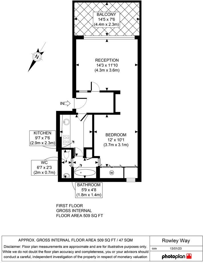
A large and spacious one bedroom property with a balcony. Comprising of a large open plan kitchen/reception room which leads to the balcony, one double bedroom and a family bathroom. Located near the amenities of London’s famous Abbey Road, with a further range of shops, cafés and restau...
Property Oracle says ..
This property is a one-bedroom apartment located in Kilburn, Camden, with a list price of £345,000. The apartment is 509 sqft and has one bathroom. While the location benefits from proximity to several transportation links (South Hampstead, Kilburn High Road Overground stations within a kilometer), and schools (Broadhurst School, St George’s Catholic School within 1km), the property itself appears to be in need of some modernisation. The images show a dated interior and the kitchen and bathroom could benefit from updating. There is no outdoor space. Compared to the average price per sqft in the area (£856), this property is priced significantly lower. However, considering its condition and lack of outdoor space, the price may still be slightly above the expected value. More information on the property’s condition and square footage of nearby properties would be helpful for a more accurate assessment.
Therefore, we give this property 4 / 10. *Disclaimer: This is our option and does constitute a recommendation or financial advice. Do your own research. *
- Price
- 6
- Condition
- 4
- Location
- 7
- Land
- 1
- Bedrooms
- 1
- Bathrooms
- 1
- Sqft (est)
- 509.00
The heatmap indicates the level of crime in the area. The color of the heatmap indicates the crime severity and recency.
Metrics Year-on-Year
- Average area value
- 598,568.00 £Decreased by 21.57 %
- Est sale value
- 360,881.00 £Decreased by 22.77 %
- Average area rental value
- 2,229.00 £/moIncreased by 6.80 %
- Est letting value
- 1,018.00 £/moUnchanged by 0.00 %
- Est rental Yield
- 4.47 %Increased by 36.28 %
- Crime Rate
- 4.00 %Unchanged by 0.00 %
Agent Activity
Prime Metro Properties created the listing.
Nearby Schools
| Name | Type | Ofsted | Distance |
|---|---|---|---|
| Broadhurst School | Other Independent School | 0.63 KM | |
| St George'S Catholic School | Academy Converter | Outstanding | 0.84 KM |
| George Eliot Primary School | Community School | Requires improvement | 0.86 KM |
| Naima Jewish Preparatory School | Other Independent School | 0.87 KM | |
| Harris Academy St John'S Wood | Academy Sponsor Led | Good | 0.90 KM |
Images
Nearby Streets
| Name | Average Price | Average Sqft | Distance |
|---|---|---|---|
| Clifton Hill Studios | £ 0 | 0 | 0.00 KM |
| St Mary's Mews | £ 0 | 0 | 0.00 KM |
| Loudoun Road | £ 0 | 0 | 0.00 KM |
| Ryder's Terrace | £ 0 | 0 | 0.00 KM |
| Springfield Walk | £ 0 | 0 | 0.00 KM |
Nearby Transport
| Name | NLC | TLC | Distance |
|---|---|---|---|
| South Hampstead | 1451 | SOH | 0.65 KM |
| Kilburn High Road | 1415 | KBN | 0.90 KM |
| West Hampstead | 1421 | WHD | 1.12 KM |
| Finchley Road And Frognal | 1445 | FNY | 1.17 KM |
| West Hampstead Thameslink | 1525 | WHP | 1.25 KM |
Nearby Listings
| Address | Price | Type | Score | Distance |
|---|---|---|---|---|
| Rowley Way, South Hampstead | £ 540,000 | BUY | 7 / 10 | 0.07 KM |
| Belsize Road, South Hampstead, London, NW6 | £ 1,150,000 | BUY | Unknown | 0.07 KM |
| Belsize Road, South Hampstead | £ 450,000 | BUY | 6 / 10 | 0.09 KM |
| Belsize Road, London, NW6 | £ 500,000 | BUY | 6 / 10 | 0.10 KM |
| Belsize Road, South Hampstead | £ 950,000 | BUY | 7 / 10 | 0.10 KM |
Nearby Properties
| Address | Price | Distance |
|---|---|---|
| 38b Rowley Way | £ 527,000 | 0.02 KM |
| 40c Rowley Way | £ 275,000 | 0.02 KM |
| 47c Rowley Way | £ 325,000 | 0.02 KM |
| 38a Rowley Way | £ 245,000 | 0.02 KM |
| 47a Rowley Way | £ 175,000 | 0.02 KM |