FO
Off Hatch Lane
By Focus
£ 499,950
Focus says ..
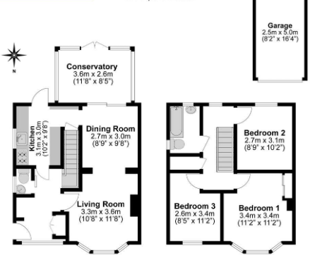
Situated in a quiet cul de sac in this prestigious road just outside Windsor town cente this three bedroom semi detached family home is close to excellent schools for all ages, local amenities and both Windsor train stations. There are two reception areas and a conservatory, a downstairs cloakro...
- Bedrooms
- 3
- Bathrooms
- 1
The heatmap indicates the level of crime in the area. The color of the heatmap indicates the crime severity and recency.
Metrics Year-on-Year
- Average area value
- 642,500.00 £Increased by 19.85 %
- Average area rental value
- 4,119.00 £/moIncreased by 88.17 %
- Est rental Yield
- 7.69 %Increased by 56.94 %
- Crime Rate
- 9.00 %Unchanged by 0.00 %
from 536,102.00 £
from 2,189.00 £/mo
from 4.90 %
from 9.00 %
Agent Activity
Focus created the listing.
Nearby Schools
| Name | Type | Ofsted | Distance |
|---|---|---|---|
| St Edward'S Royal Free Ecumenical Middle School, Windsor | Voluntary Aided School | Good | 0.39 KM |
| St Edward'S Catholic First School | Voluntary Aided School | Outstanding | 0.46 KM |
| Clewer Green Cofe First School | Academy Converter | 0.64 KM | |
| The Manor Children'S Centre | Children's Centre | 0.67 KM | |
| The Lawns Nursery School And Children'S Centre | Children's Centre | 0.75 KM |
Images
Nearby Streets
| Name | Average Price | Average Sqft | Distance |
|---|---|---|---|
| Albion Place | £ 0 | 0 | 0.00 KM |
| Saint Anne's Mews | £ 600,000 | 0 | 0.00 KM |
| Pinewood Place | £ 500,000 | 0 | 0.00 KM |
| Bell View | £ 800,000 | 0 | 0.00 KM |
| Tyrell Gardens | £ 0 | 0 | 0.00 KM |
Nearby Transport
| Name | NLC | TLC | Distance |
|---|---|---|---|
| Windsor And Eton Central | 3175 | WNC | 2.44 KM |
| Windsor And Eton Riverside | 5672 | WNR | 2.92 KM |
| Burnham | 3176 | BNM | 5.27 KM |
| Slough | 3172 | SLO | 5.81 KM |
| Datchet | 5668 | DAT | 5.82 KM |
Nearby Listings
| Address | Price | Type | Score | Distance |
|---|---|---|---|---|
| Dedworth Road, Windsor | £ 520,000 | BUY | 5 / 10 | 0.10 KM |
| Flat 1 Convent Court, Hatch Lane, Windsor, Berkshire, SL4 3QR | £ 250,000 | BUY | 7 / 10 | 0.13 KM |
| Flat 1 Convent Court, Hatch Lane, Windsor, Berkshire, SL4 3QR | £ 235,000 | BUY | 6 / 10 | 0.13 KM |
| Apartment 1 Convent Court, Hatch Lane, Windsor, Berkshire, SL4 3QR | £ 250,000 | BUY | 7 / 10 | 0.13 KM |
| Apartment 1 Convent Court, Hatch Lane, Windsor, Berkshire, SL4 3QR | £ 280,000 | BUY | 7 / 10 | 0.13 KM |
Nearby Properties
| Address | Price | Distance |
|---|---|---|
| 10 Carter Close | £ 600,000 | 0.00 KM |
| 7 Carter Close | £ 600,000 | 0.00 KM |
| 33 Carter Close | £ 565,000 | 0.00 KM |
| 5 Carter Close | £ 535,000 | 0.00 KM |
| 38 Carter Close | £ 610,000 | 0.00 KM |