MA
Crouch Lane, Winkfield, SL4
By Maison Estate Agency
£ 1,500,000
Reviews
3 out of 5 stars
Maison Estate Agency says ..
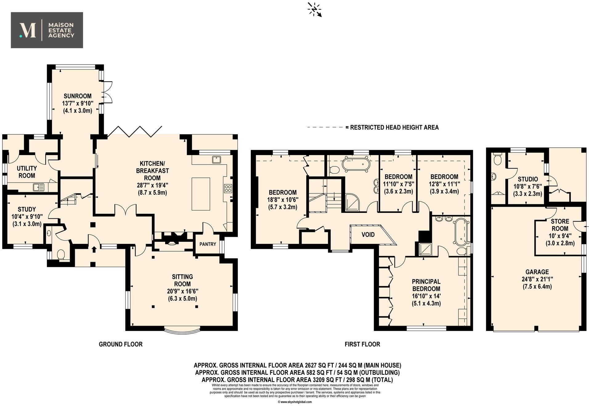
Having undergone a thoughtful and tasteful renovation by the current owners, Barton House now offers the perfect blend of character and charm with the benefit of modern fixtures and fittings.
Property Oracle says ..
Therefore, we give this property 7 / 10. *Disclaimer: This is our option and does constitute a recommendation or financial advice. Do your own research. *
- Price
- 7
- Condition
- 9
- Location
- 8
- Land
- 7
- Bedrooms
- 4
- Bathrooms
- 2
The heatmap indicates the level of crime in the area. The color of the heatmap indicates the crime severity and recency.
Metrics Year-on-Year
- Average area value
- 811,250.00 £Decreased by 14.24 %
- Average area rental value
- 5,577.00 £/moIncreased by 105.34 %
- Est rental Yield
- 8.25 %Increased by 139.13 %
- Crime Rate
- 7.00 %Unchanged by 0.00 %
from 945,966.00 £
from 2,716.00 £/mo
from 3.45 %
from 7.00 %
Agent Activity
Maison Estate Agency created the listing.
Nearby Schools
| Name | Type | Ofsted | Distance |
|---|---|---|---|
| Cranbourne Primary School | Community School | Outstanding | 1.21 KM |
| Papplewick School | Other Independent School | 2.89 KM | |
| Ascot Heath Primary School | Community School | Outstanding | 3.06 KM |
| Braywood Cofe First School | Voluntary Controlled School | Outstanding | 3.56 KM |
| Alexander First School | Community School | Good | 3.63 KM |
Images
Nearby Streets
| Name | Average Price | Average Sqft | Distance |
|---|---|---|---|
| Central Way | £ 0 | 0 | 0.00 KM |
| Hawthorne Drive | £ 160,000 | 0 | 0.00 KM |
| Cranbourne Hall Park | £ 0 | 0 | 0.00 KM |
| Homelands | £ 400,000 | 0 | 0.00 KM |
| Forbe's Drive | £ 0 | 0 | 0.00 KM |
Nearby Transport
| Name | NLC | TLC | Distance |
|---|---|---|---|
| Ascot (Berks) | 5666 | ACT | 4.56 KM |
| Martins Heron | 5692 | MAO | 7.03 KM |
| Sunningdale | 5671 | SNG | 7.70 KM |
| Windsor And Eton Central | 3175 | WNC | 8.20 KM |
| Taplow | 3151 | TAP | 8.53 KM |
Nearby Listings
| Address | Price | Type | Score | Distance |
|---|---|---|---|---|
| Crouch Lane, Winkfield, SL4 | £ 1,500,000 | BUY | 7 / 10 | 0.00 KM |
| Crouch Lane, Winkfield, Windsor, Berkshire | £ 1,650,000 | BUY | 7 / 10 | 0.13 KM |
| Crouch Lane, Winkfield, Windsor, Berkshire, SL4 | £ 650,000 | BUY | 7 / 10 | 0.16 KM |
| North Street, Winkfield, Windsor, Berkshire, SL4 | £ 3,995,000 | BUY | 7 / 10 | 0.23 KM |
| Glen Cottages, North Street, Winkfield, Windsor, Berkshire, SL4 | £ 575,000 | BUY | Unknown | 0.33 KM |
Nearby Properties
| Address | Price | Distance |
|---|---|---|
| Barton House | £ 1,110,000 | 0.15 KM |
| Cestria | £ 710,000 | 0.17 KM |
| 2 Crouch Lane | £ 375,000 | 0.17 KM |
| Waterside | £ 680,000 | 0.17 KM |
| Garden House | £ 1,585,000 | 0.38 KM |