Homewise says ..
Guide price for a Home for Life Lifetime Lease for OVER 60s tailored to your personal circumstances and requirements. Your price may vary. OVER 60S could benefit from SAVINGS of up to 59% from the market value with a one-off payment for a Lifetime Lease on this property. £26...
Property Oracle says ..
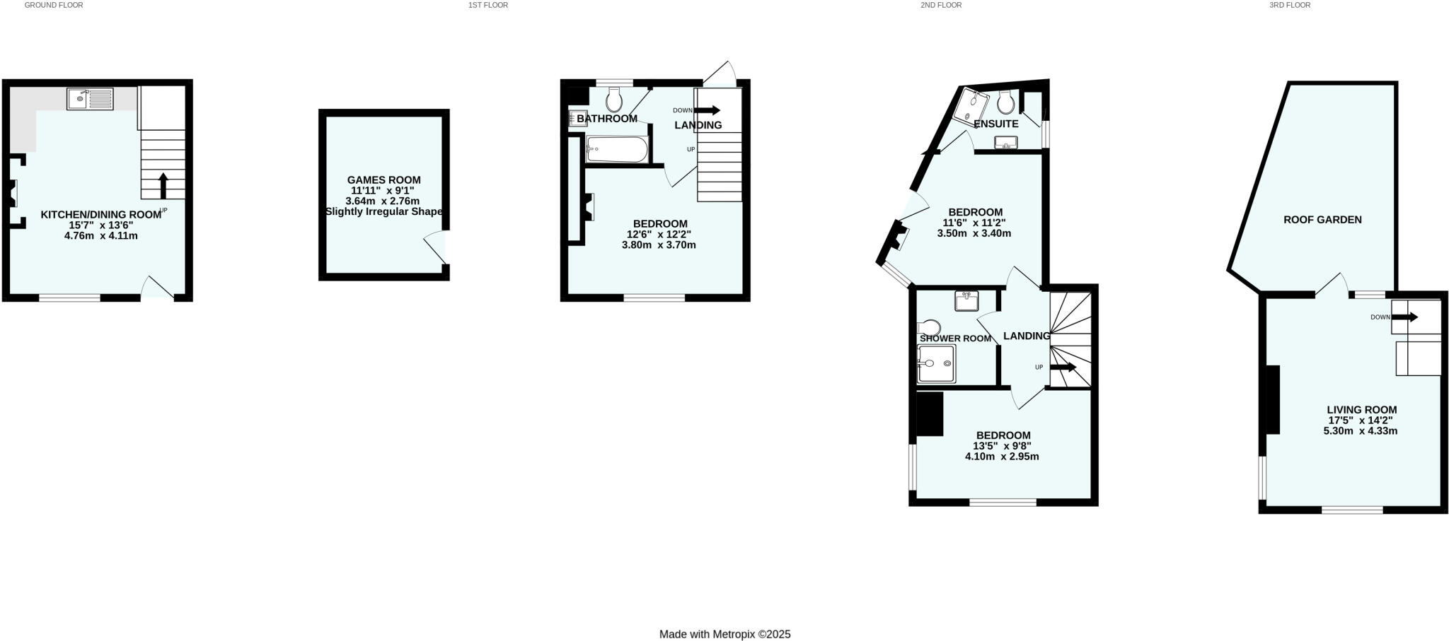
Temperance Place is located in Brixham, Devon, a charming coastal town in the South West of England. The property is situated on Temperance Place, a picturesque street, close to Brixham Harbour and the town centre. This offers easy access to amenities, restaurants, and the harbour’s scenic views. The proximity to several well-regarded schools, such as Furzeham Primary School and Brixham College (both rated ‘Good’ by Ofsted), is a significant advantage for families. While train stations are a bit further out (Paignton, Torquay, and Torre are all within a 7-9km radius), the central location within Brixham itself makes it a convenient base.
Based on the provided photos, the property appears to be in excellent condition. It has been recently renovated or refurbished to a high standard, showcasing a blend of modern and period features. The interior is well-maintained and tastefully decorated, with updated fixtures and fittings. The exposed beams and stonework add character, while the modern kitchen and bathrooms demonstrate a commitment to quality.
The property’s plot size is listed as 0.00 SQFT, indicating a lack of a substantial garden. However, the photos reveal a small, private roof terrace offering harbour views, which provides some outdoor space.
Considering the property’s location in a desirable coastal town, its excellent condition, and the inclusion of a roof terrace, the list price of £264,750 seems reasonable, especially when compared to the average price of £417,052 for the area. While the average price per square foot is £397, the lack of plot size information for comparable properties makes direct comparison difficult. However, given the property’s renovated condition and prime location near the harbour, the asking price is competitive within the Brixham market. Nearby comparable properties on Temperance Place have sold for significantly more, suggesting this property offers good value.
Therefore, we give this property 7 / 10. *Disclaimer: This is our option and does constitute a recommendation or financial advice. Do your own research. *
- Price
- 8
- Condition
- 9
- Location
- 9
- Land
- 3
- Bedrooms
- 3
- Bathrooms
- 0
- Sqft (est)
- 1,429.99
The heatmap indicates the level of crime in the area. The color of the heatmap indicates the crime severity and recency.
Metrics Year-on-Year
- Average area value
- 321,850.00 £Decreased by 11.58 %
- Est sale value
- 454,736.82 £Decreased by 13.59 %
- Average area rental value
- 888.00 £/moIncreased by 0.57 %
- Est letting value
- 0.00 £/mo
- Est rental Yield
- 3.31 %Increased by 13.75 %
- Crime Rate
- 20.00 %Unchanged by 0.00 %
Agent Activity
Homewise created the listing.
Nearby Schools
| Name | Type | Ofsted | Distance |
|---|---|---|---|
| Furzeham Primary School | Community School | Good | 0.47 KM |
| Brixham College | Academy Converter | Good | 0.48 KM |
| Brixham Church Of England Primary School | Academy Converter | 0.50 KM | |
| Furzeham Children'S Centre | Children's Centre Linked Site | 0.91 KM | |
| Eden Park Primary & Nursery School | Academy Converter | Good | 1.27 KM |
Images
Nearby Streets
| Name | Average Price | Average Sqft | Distance |
|---|---|---|---|
| The Strand | £ 0 | 0 | 0.00 KM |
| Fern Close | £ 342,500 | 0 | 0.00 KM |
| Cavern Steps | £ 195,000 | 0 | 0.00 KM |
| Furze Lane | £ 285,000 | 0 | 0.00 KM |
| Cavern Road | £ 270,000 | 0 | 0.00 KM |
Nearby Transport
| Name | NLC | TLC | Distance |
|---|---|---|---|
| Paignton | 3427 | PGN | 7.32 KM |
| Torquay | 3434 | TQY | 8.11 KM |
| Torre | 3432 | TRR | 9.48 KM |
Nearby Listings
| Address | Price | Type | Score | Distance |
|---|---|---|---|---|
| Temperance Place, Brixham, Devon | £ 264,750 | BUY | 7 / 10 | 0.00 KM |
| Temperance Place, Brixham, Devon | £ 395,000 | BUY | 6 / 10 | 0.01 KM |
| Temperance Place, Brixham, Devon, TQ5 | £ 268,000 | BUY | Unknown | 0.03 KM |
| Temperance Place, Brixham, Devon | £ 400,000 | BUY | Unknown | 0.04 KM |
| St Peters Hill, Brixham | £ 275,000 | BUY | 7 / 10 | 0.05 KM |
Nearby Properties
| Address | Price | Distance |
|---|---|---|
| 27 Temperance Place | £ 142,000 | 0.00 KM |
| 8 Temperance Place | £ 205,000 | 0.00 KM |
| 17 Temperance Place | £ 28,000 | 0.00 KM |
| 19 Temperance Place | £ 152,000 | 0.00 KM |
| 4 Temperance Place | £ 170,000 | 0.00 KM |