Townbridge Court, Castle Street, Northwich
By Royal Fox
£ 70,000
Reviews
3 out of 5 stars
Royal Fox says ..
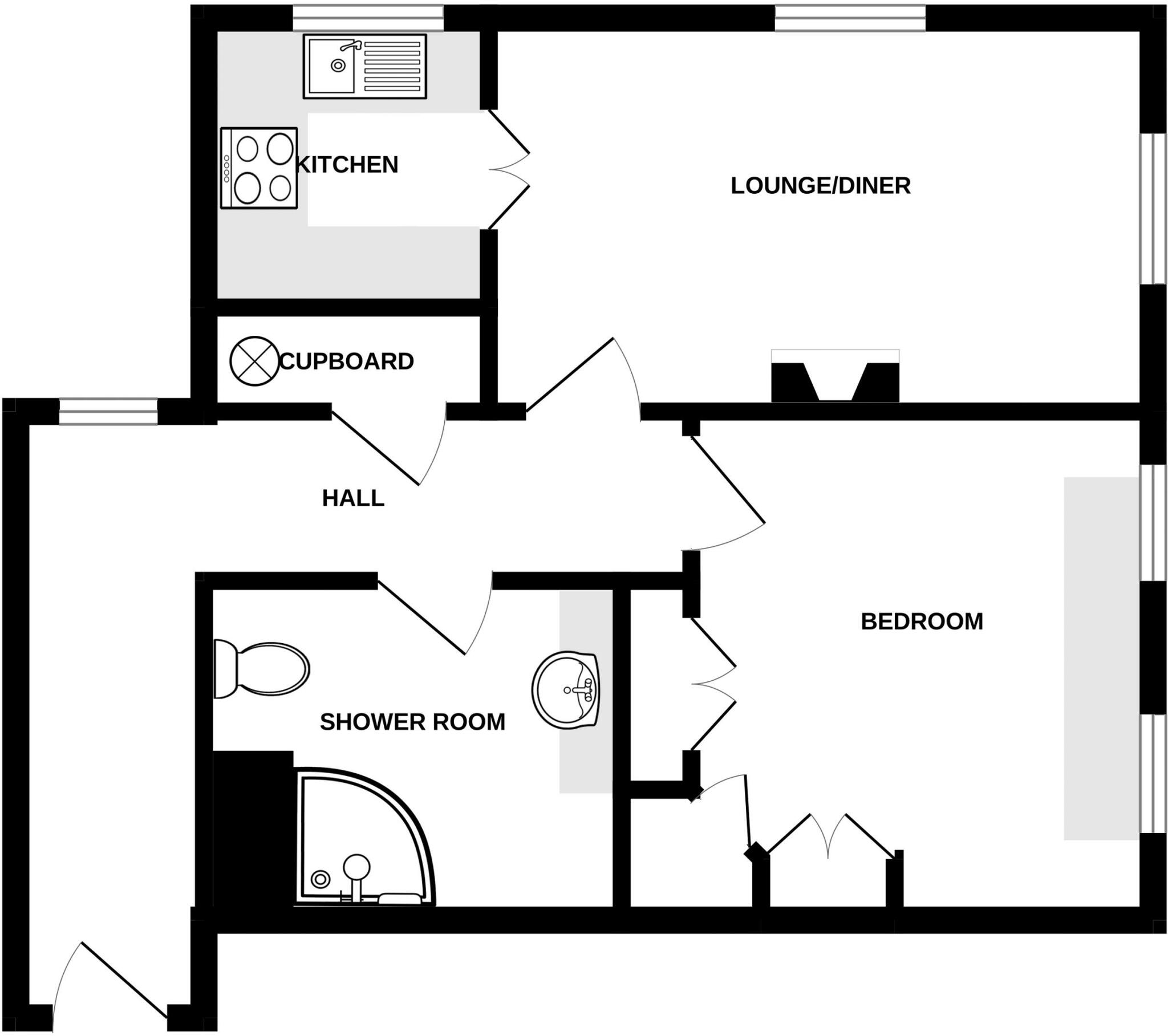
OFFERED AT REALISTIC ASKING PRICE - SECOND FLOOR APARTMENT - OVER 60'S COMPLEX - FINISHED TO MODERN STANDARD ... Royal Fox Estates are pleased to offer this one bedroomed second floor apartment within a purpose built development with a wonderful community feel. Townbridge Court was constructed ...
Property Oracle says ..
This one-bedroom apartment in Townbridge Court, Northwich, is situated in a convenient location with access to local amenities and transport links. The property’s modern kitchen and bathroom are noteworthy, suggesting recent updates or renovations. The communal gardens provide residents with some outdoor space, although it is limited compared to a house with a private garden. The property seems to be well-maintained but the images show the apartment is unfurnished and carpets show some general wear and tear. The asking price appears competitive within the context of the surrounding market, particularly compared to other units in the same complex, making it a potentially attractive option for first-time buyers, investors looking for a rental property, or individuals seeking convenient, low-maintenance living. However, it is essential to note the limited plot size and that the property is within a retirement complex. The lack of precise square footage information in comparable listings makes it challenging to conduct a completely precise valuation but the information presented suggests the pricing is fair.
Therefore, we give this property 6 / 10. *Disclaimer: This is our option and does constitute a recommendation or financial advice. Do your own research. *
- Price
- 8
- Condition
- 7
- Location
- 7
- Land
- 3
- Bedrooms
- 1
- Bathrooms
- 1
- Sqft (est)
- 678.13
The heatmap indicates the level of crime in the area. The color of the heatmap indicates the crime severity and recency.
Metrics Year-on-Year
- Average area value
- 235,833.00 £Increased by 3.21 %
- Est sale value
- 180,382.58 £Increased by 16.67 %
- Average area rental value
- 1,225.00 £/moIncreased by 14.17 %
- Est letting value
- 678.13 £/moUnchanged by 0.00 %
- Est rental Yield
- 6.23 %Increased by 10.66 %
- Crime Rate
- 9.00 %Unchanged by 0.00 %
Agent Activity
Royal Fox created the listing.
Nearby Schools
| Name | Type | Ofsted | Distance |
|---|---|---|---|
| Charles Darwin Community Primary School | Community School | Good | 0.85 KM |
| Sir John Deane'S College | Academy 16-19 Converter | Outstanding | 1.05 KM |
| Witton Church Walk Cofe Aided Nursery And Primary School | Voluntary Aided School | Good | 1.22 KM |
| Winnington Park Community Primary And Nursery School | Community School | Good | 1.52 KM |
| Greenbank School | Community Special School | Outstanding | 1.68 KM |
Images
Nearby Streets
| Name | Average Price | Average Sqft | Distance |
|---|---|---|---|
| Trinity Place | £ 0 | 0 | 0.00 KM |
| Burgess Court | £ 292,500 | 0 | 0.00 KM |
| Atholbrae Close | £ 0 | 0 | 0.00 KM |
| Riversdale Bridge | £ 260,000 | 0 | 0.00 KM |
| Barn Meadow | £ 0 | 0 | 0.00 KM |
Nearby Transport
| Name | NLC | TLC | Distance |
|---|---|---|---|
| Greenbank | 2325 | GBK | 2.09 KM |
| Northwich | 2326 | NWI | 2.28 KM |
| Hartford (Cheshire) | 2230 | HTF | 4.49 KM |
| Lostock Gralam | 2307 | LTG | 5.84 KM |
| Winsford | 2269 | WSF | 8.13 KM |
Nearby Listings
| Address | Price | Type | Score | Distance |
|---|---|---|---|---|
| Townbridge Court, Castle Street, Northwich | £ 70,000 | BUY | 6 / 10 | 0.00 KM |
| Townbridge Court, Castle Street, Northwich CW8 1BG | £ 79,950 | BUY | 6 / 10 | 0.00 KM |
| Townbridge Court, Northwich | £ 79,950 | BUY | 5 / 10 | 0.00 KM |
| Castle Street, Northwich | £ 140,000 | BUY | 6 / 10 | 0.02 KM |
| Townbridge Court, Northwich | £ 155,000 | BUY | 6 / 10 | 0.04 KM |
Nearby Properties
| Address | Price | Distance |
|---|---|---|
| 4 Marine Approach | £ 240,000 | 0.13 KM |
| 7 Marine Approach | £ 200,000 | 0.13 KM |
| 3 Marine Approach | £ 211,500 | 0.13 KM |
| 2 Marine Approach | £ 278,000 | 0.13 KM |
| 6 Marine Approach | £ 247,500 | 0.13 KM |