Brockwell Lane, Kelvedon, Colchester, Essex, CO5
By Heritage
£ 550,000
Reviews
3 out of 5 stars
Heritage says ..
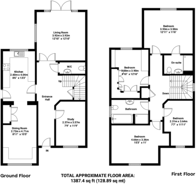
Ivy Cottage is a detached family home of generous proportions located in a non estate position on the fringe of Kelvedon village centre.
Property Oracle says ..
Therefore, we give this property 7 / 10. *Disclaimer: This is our option and does constitute a recommendation or financial advice. Do your own research. *
- Price
- 7
- Condition
- 8
- Location
- 8
- Land
- 7
- Bedrooms
- 4
- Bathrooms
- 2
The heatmap indicates the level of crime in the area. The color of the heatmap indicates the crime severity and recency.
Metrics Year-on-Year
- Average area value
- 510,000.00 £Decreased by 5.75 %
- Average area rental value
- 1,648.00 £/moIncreased by 23.54 %
- Est rental Yield
- 3.88 %Increased by 31.08 %
- Crime Rate
- 25.00 %Unchanged by 0.00 %
from 541,105.00 £
from 1,334.00 £/mo
from 2.96 %
from 25.00 %
Agent Activity
Heritage created the listing.
Nearby Schools
| Name | Type | Ofsted | Distance |
|---|---|---|---|
| Kelvedon St Mary'S Church Of England Primary Academy | Academy Converter | Outstanding | 0.66 KM |
| Feering Church Of England Primary School | Academy Sponsor Led | 2.36 KM | |
| St Peter'S Church Of England Voluntary Controlled Primary School, Coggeshall | Voluntary Controlled School | Good | 4.65 KM |
| Baynards Primary School | Community School | Good | 4.72 KM |
| The Honywood Community Science School | Academy Converter | Good | 5.12 KM |
Images
Nearby Streets
| Name | Average Price | Average Sqft | Distance |
|---|---|---|---|
| Grey's Paddock | £ 600,000 | 0 | 0.00 KM |
| Ratcliff Court | £ 300,000 | 0 | 0.00 KM |
| Ewell Hall Chase | £ 895,000 | 0 | 0.00 KM |
| Argyle Court | £ 332,500 | 0 | 0.00 KM |
| Croft Road | £ 0 | 0 | 0.00 KM |
Nearby Transport
| Name | NLC | TLC | Distance |
|---|---|---|---|
| Kelvedon | 6838 | KEL | 0.91 KM |
| Witham | 6844 | WTM | 7.36 KM |
Nearby Listings
| Address | Price | Type | Score | Distance |
|---|---|---|---|---|
| Brockwell Lane, Kelvedon, Colchester, Essex, CO5 | £ 550,000 | BUY | 7 / 10 | 0.00 KM |
| Brockwell Lane, Kelvedon, Colchester, CO5 | £ 675,000 | BUY | 7 / 10 | 0.03 KM |
| Brockwell Lane, Kelvedon | £ 700,000 | BUY | 8 / 10 | 0.09 KM |
| Brockwell Lane, Kelvedon, Colchester | £ 600,000 | BUY | Unknown | 0.15 KM |
| Greys Mill, Maldon Road, Kelvedon | £ 500,000 | BUY | 8 / 10 | 0.17 KM |
Nearby Properties
| Address | Price | Distance |
|---|---|---|
| 24 Brockwell Lane | £ 437,500 | 0.05 KM |
| 23 Brockwell Lane | £ 182,000 | 0.05 KM |
| 16 Brockwell Lane | £ 335,000 | 0.05 KM |
| 2 Easterford Road | £ 420,000 | 0.15 KM |
| 29 Easterford Road | £ 325,000 | 0.15 KM |