Fulneck Court, Pudsey, Leeds
By Manning Stainton
£ 138,000
Reviews
3 out of 5 stars
Manning Stainton says ..
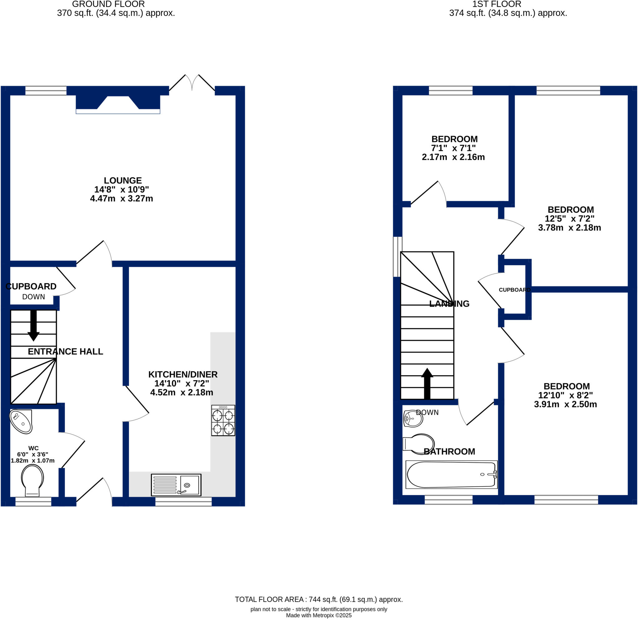
* DISCOUNTED SALE SCHEME * A fantastic opportunity to purchase this immaculate three bedroom town house under a discounted sale scheme, allowing the purchase of 100% of the freehold title at 60% market value, with no rent to pay on the remaining share. Situated in this sought after cul-de-s...
Property Oracle says ..
This is a three-bedroom terraced property located in Pudsey, Leeds. The property is in good condition and has a garden. The property is located in a well-connected area with access to schools and transportation. The list price of £138,000 represents good value for money, given the location and condition of the property.
Therefore, we give this property 7 / 10. *Disclaimer: This is our option and does constitute a recommendation or financial advice. Do your own research. *
- Price
- 8
- Condition
- 8
- Location
- 7
- Land
- 6
- Bedrooms
- 3
- Bathrooms
- 1
- Sqft (est)
- 743.79
The heatmap indicates the level of crime in the area. The color of the heatmap indicates the crime severity and recency.
Metrics Year-on-Year
- Average area value
- 303,941.00 £Increased by 18.76 %
- Est sale value
- 284,871.57 £Increased by 82.38 %
- Average area rental value
- 896.00 £/moDecreased by 14.42 %
- Est letting value
- 743.79 £/mo
- Est rental Yield
- 3.54 %Decreased by 27.90 %
- Crime Rate
- 9.00 %Unchanged by 0.00 %
Agent Activity
Manning Stainton created the listing.
Nearby Schools
| Name | Type | Ofsted | Distance |
|---|---|---|---|
| Pudsey Children'S Centre | Children's Centre | 0.57 KM | |
| Southroyd Primary And Nursery School | Foundation School | Good | 0.63 KM |
| Fulneck School | Other Independent School | 0.65 KM | |
| Crawshaw Academy | Academy Sponsor Led | Good | 0.66 KM |
| Lowtown Primary School | Community School | Good | 1.25 KM |
Images
Nearby Streets
| Name | Average Price | Average Sqft | Distance |
|---|---|---|---|
| Valley Green | £ 0 | 0 | 0.00 KM |
| South Park Vale | £ 0 | 0 | 0.00 KM |
| Longfield Avenue | £ 0 | 0 | 0.00 KM |
| Ash Grove | £ 0 | 0 | 0.00 KM |
| Weavers Place | £ 0 | 0 | 0.00 KM |
Nearby Transport
| Name | NLC | TLC | Distance |
|---|---|---|---|
| Bramley (West Yorkshire) | 8496 | BLE | 3.10 KM |
| New Pudsey | 8506 | NPD | 3.23 KM |
| Kirkstall Forge | 6544 | KLF | 5.69 KM |
| Horsforth | 8499 | HRS | 7.46 KM |
| Headingley | 8498 | HDY | 7.86 KM |
Nearby Listings
| Address | Price | Type | Score | Distance |
|---|---|---|---|---|
| Fulneck Court, Pudsey, Leeds | £ 138,000 | BUY | 7 / 10 | 0.00 KM |
| Littlemoor Road, Pudsey | £ 150,000 | BUY | 6 / 10 | 0.02 KM |
| Littlemoor Road, Pudsey | £ 160,000 | BUY | 6 / 10 | 0.02 KM |
| Fulneck Court, Pudsey | £ 134,950 | BUY | 6 / 10 | 0.04 KM |
| Littlemoor Road, Pudsey | £ 550,000 | BUY | 6 / 10 | 0.07 KM |
Nearby Properties
| Address | Price | Distance |
|---|---|---|
| 117 Littlemoor Road | £ 141,000 | 0.01 KM |
| 107 Littlemoor Road | £ 210,000 | 0.01 KM |
| 133 Littlemoor Road | £ 113,000 | 0.01 KM |
| 127 Littlemoor Road | £ 89,000 | 0.01 KM |
| 125 Littlemoor Road | £ 149,000 | 0.01 KM |