Keatons says ..
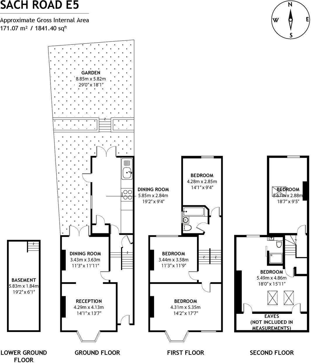
Enviably appointed in this peaceful street, is this charming Victorian home, sensitively extended and restored, offering versatile accommodation over three floors. Retaining grand original features, striking modern designs, and bathed in natural light. Composed of an inviting hallway, an invaluab...
Property Oracle says ..
This is a period property that has been modernised. It features five bedrooms and two bathrooms. The house includes a modern kitchen and a well-maintained garden. While generally in good condition, some areas show signs of wear and tear. Located in the desirable Springfield area of Hackney, it benefits from good transport links and nearby schools. The asking price is high for the area.
Therefore, we give this property 6 / 10. *Disclaimer: This is our option and does constitute a recommendation or financial advice. Do your own research. *
- Price
- 5
- Condition
- 7
- Location
- 7
- Land
- 8
- Bedrooms
- 5
- Bathrooms
- 2
The heatmap indicates the level of crime in the area. The color of the heatmap indicates the crime severity and recency.
Metrics Year-on-Year
- Average area value
- 471,552.00 £Decreased by 8.85 %
- Average area rental value
- 2,088.00 £/moIncreased by 1.66 %
- Est rental Yield
- 5.31 %Increased by 11.55 %
- Crime Rate
- 9.00 %Unchanged by 0.00 %
Agent Activity
Keatons created the listing.
Nearby Schools
| Name | Type | Ofsted | Distance |
|---|---|---|---|
| Comberton Children'S Centre | Children's Centre Linked Site | 0.14 KM | |
| Ohr Emes | Other Independent School | 0.33 KM | |
| Southwold Primary School | Community School | Outstanding | 0.33 KM |
| Harrington Hill Primary School | Community School | Good | 0.40 KM |
| Beis Trana Girls' School | Other Independent School | Requires improvement | 0.42 KM |
Images
Nearby Streets
| Name | Average Price | Average Sqft | Distance |
|---|---|---|---|
| Comberton Road | £ 0 | 0 | 0.00 KM |
| Halberd Mews | £ 0 | 0 | 0.00 KM |
| Baron's Walk | £ 299,950 | 0 | 0.00 KM |
| Larch Mews | £ 0 | 0 | 0.00 KM |
| Lea Bridge Road | £ 500,000 | 0 | 0.00 KM |
Nearby Transport
| Name | NLC | TLC | Distance |
|---|---|---|---|
| Clapton | 6926 | CPT | 0.33 KM |
| Rectory Road | 6967 | REC | 1.47 KM |
| Stoke Newington | 6934 | SKW | 1.82 KM |
| Hackney Downs | 6867 | HAC | 1.82 KM |
| Hackney Central | 6977 | HKC | 1.94 KM |
Nearby Listings
| Address | Price | Type | Score | Distance |
|---|---|---|---|---|
| Sach Road, London, E5 | £ 1,350,000 | BUY | 6 / 10 | 0.00 KM |
| Sach Road, London, E5 | £ 425,000 | BUY | 6 / 10 | 0.01 KM |
| Sach Road, E5 | £ 550,000 | BUY | 7 / 10 | 0.01 KM |
| Sach Road, Hackney, London, E5 | £ 775,000 | BUY | Unknown | 0.03 KM |
| Sach Road, Clapton | £ 550,000 | BUY | 5 / 10 | 0.03 KM |
Nearby Properties
| Address | Price | Distance |
|---|---|---|
| 19 Sach Road | £ 331,000 | 0.01 KM |
| 30 Sach Road | £ 750,000 | 0.01 KM |
| 5 Sach Road | £ 375,000 | 0.01 KM |
| 6a Sach Road | £ 393,000 | 0.01 KM |
| 12a Sach Road | £ 450,000 | 0.01 KM |