Cedar 12a Locks Hill, Frome, Somerset, BA11 1NA
By Tim Bennett and Associates
£ 455,000
Reviews
3 out of 5 stars
Tim Bennett and Associates says ..
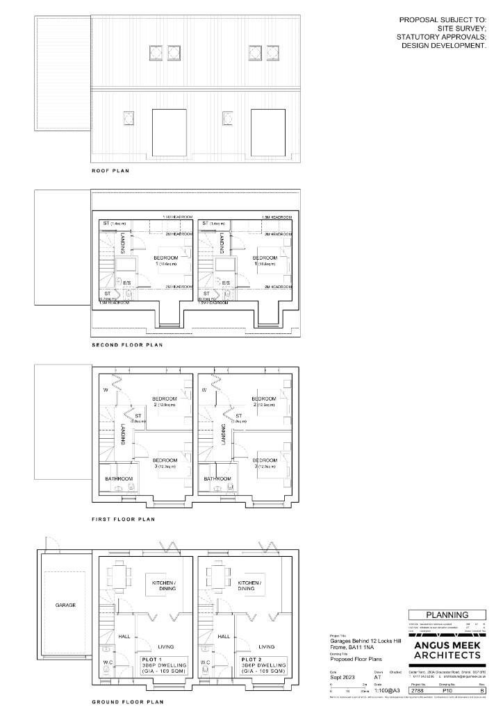
1st of only 2 individual, 3 storey, semi detached homes in this tucked away and exclusive development by prestigious local developers Crossman Homes. 3 good sized beds (master ensuite), fitted Kitchen/diner, rear garden & 2 parking spaces. AVAILABLE TO RESERVE NOW VIEWINGS STRICTLY BY APPT
Property Oracle says ..
Therefore, we give this property 7 / 10. *Disclaimer: This is our option and does constitute a recommendation or financial advice. Do your own research. *
- Price
- 6
- Condition
- 9
- Location
- 8
- Land
- 7
- Bedrooms
- 3
- Bathrooms
- 2
The heatmap indicates the level of crime in the area. The color of the heatmap indicates the crime severity and recency.
Metrics Year-on-Year
- Average area value
- 300,000.00 £Decreased by 22.28 %
- Average area rental value
- 1,073.00 £/moDecreased by 13.47 %
- Est rental Yield
- 4.29 %Increased by 11.43 %
- Crime Rate
- 4.00 %Unchanged by 0.00 %
from 386,017.00 £
from 1,240.00 £/mo
from 3.85 %
from 4.00 %
Agent Activity
Tim Bennett and Associates created the listing.
Nearby Schools
| Name | Type | Ofsted | Distance |
|---|---|---|---|
| St John'S Church Of England Voluntary Aided First School, Frome | Voluntary Aided School | Good | 0.61 KM |
| Farleigh Further Education College - Frome | Special Post 16 Institution | Good | 0.80 KM |
| Frome South | Children's Centre | 0.85 KM | |
| Christ Church Cofe First School | Voluntary Controlled School | Requires improvement | 0.95 KM |
| North Hill House | Other Independent Special School | Inadequate | 1.09 KM |
Images
Nearby Streets
| Name | Average Price | Average Sqft | Distance |
|---|---|---|---|
| Adderwell | £ 361,650 | 0 | 0.00 KM |
| Avenue Road | £ 349,975 | 0 | 0.00 KM |
| Typesetter Drive | £ 394,995 | 0 | 0.00 KM |
| Station Approach | £ 475,000 | 0 | 0.00 KM |
| Writers Close | £ 0 | 0 | 0.00 KM |
Nearby Transport
| Name | NLC | TLC | Distance |
|---|---|---|---|
| Frome | 5707 | FRO | 0.48 KM |
Nearby Listings
| Address | Price | Type | Score | Distance |
|---|---|---|---|---|
| Maple House, 12a Locks Hill, Frome, Somerset, BA111NA | £ 475,000 | BUY | 7 / 10 | 0.00 KM |
| Locks Hill, Frome | £ 850,000 | BUY | Unknown | 0.00 KM |
| Cedar 12a Locks Hill, Frome, Somerset, BA11 1NA | £ 455,000 | BUY | 7 / 10 | 0.00 KM |
| Locks Hill, Frome, BA11 | £ 350,000 | BUY | 7 / 10 | 0.01 KM |
| Newland Gardens, Frome, BA11 1PN | £ 460,000 | BUY | 8 / 10 | 0.09 KM |
Nearby Properties
| Address | Price | Distance |
|---|---|---|
| 5 Locks Hill | £ 229,950 | 0.00 KM |
| 9 Locks Hill | £ 750,000 | 0.00 KM |
| 22 Locks Hill | £ 248,950 | 0.00 KM |
| 14 Locks Hill | £ 210,000 | 0.00 KM |
| 23 Locks Hill | £ 350,000 | 0.00 KM |